A detached, Grade II listed headquarters, turnkey ready in the heart of Southampton’s cultural district. Suitable for a range of uses.

 

Summary

  • Detached, Grade II listed building with premium modern services
  • Suitable for a range of uses (subject to planning)
  • Fully equipped, licensed bar till 11pm and kitchen (No extraction)
  • Fibre-ready, AV-enabled, climate-controlled
  • Private and semi-private meeting rooms and flexible event space
  • Two-floor boardroom and entertainment annex
  • Secure entry and immediate off-road parking
  • High quality WCs and shower facilities
  • Available Q1 2026, inclusive of all premium furniture, fixtures and fittings

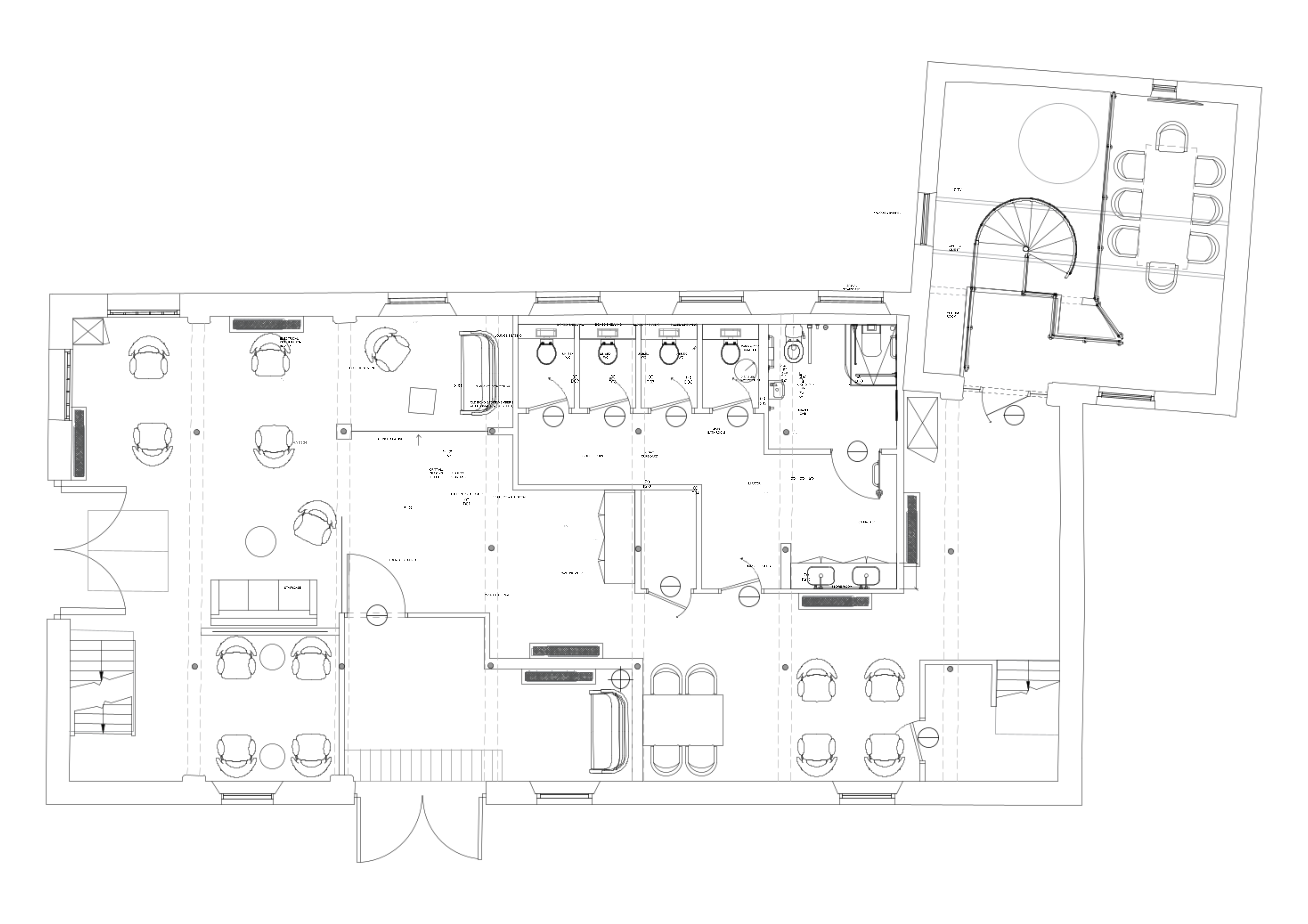
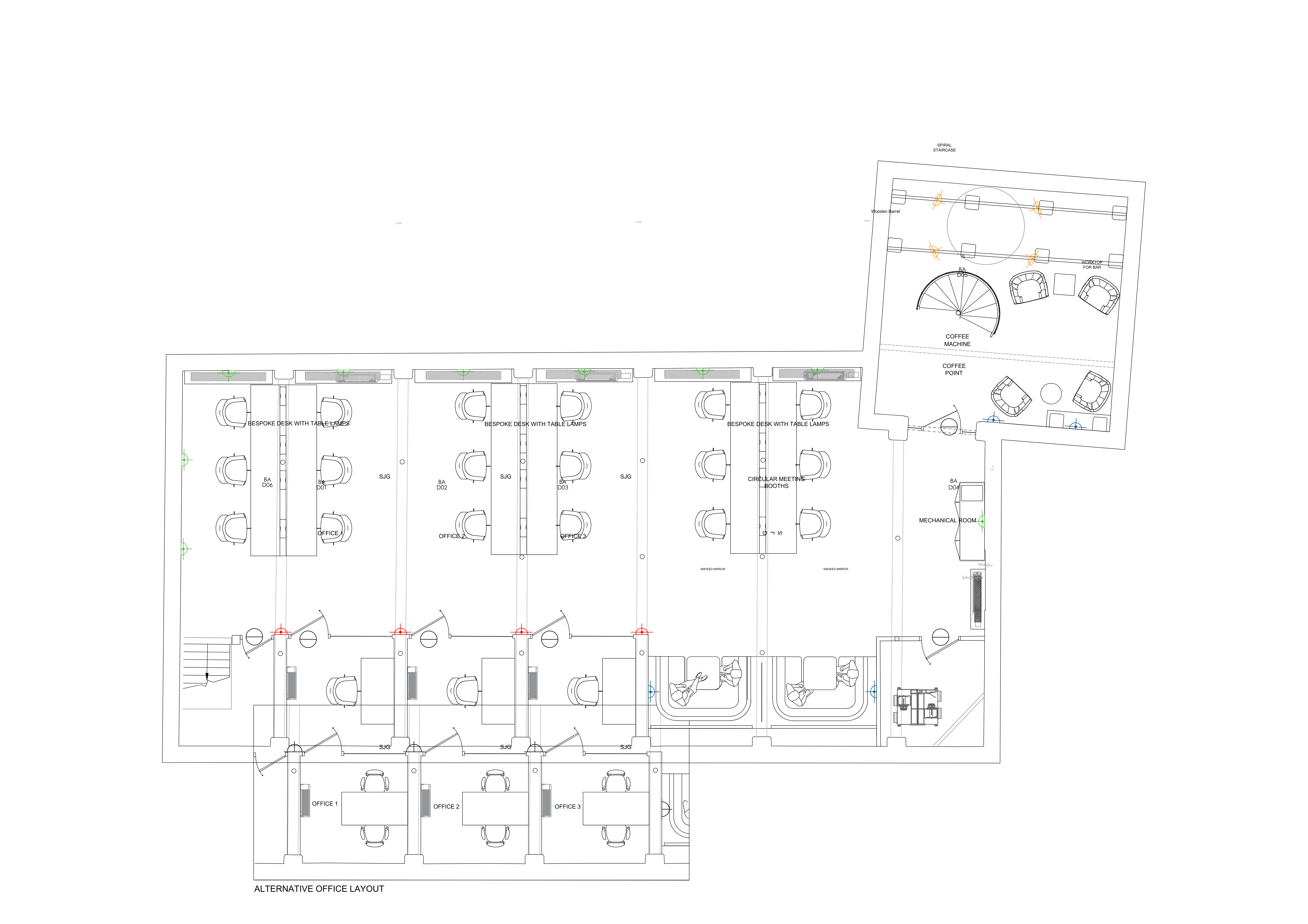
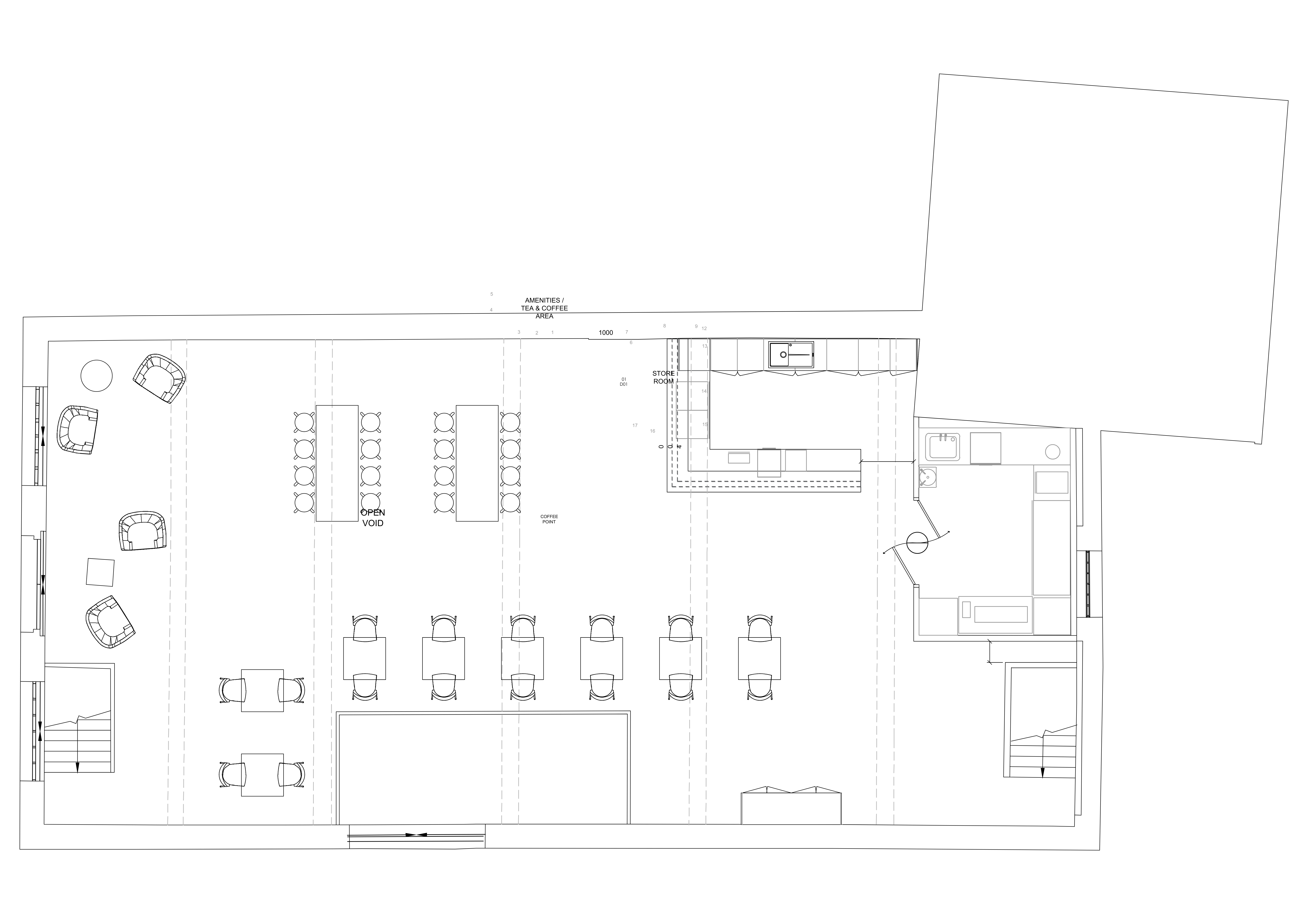
Accommodation

The accommodation comprises the following areas:

Namesq ftAvailability
1st - The Kitchen Floor 1,722 Available
Ground - The Lounge Floor 2,110 Available
Lower Ground - The Study Floor 2,217 Available
Total6,049
Your HQ - DSC03294.jpg

Location

Situated in Southampton’s cultural quarter, the property is just minutes from Guildhall Square, surrounding cafés, bars, galleries and hotels. It offers excellent regional and national connectivity, 80 minutes to London Waterloo and 30 minutes to the New Forest National Park.

Key distances from the property:
Southampton Train Station – 1 mile
Southampton Airport – 4 miles
Junction 13, M3 – 6 miles
Winchester – 13 miles
Portsmouth – 18 miles
London – 80 miles

The location strikes the balance of being close enough to collaborate, yet far enough to think clearly, making it ideal for a headquarters with purpose and presence.

Get directions from Google Maps

Further Information

Rent £120,000 per annum

Rates Payable Upon Enquiry

Service Charge n/a

Estate Charge n/a


Description

An exceptional 6,049 sq ft, fully self-contained Grade II listed headquarters, formerly known as the Old Bond Store, located in the heart of Southampton’s cultural district, re-imagined for a single occupier ready to make it their own. This detached building has been re-imagined for a single occupier, offering a turnkey, premium workspace arranged over three floors.

The property provides a curated blend of heritage character and modern precision, featuring exposed brickwork, glazing, contemporary lighting and high-quality finishes throughout. It includes a fully equipped and licensed bar (till 11pm), kitchen (no extraction), private and semi-private meeting rooms, flexible event spaces, and a unique two-floor boardroom and entertainment suite.

Designed for movement and versatility, the space supports focused work, collaboration and hospitality, with areas such as The Kitchen Floor, The Lounge Floor, The Study Floor and The Distillery each offering distinct functionality. Technology is seamlessly integrated, with high-speed fibre, AV-enabled rooms, climate control, and built-in automation.

The property is available Q1 2026, inclusive of all premium furniture, fixtures and fittings, with secure entry, immediate off-road parking, high-quality WCs and shower facilities, and is suitable for a range of uses (subject to planning).

Make a statement with a new headquarters that reflects your ambition.