Summary

Property Type Residential Flat
Tenure To Let
Size 2 Beds
Rent £1,950 per month
EPC Rating This property has been graded as D (58)
  • *Available Now*
  • Unfurnished
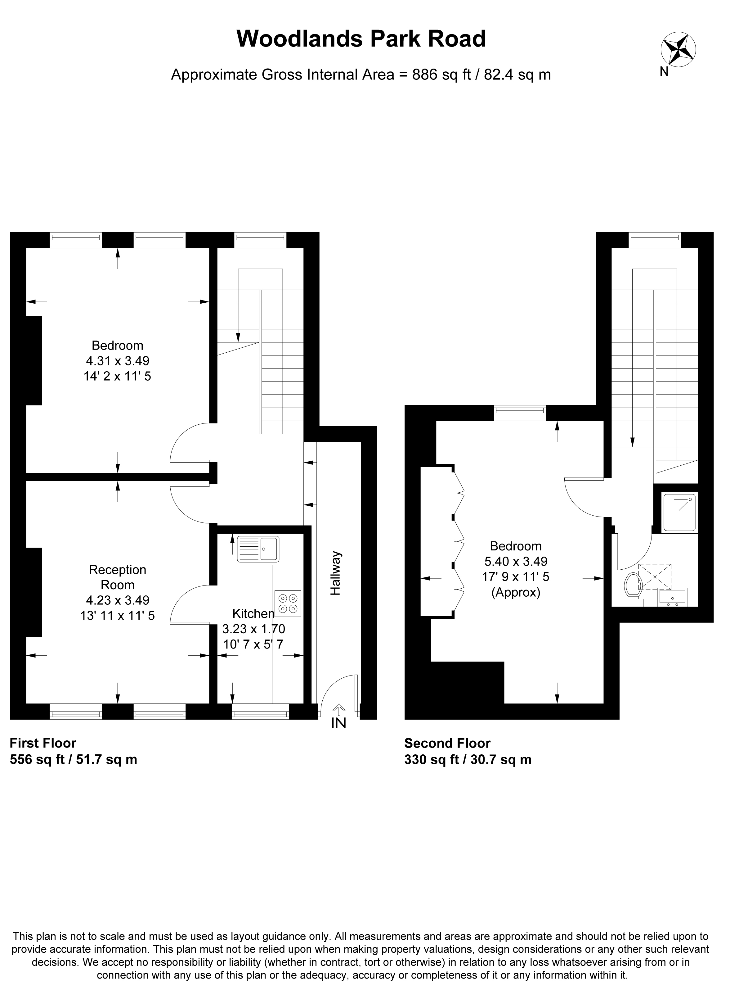
  • 886 Sq Ft
  • 2 Double Bedrooms
  • Deposit - £2,250
  • EPC - D64
  • Council Tax Band - C (Greenwich)

About

*Available Now* Freshly decorated, spacious two-bedroom upper maisonette just a 2-minute walk from Maze Hill Station.

On the first floor there is one of the bedrooms, a bright living area that leads to the kitchen. The kitchen has a separate fridge and freezer along with a washer-dryer.

On the top floor is the second bedroom, which benefits from a generous amount of storage, and the bathroom that comprises a shower, basin and W.C.

The flat is newly carpeted throughout and measures in at 886 sq. ft.

The property is available unfurnished.

Location

Located on Woodlands Park Road, a quiet residential street situated moments from Maze Hill Station, the property has excellent transport links to London Cannon Street and North Greenwich tube station. It is also situated close to Greenwich Park, one of the largest green spaces in south-east London.

Get directions from Google Maps

Woodlands Park Road - Kitchen