Last Remaining Brand New Trade-Counter Unit - Frontage to Brunel Drive.

 

Summary

  • Brand New Trade-Counter / Warehouse Premise
  • Extending to 3,000 sqft with 6m clear eaves
  • Last Remaining - Unit 7 Under Offer to National Occupier
  • Frontage to Brunel Drive
  • Electric Gated Access to Large Communal Yard
  • Available for Immediate Occupation

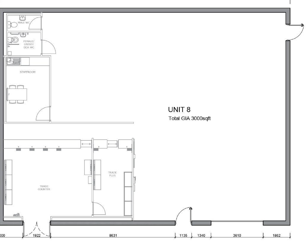
Accommodation

The accommodation comprises the following areas with clear eaves of 6m:

NameBuilding TypeSizeTenureRentRent (sq ft)
Unit - Unit 8 Trade Counter 3,000 sq ft To Let £45,000 /annum £15
Total£15
Unit 8 - Internal.jpg

Location

The property occupies a prominent position on Brunel Drive at the heart of the town’s established and popular Brunel Drive Industrial Estate just off the A1/A46/A17 road junctions providing excellent access locally, regionally & nationally.

Get directions from Google Maps

Further Information

Rent £45,000 per annum

Rates Payable To be assessed on practical completion.

Service Charge A service charge will be payable, full details on request.

Estate Charge n/a


Description

BRAND NEW industrial / trade counter units of steel portal frame construction with insulated cladding to all elevations and electric roller shutter with a height of 4m. The unit benefits from an attractive glazed customer entrance adjacent dedicated loading and parking areas.

Unit 7 Under Offer to a National Trade Occupier.

Terms

TO LET on a new Full Repairing and Insuring lease with all terms negotiable.

Services

Mains services are connected, including 3-phase. Each Tenant is to confirm the suitability for their given use.

VOA

The property will be re-assessed following practical completion.

VAT

VAT will be charged where necessary, at the prevailing rate.