Summary

Property Type Industrial
Tenure To Let
Size 4,874 sq ft
Rent £52,000 per annum
Rates Payable £19,872 per annum From April 2026
Service Charge n/a
Estate Charge £530 per annum Plus Insurance £1,000
EPC Rating This property has been graded as B (40)
  • Industrial unit with mezzanine
  • Roller shutter door
  • LED lighting
  • Solar panels
  • 3 phase power
  • 7 car parking spaces
  • Kitchenette and WCs

About

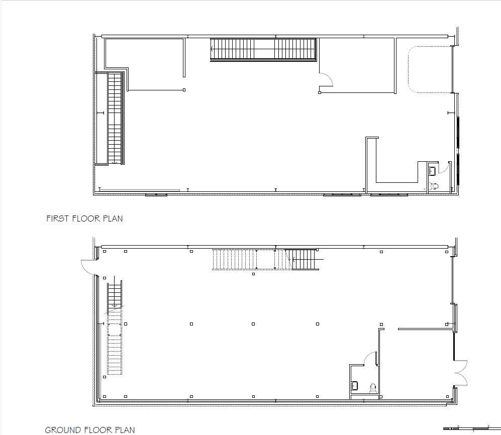
Modern industrial unit, constructed in 2007, provides warehouse and office accommodation arranged over ground and first floors. The ground floor offers versatile warehouse and storage space, featuring LED lighting, W/C, three-phase power, electric roller shutter door, and a clear internal height of 3.6 metres beneath the mezzanine.

The first floor mezzanine is fitted to a office specification, benefitting from carpeted flooring, air conditioning, heating, and additional kitchen and W/C facilities, making it ideal for office or ancillary use.

Externally, the property benefits from solar panels and 7 car parking spaces unit, providing for staff and visitors.

Unit 7, Anglo Business Park, Chesham, Industrial To Let - 10.jpeg

Accommodation

Namesq ftsq mAvailability
Ground 2,518 233.93 Available
Mezzanine 2,356 218.88 Available
Total4,874452.81

Location

The property is located to the rear of Anglo Business Park off Asheridge Road, which is one of the primary business/industrial locations within the town.

Chesham is strategically located to the northwest of London, within close proximity to the regional centres of Watford, Hemel Hempstead and High Wycombe. The area benefits from excellent communications, provided by the M25, M1 and M40 motorways. In addition, there is an excellent link to Central London via the Metropolitan Line and the Chiltern Railway Line.

Get directions from Google Maps

Unit 7, Anglo Business Park - 20.jpeg

Further Information

  • Terms

    The property is available on a new lease direct from the Landlord on terms to be agreed.

  • Money laundering / Identity Checks

    Money Laundering and Identity checks will be carried out on all tenants and proof of identity documents will be required.