Trade Counter / Industrial Unit on established / 'prime' trade estate - Virtual tour available

 

Summary

  • Adjacent occupiers including Screwfix and Howdens
  • Prime trade / industrial / distribution location
  • Excellent road links
  • Mid-terrace unit with new roof covering
  • Minimum eaves height 4 metres
  • Maximum eaves height 5.85 metres
  • Electric roller shutter door, width 3.5 metres, height 3.5 metres
  • LED lighting, new aluminium windows

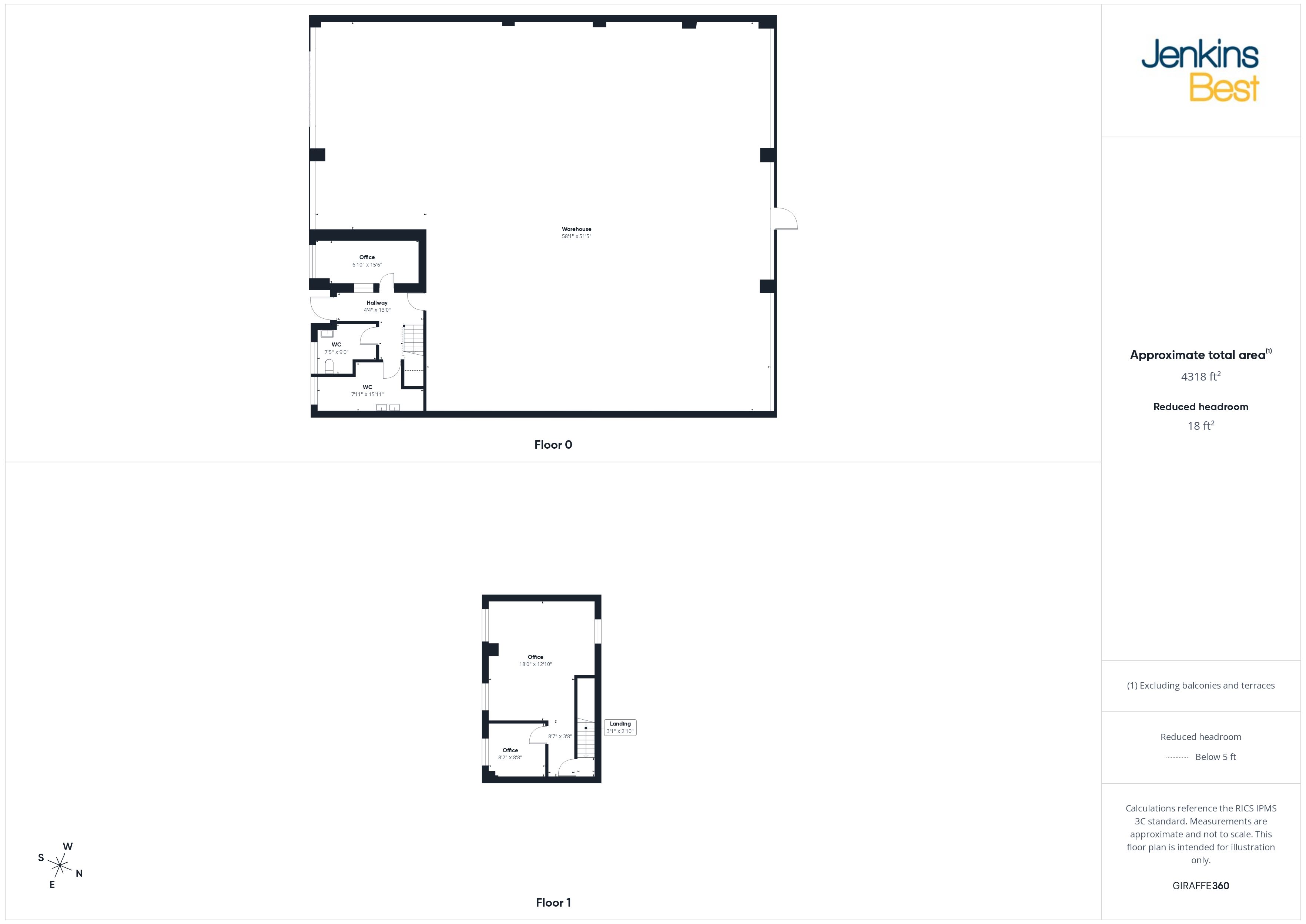
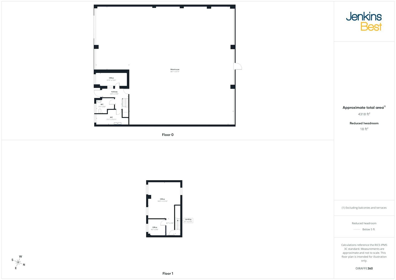
Accommodation

The accommodation comprises the following areas:

Namesq ftsq mAvailability
Unit 4,500 418.06 Available
Total4,500418.06
Unit 6 Maesglas Industrial Estate - CAM05096G0-PR0024-STILL013.jpg

Location

Maesglas Industrial Estate is located approximately 1.5 miles South of Newport City Centre.

The estate is easily accessible via the Southern Distributor Road (A48), a dual carriageway, which connects J24 and J28 of the M4 motorway. The estate is accessed via Docks Way and is situated directly opposite the popular 28 East Retail Park.

Get directions from Google Maps

Further Information

Rent £30,375 per annum VAT payable in addition

Rates Payable £16,330 per sq ft Based on 2026 Valuation

Service Charge £4,000 per annum VAT payable in addition

Estate Charge £1,500 per annum Current annual building insurance premium - my differ subject to proposed use

EPC Rating This property has been graded as D (93)


Description

Maesglas Industrial Estate is a prime trade / commercial location in Newport.

The Estate comprises a total of 27 units consisting of detached and terraces of units set within a landscaped site. It benefits from out-of-hours manned security and several on-site communal car parks.

The Estate has attracted numerous national occupiers including Screwfix, Howdens, Plumbase and Royal Mail.

Specifications

Mid-terrace unit with new roof covering
Minimum eaves height 4 metres
Maximum eaves height 5.85 metres
Electric roller shutter door, width 3.5 metres, height 3.5 metres
LED lighting, new aluminium windows
GF and FF Office content with WCs
Virtual tour available

Viewings

Please contact Jenkins best

Virtual Viewing

Available on request

what3words

vivid.crunch.notice