UNDER OFFER - Industrial / Warehouse Unit To Let with offices

 

Summary

  • Established / vibrant industrial Estate
  • Close proximity to A470 dual carriageway
  • Terraced unit
  • Ground floor office content
  • Roller shutter door and separate pedestrian door access
  • LED lighting
  • Roller shutter door 3m wide and 3.35 m high
  • Minimum eaves height 3.4m
  • Maximum eaves height 4.15m
  • New lease available

Accommodation

The accommodation comprises of:

Namesq ftsq mAvailability
Unit - 45 1,945 180.70 Available
Total1,945180.70
Unit 45, Albion Industrial Estate - processedBE0B49F173E141C18B4AC20C353C1066.jpeg

Location

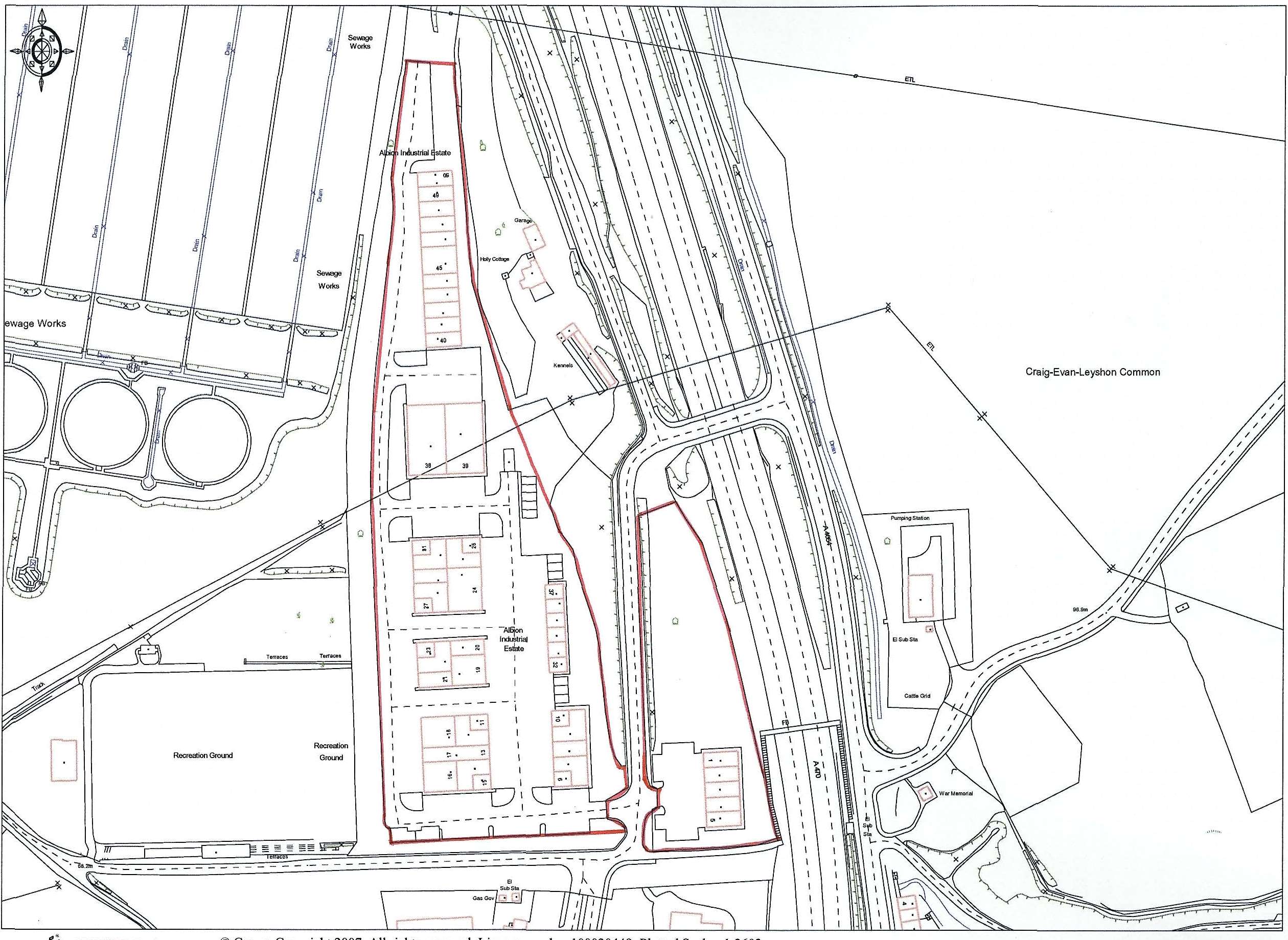
Albion Industrial Estate is one of the established industrial estates in the lower Cynon Valley areas.

The estate is situated approximately 2.5 miles north of Pontypridd. The estate is accessed via the A4054 (Merthyr Road).

Junction 32 of the M4 motorway is approximately 12 miles to the south, accessed via the A470 dual carriageway.

Get directions from Google Maps

Further Information

Rent £16,550 per annum payable monthly in advance

Rates Payable £8,094 per annum Based on 2026 Valuation

Service Charge £1,770 per annum Budget Year End Sept 2026

Estate Charge £430.50 per annum Approximate Insurance premium for the year ending 20 June 2026

EPC Rating This property has been graded as B (39)


Description

Albion Industrial Estate is a popular commercial location situated adjacent to the A470.

These units comprise of a steel portal frame construction with part brick/blockwork, part metal clad elevations under a pitched roof.
With open plan workshop / warehouse accommodation, roller shutter door, LED lighting and dedicated parking with additional communal parking.


Unit 45 is a mid-terraced trade counter /light industrial / warehouse unit of steel frame construction.

Specifications

Roller shutter door 3m wide and 3.35 m high
Minimum eaves height 3.4m. Maximum eaves height 4.15m
Single Pedestrian door
2 no WC's
3 phase electricity and water.
2 internal offices

Viewings

Please contact Jenkins Best

Terms

The unit is available on new Full Repairing and Insuring Lease.

Small Business Rates Relief

The unit may qualify for an element of small business rates relief:
https://businesswales.gov.wales/non-domestic-rates-small-business-rates-relief

what3words

crunchy.surprises.landscape