Coming Soon - Industrial / Warehouse To Let

 

Summary

  • Established / vibrant industrial estate
  • Close proximity to A470 dual carriageway
  • Unit 44 - 923 sq ft
  • LED lighting
  • Forecourt parking / loading area
  • 24 Hour access
  • Roller shutter door 3m wide and 3.3 m high
  • Minimum eaves height 3.5m. Maximum eaves height 4.5m

Accommodation

Namesq ftsq mAvailability
Unit - 44 923 85.75 Available
Total92385.75
Unit 44, Albion Industrial Estate - Image 5

Location

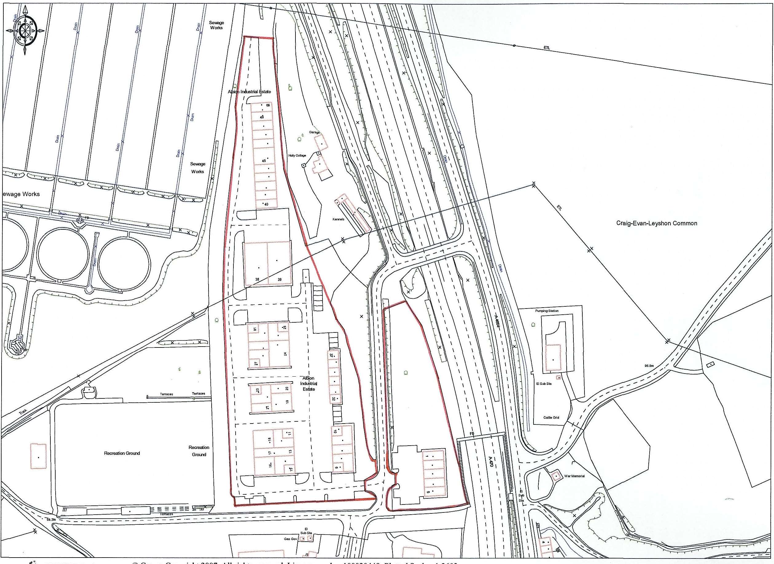
Albion Industrial Estate is one of the established industrial estates in the lower Cynon Valley areas.

The estate is situated approximately 2.5 miles north of Pontypridd. The estate is accessed via the A4054 (Merthyr Road).

Junction 32 of the M4 motorway is approximately 12 miles to the south, accessed via the A470 dual carriageway.

Get directions from Google Maps

Further Information

Rent £8,300 per annum payable monthly in advance

Rates Payable £5,055.20 per annum Based on 2026 Valuation

Service Charge £846.84 per annum Budget Year End Sept 2026

Estate Charge £300 per annum Insurance premium for year ending June 2026


Description

Albion Industrial Estate is a popular commercial location situated adjacent to the A470.

These units comprise of a steel portal frame construction with part brick/blockwork, part metal clad elevations under a pitched roof.
With open plan workshop / warehouse accommodation, roller shutter door, LED lighting and dedicated parking with additional communal parking.


Unit 44 is a modern mid-terraced light industrial / warehouse unit of steel frame construction.

Specifications

Roller shutter door 3m wide and 3.3 m high
Minimum eaves height 3.5m. Maximum eaves height 4.5m
Single Pedestrian door
2.no WC's
3 phase electricity and water.

Viewings

Contact Jenkins Best

Terms

The unit is available on new Full Repairing and Insuring Lease for a term to be agreed.

Small business rates relief:

The unit may qualify for an element of small business rates relief:
https://businesswales.gov.wales/non-domestic-rates-small-business-rates-relief