Summary

Property Type Industrial/Logistics / Trade / Warehouse
Tenure To Let
Size 6,308 to 45,980 sq ft
Rates Payable Upon Enquiry
EPC Rating This property has been graded as A (14)
  • 8.4m clear internal height
  • Fitted offices
  • Photovoltaic panels (PV)
  • Electric Vehicle (EV) charging points
  • High performance insulated cladding and roof materials
  • 15% warehouse roof lights
  • Secure site
  • Level access and dock loading doors
  • 100% Business Rates Relief for 12 months
  • 37.5 kN sq m floor loading
  • Landscaped environment
  • Excellent Green Credentials
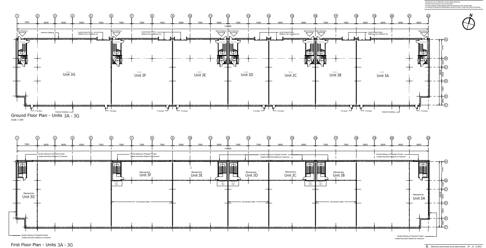
Unit 3E Capital Park, BANKHEAD AVENUE, Edinburgh, Industrial/Logistics / Trade / Warehouse To Let - DSC_7306.jpg

Accommodation

Namesq ftsq mAvailability
Ground - Ground Floor 4,801 446.03 Under Offer
1st - First Floor 1,507 140 Under Offer
Total6,308586.03

Location

The site is located within the busy Sighthill area of Edinburgh which lies approximately 5 miles south west of Edinburgh city centre.

The area is served by a number of transport links, including regular bus and tram services, as well as Edinburgh Park rail station which is located within walking distance.

The units have consent for Class 4, 5 and 6 (general business, industrial, storage and distribution). There is also consent to construct additional mezzanine space.

Get directions from Google Maps

Unit 3E Capital Park, BANKHEAD AVENUE - DSC_7307.jpg