Well located trade counter / distribution unit - Refurbished. *Virtual Tour Available*

 

Summary

  • Unit fronting estate entrance
  • Adjacent to REXEL, National Plastics, Spartan & Edmundson Electrical.
  • Refurbished in 2026
  • 2 No. roller shutter doors (width 4 metres, height 5 metres)
  • Minimum eaves height 5 metres
  • Maximum eaves height 6.6 metres
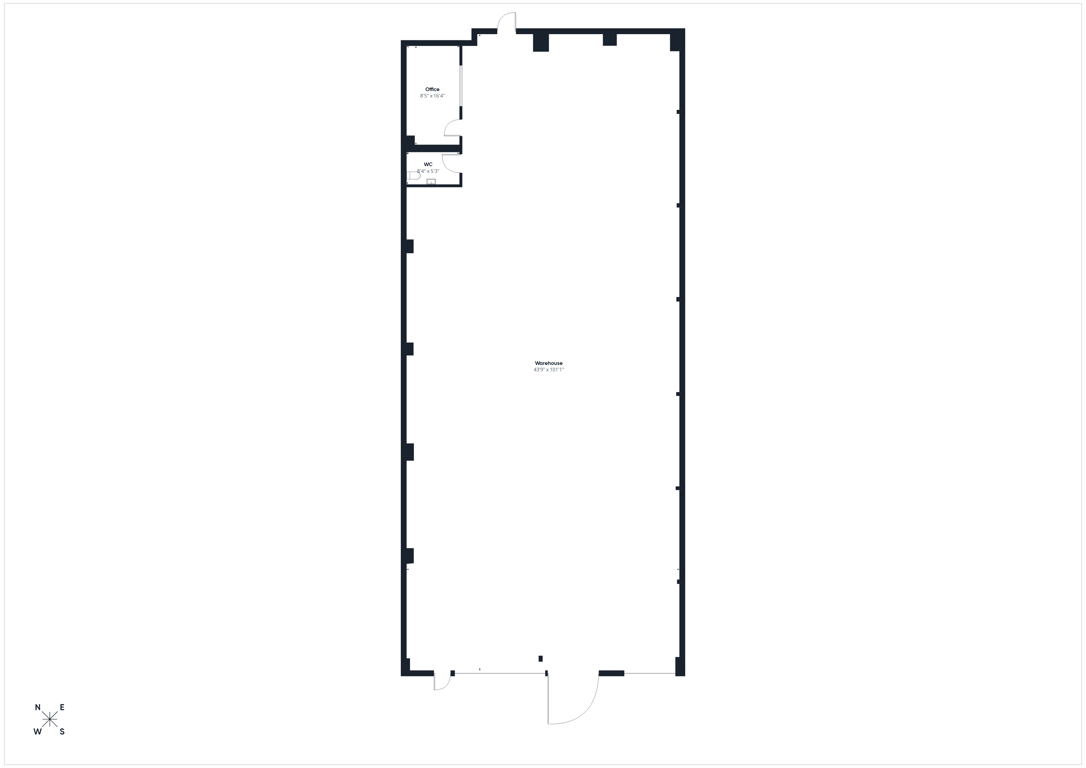
  • Integral office / kitchen / WC
  • Virtual tour available

Accommodation

The accommodation comprises the following areas:

Namesq ftsq mAvailability
Unit - 3E 4,386 407.47 Available
Total4,386407.47
Unit 3E, Albany Industrial Estate - CAM05096G0-PR0032-STILL004.jpg

Location

Albany Industrial Estate is well located trade / industrial location in close proximity to the M4 Motorway and Newport City Centre.

The Estate is located next to Sainsbury's on Aaragon Street.

Established trade occupiers in the vicinity include REXEL, Edmundson Electrical, Spartan Motor Factors and National Plastics.

The Estate is located off the A4042 main arterial route and is less than 0.5 miles from the M4 - accessible via Junction 25A and 26.

Newport City Centre is less than 1.5 miles via the A4042.

Get directions from Google Maps

Further Information

Rent £43,860 per annum plus VAT

Rates Payable £12,785.50 per annum based on 2023 Valuation

Service Charge £5,130.06 per annum Budget year ending March 2026

Estate Charge £1,514.70 per annum Current annual building insurance premium

EPC Rating This property has been graded as D (93)


Description

Unit 3E is an end of terrace light industrial /warehouse unit Gross Internal Area 4,435 sq ft (412 sq m) of Steel portal frame construction.
Mminimum eaves height 5 metres, maximum eaves height 6.6 metres. 2 No. roller shutter doors - width 4 metres, height 5 metres (manual).
Large external loading / circulation area.

Specifications

Steel portal frame construction
2 No. roller shutter doors (width 4 metres, height 5 metres)
Minimum eaves height 5 metres
Maximum eaves height 6.6 metres
Integral office / kitchen / WC
Generous parking provision on Estate

Viewings

Please contact Jenkins Best or our joint agents
Virtual tour available.

Terms

New lease available.

what3words

fresh.candle.neat