Modern open plan office with parking...

 

Summary

  • 6 Allocated parking spaces
  • Storage mezzanine level
  • Meeting room
  • Reception area

Location

Unit 3a Chestnut House is located within a small campus of office buildings overlooking open countryside, convenient for a lunch time walk. For access by road you are 1.3 miles from Junction 22 of the M25 and A1081. London Colney retail park which offers retailers such as M&S, Sainsburys, Greggs, Pure Gym and Next is 2 miles away and Radlett High Street is 2.8 miles, where you will also find the nearest train station.

Get directions from Google Maps

Further Information

Price £575,000

Rates Payable £17,340 per annum

Service Charge n/a

EPC Rating This property has been graded as B (44)


Description

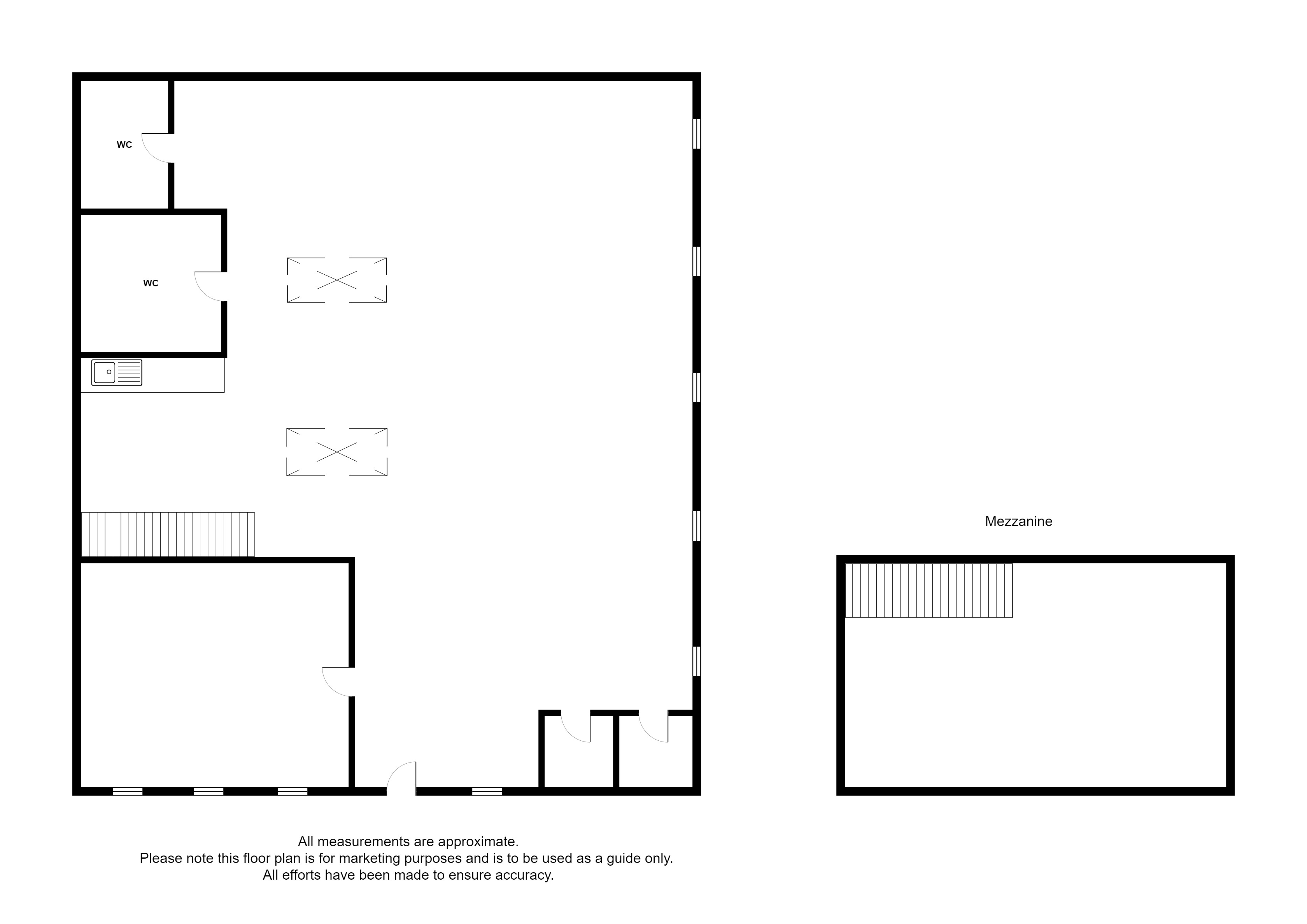
Ground floor open place office space presented in immaculate condition throughout, with a formal meeting room. The property offers two large W/C facilities and a kitchenette area. As you walk in you have an area which is suited for meet and greet or a reception desk. There is also a mezzanine level which is suitable for a large storage area. The building also has 6 allocated parking spaces which are included within the freehold title.