Semi detached Industrial / Warehouse To Let - Virtual Tour Available

 

Summary

  • Warehouse/ production area with 2 no offices and w.c facilities
  • Forecourt parking / loading area
  • Established / vibrant industrial estate
  • Close proximity to A470 dual carriageway
  • Minimum eaves height 3.75 m. Maximum eaves height 4.21 m
  • Electric Roller door: 3m wide x 3.4m high
  • LED lighting
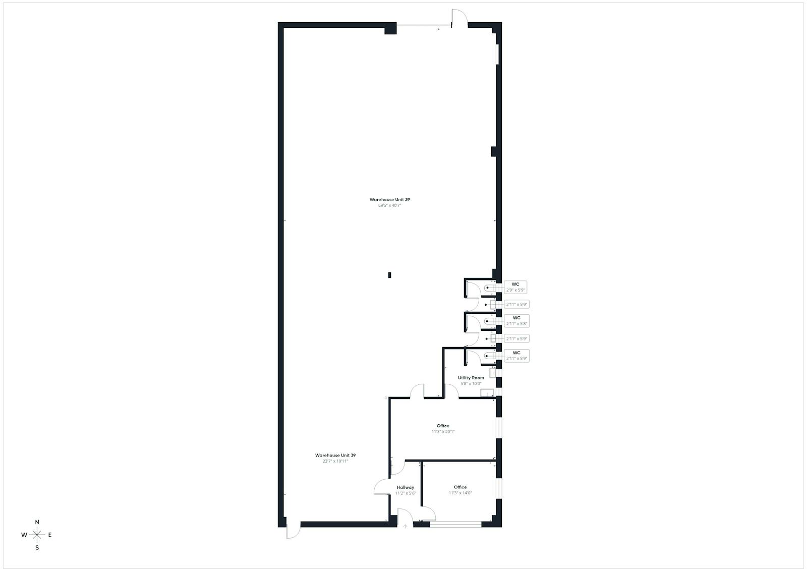
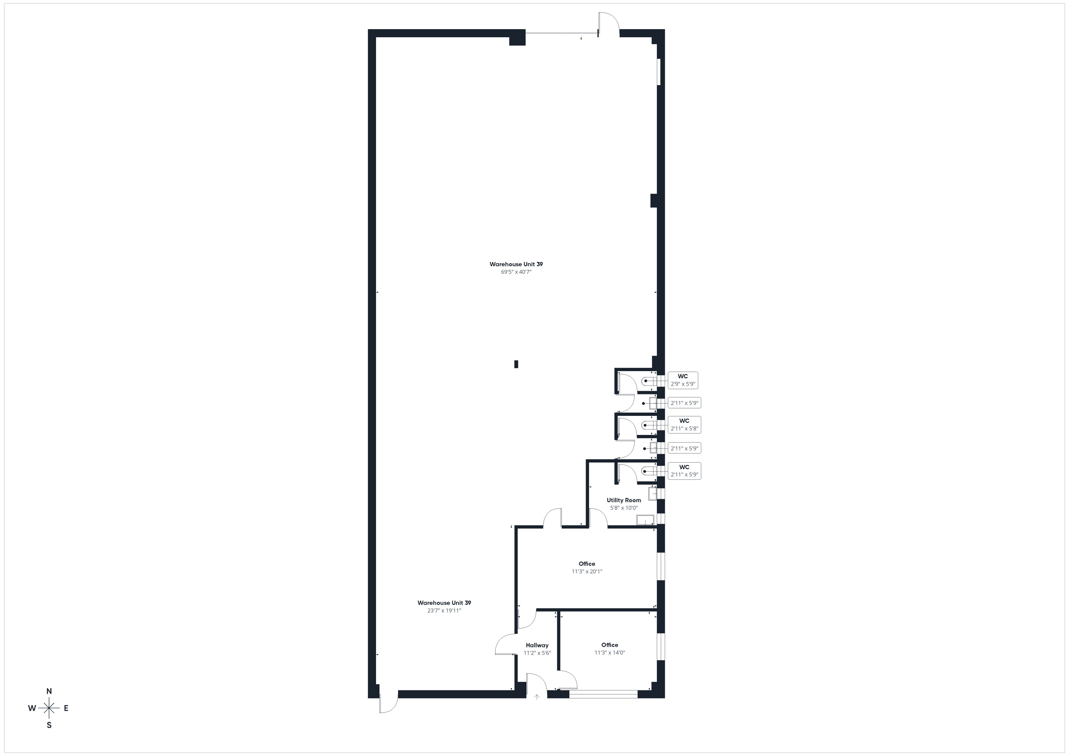
  • Generous office content (floor plans available)
  • Virtual Tour available

Accommodation

Floor/UnitDescriptionsq ftAvailability
Unit 39 3,785 Available
Total3,785
Unit 39, Albion Industrial Estate - CAM05096G0-PR0028-STILL006.jpg

Location

Albion Industrial Estate is one of the established industrial estates in the lower Cynon Valley areas.

The estate is situated approximately 2.5 miles north of Pontypridd. The estate is accessed via the A4054 (Merthyr Road).

Junction 32 of the M4 motorway is approximately 12 miles to the south, accessed via the A470 dual carriageway.

Get directions from Google Maps

Further Information

Rent £34,065 per annum payable monthly in advance

Rates Payable £14,484 per annum Based on 2026 Valuation

Service Charge £3,472.67 per annum Budget Year End Sept 2026

Estate Charge £869.86 per annum Insurance premium for year ending June 2026

EPC Rating This property has been graded as D (78)


Description

Albion Industrial Estate is a popular commercial location situated adjacent to the A470.

These units comprise of a steel portal frame construction with part brick/blockwork, part metal clad elevations under a pitched roof.
With open plan workshop / warehouse accommodation, roller shutter door, LED lighting and dedicated parking with additional communal parking.

Unit 39 is a modern semi detached light industrial /warehouse unit of steel frame construction with part brick/blockwork, part metal clad elevations under a pitched roof.

The unit was re-built in 2020.

Specifications

Minimum eaves height 3.75 m.
Maximum eaves height 4.21 m
Roller door: 3m wide x 3.4m high
Single Pedestrian door
Office 01: 4.3m x 3.5m
Office 02: 6.2m x 3.5m
2.no WC's
3 phase electricity and water.
Virtual tour available
Floor plans available

Viewings

Contact Jenkins Best for a viewing.

Virtual Tour also available.

Terms

The unit is available on new Full Repairing and Insuring Lease for a term to be agreed.

what3words

crunchy.surprises.landscape