Retail Warehouse/Trade Counter Property.

 

Summary

  • Retail Warehouse/Trade Counter
  • 3,896 sq ft
  • Established Commercial Location
  • Abutting Main Road Location
  • Fringe of town
  • Open Plan Space
  • 5 dedicated Parking Spaces

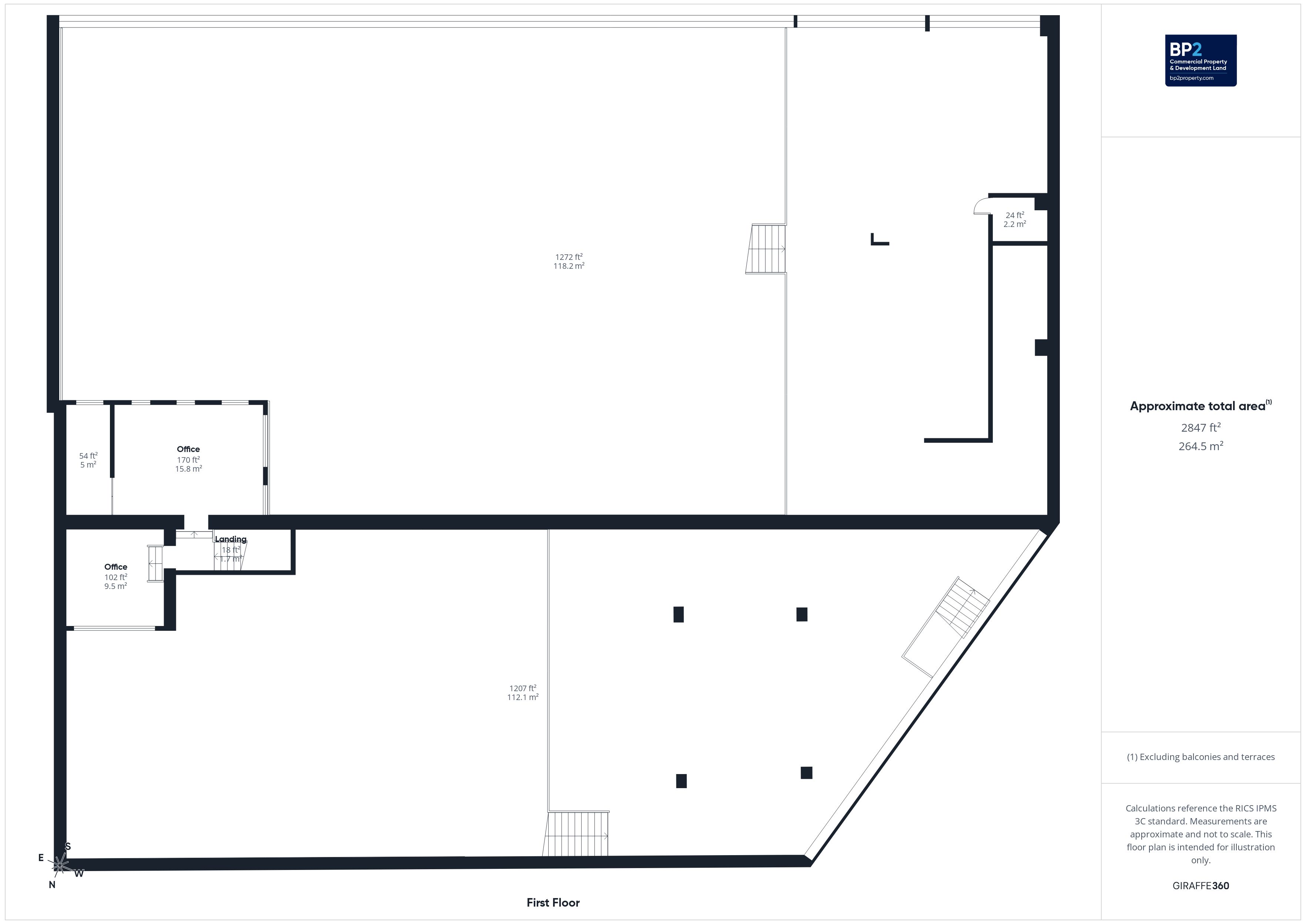
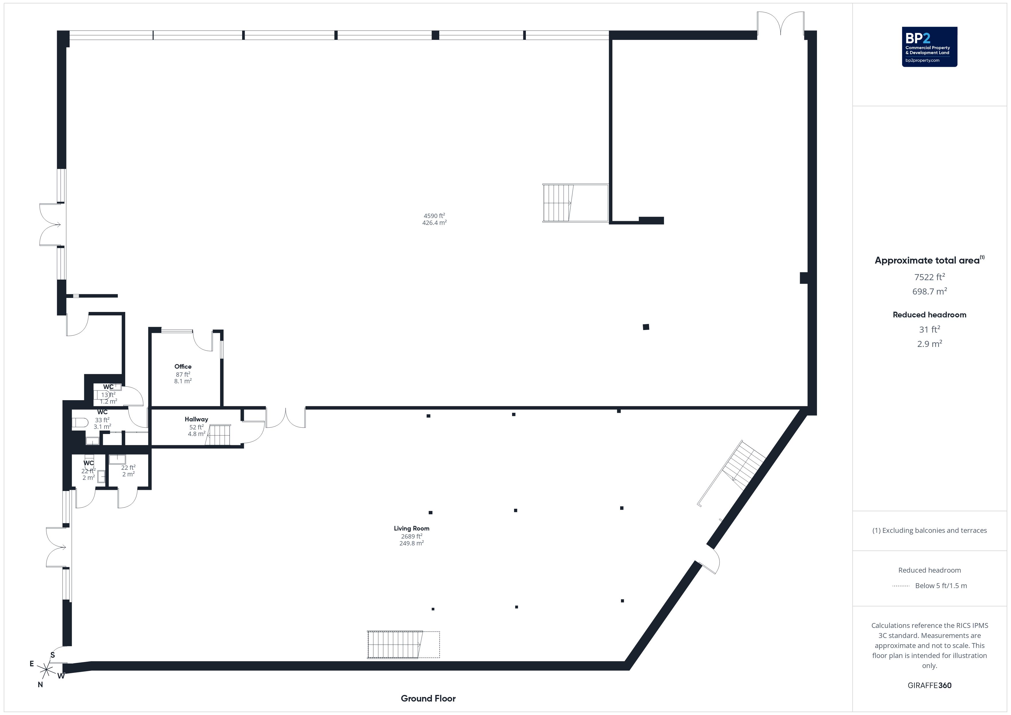
Accommodation

Namesq ftsq mAvailability
Ground - Retail Warehouse 2,689 249.82 Available
Mezzanine - Retail Warehouse 1,207 112.13 Available
Total3,896361.95
Unit 2 - PHOTO 7.jpg

Location

The property is situated within the Sandy area of Llanelli, an established commercial and mixed-use locality.

The immediate area comprises a mix of commercial, industrial and residential occupiers, providing a strong local catchment. Sandy Bridge lies on the western side of Llanelli, within proximity to the town centre amenities.

The wider Llanelli area has undergone significant regeneration, with investment in retail, leisure and business infrastructure.

Get directions from Google Maps

Further Information

Rent £26,000 per annum

Rates Payable To be re-assessed

EPC Rating This property has been set as EPC exempt.
Reason: EPC has been commissioned, will be available in less than 28 days


Description

A mid terrace retail warehouse unit which is of steel frame construction with brick clad front and rear elevation under a pitched roof. A retail frontage is provided on the front elevation with roller shutter door.

The building fronts directly onto a common yard area which has direct access from the main road.

Open plan space is provided on the ground floor with part first floor cover, with self contained staff and office facilities provided.

Specifications

- Open Plan Space
- Part First Floor Cover at Rear
- Staff & Kitchen Facilities
- Office Space

Utilities

Gas Heating, Water and Electric.

Lease

A new full repairing and insuring lease (FRI) for a minimum term of 3 years.