High Profile Retail Unit

Shell & Core

 

Summary

  • High Profile Opportunity
  • c. 55 sq. m. / 592 sq. ft.
  • Customer Parking Spaces
  • Suit a Variety of Users
  • Available July 2026

Accommodation

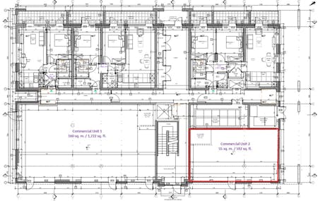
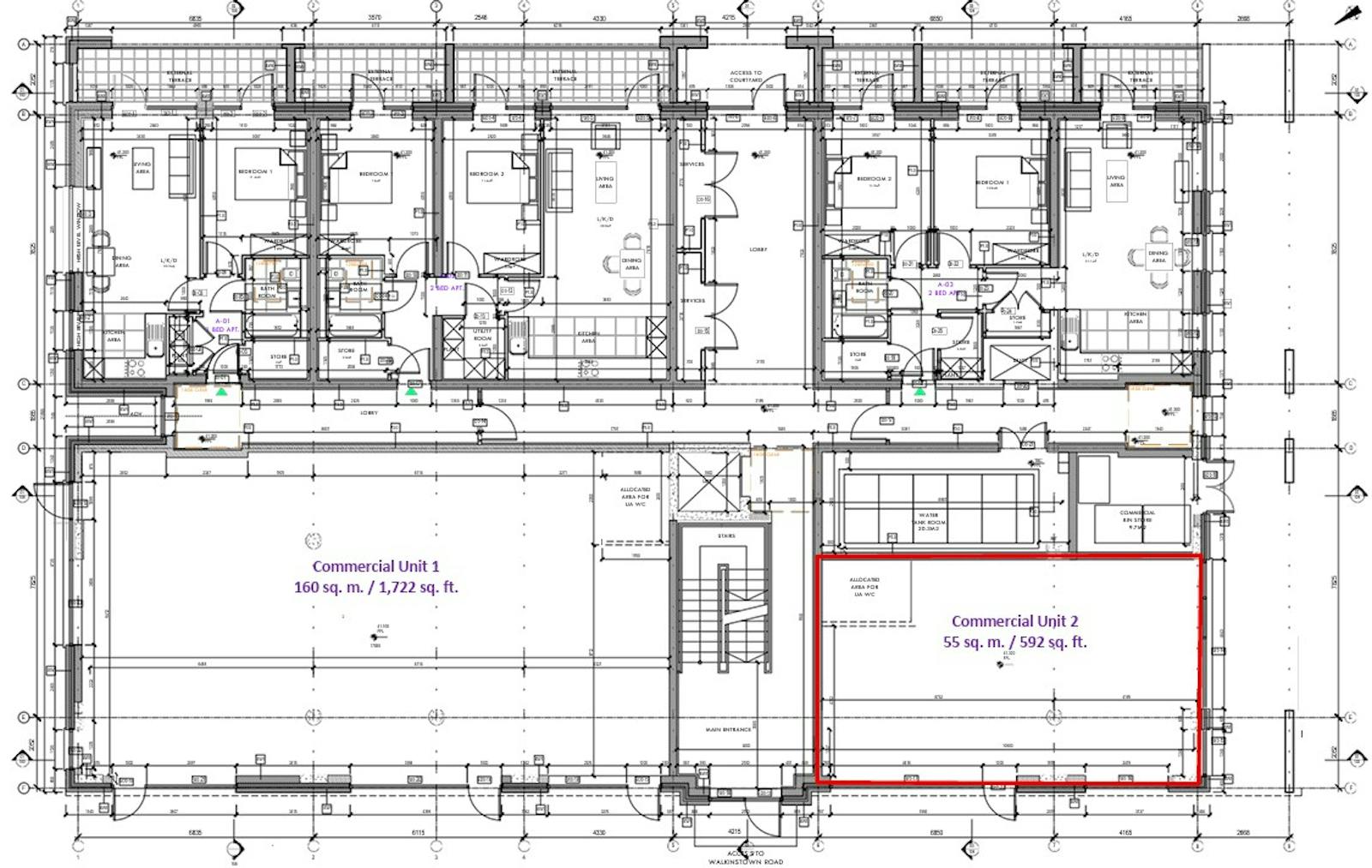
The accommodation comprises the following GIA areas:

DescriptionBuilding Typesq ftsq mTenure
Unit 2 Retail 592 55 To Let
Total59255
Unit 2 Balfe Court - CG1 2.jpg

Location

The development is located in a high-profile location on the Walkinstown Road. The area is a prime target for high-density residential and mixed-use development, signalling a significant transition from a traditional suburb to a modern urban hub.

The building enjoys a high profile at a busy junction in Walkinstown, where the Walkinstown Road, Long Mile Road, and Drimnagh Road intersect, situated approximately 6 km southwest of the City Centre.

The surrounding area is a well-established residential suburb with c. 8,000 residents in the area. The proximity to the industrial and commercial hubs along the Long Mile Road and Ballymount generates significant footfall.

The development and the nearby Walkinstown Roundabout are served by high-frequency bus routes connecting directly to the city centre and the surrounding suburbs. The BusConnects Phase 8 changes in the first half of 2026 will see the full rollout of the D-Spine and new routes like the 57 and 58, which will consolidate service through Bluebell and Walkinstown to provide a bus every 15 minutes toward the city centre. This increased capacity is designed to support the large-scale residential developments currently under construction in the area.

The Bluebell Stop on the Luas Red Line is also a 20-minute walk away, providing trams every 5 minutes at peak times and every 10–15 minutes during off-peak hours.

Get directions from Google Maps

Further Information

Rent Rent on application

Parking Charge Upon Enquiry

BER Rating This property has been set as EPC exempt.
Reason: Currently being constructed or undergoing major refurbishment


Description

The retail opportunity comprises a ground-floor retail unit extending to c. 55 sq. m. / 592 sq. ft. in a development comprising 70 residential units over 6 blocks.

The retail unit is due for completion in July 2026 and will be ready to receive tenant fit-out immediately.

Unit 2 benefits from fully glassed shopfronts with an aluminium door.

The property would suit a variety of retail uses, including Beauty, Medical, Public Office, Financial Service, Veterinary & Other.

All intending occupiers are specifically advised to verify the floor areas and undertake their own due diligence.

Viewings

Viewings by Appointment Only - Please contact Quinn Agnew

Terms

New Lease - Flexible Lease Terms Available

Prohibited Users:

- Pharmacy
- Off-Licence
- Bakery / Deli
- Grocery Supermarket / Newsagent