An exciting new campus leading the way in Fusion Research and Advanced Technologies and Engineering Cluster.

 

Summary

  • UKAEA Campus
  • Fusion Energy campus
  • Cat A+ Fit Out
  • Free parking
  • 70 bike racks
  • EV car chargers
  • Passenger lifts
  • On-site shower facilities
  • Large apparatus space
  • Costa Coffee on site
  • Frost protection

Accommodation

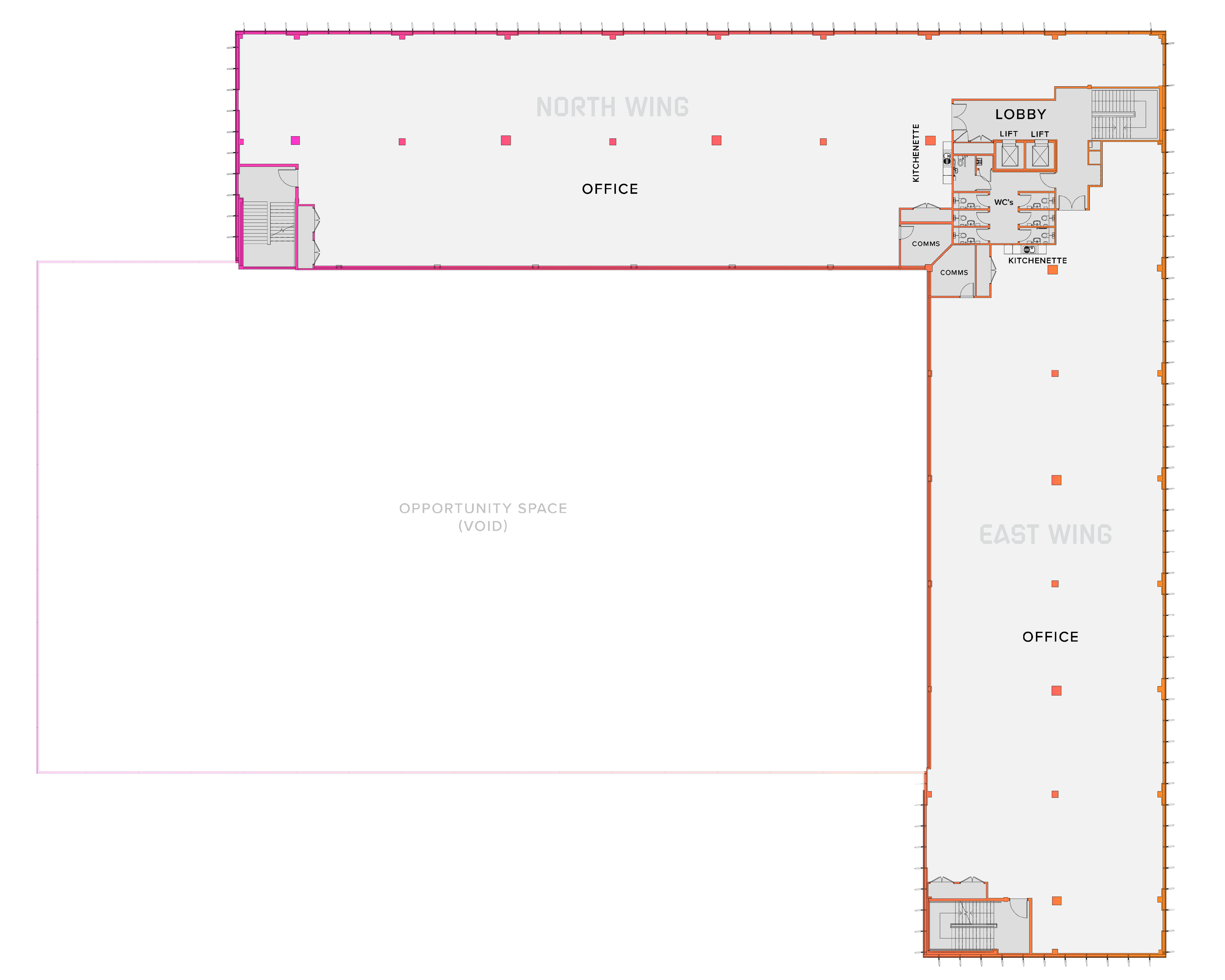
The accommodation comprises the following areas:

Namesq ftsq mAvailability
Ground - North Wing 8,046 747.50 Available
Ground - East Wing 7,649 710.62 Available
1st - North Wing 8,621 800.92 Available
1st - East Wing 8,938 830.37 Available
2nd - North Wing 9,195 854.24 Available
2nd - East Wing 8,954 831.85 Available
3rd - North Wing 9,179 852.76 Available
3rd - East Wing 8,938 830.37 Available
Ground - Rig Hall 23,976 2,227.44 Available
Total93,4968,686.07
The Hornbill Building, Culham Campus Innovation Centre - R6AC7813_rt.jpg

Location

Located at the entrance to Culham Campus it provides excellent access to the core campus and amenity spaces. The campus also provides a range of other facilities including a 234-seating conference centre with open foyer and boardroom meeting space. For security there is a 24-hour on-site personnel team, and all buildings are accessed via electronic access control including a secure gate reception. The closest train station is Culham Station which is a 10 minute walk which has direct access into Oxford City Centre.

Get directions from Google Maps

Further Information

Rates Payable £12 per sq ft For the office space, Rig hall space TBC

EPC Rating This property has been graded as A


Description

The Hornbill Building offers Grade A office space and is ideal for occupiers in the Advanced Technology and Advanced Engineering industries, and the Fusion Technology Cluster. The building is part of an exciting new campus which is leading the way in the Fusion and Advanced Technology Cluster for the UK. Split across four floors and focused on providing the best in terms of research and development space it comes with a premium Cat A+ fit out, fully electric capabilities, BREEAM ‘Excellent’ rating, PV roof and EPC of A.

Other office highlights include; LED lighting, carpeting and fully accessible floors as well as a kitchenette on each floor. The building also offers floor-to-ceiling height glazing, a double height glazed atrium reception area and two passenger lifts, shower facilities, 70 bike racks and EV parking bays.

The Hornbill Building also comes with an ‘opportunity Space’ with a 12m clear internal height, 50kN/m2 floor loading, and 3 level access loadings. The space offers a productive space for large scale research apparatus which can be designed to suit and also has the flexibility of sub-division.

Specifications

Office Specifications

Cat A+ inclusive of carpeting, floor boxes, structured cables (Cat 6), and a kitchenette on each wing.
Double height glazed reception atrium.
Flexible floorplates facilitating occupation in entirety, on a floor-by-floor or up to 8 wing-by-wing bases.
Comfort cooling via Variable Rate Volume (VRV) system.
LED lighting (PIR).
Fully accessible 160mm raised access floors.
Designed to a density of approximately 1:7 sq m on the Ground Floor and approximately 1:11 sq m on First – Third Floors.
Two passenger lifts.
600 x 600 ceiling grid system.
Unisex and disabled W/C facilities on each floor.
13 shower room facilities on ground floor.

Viewings

Please request a site viewing from one of our agents.

Opportunity Space Specification

12m clear internal height.
50kN/m2 floor loading.
3 level access loading doors.
21.76m service yard depth supported by 65m access road.
Capable of sub-division into 2 or 3 equal units.
1.25mVA power (expandable to 2.75mVA).