Summary

Property Type Office
Tenure To Let / For Sale
Size 3,318 sq ft
Price Offers in the region of £595,000
Rent £40,000 per annum
Rates Payable £13,722.50 per annum
Service Charge To be confirmed.
EPC Rating This property has been graded as D
  • NIA 3,318 ft2
  • Attractive Barn Style Office Building
  • Parking for Multiple Vehicles
  • Open Plan and Cellular Office Space
  • Being Lightly Refurbished and Ready for Occupation in Q4 2025

About

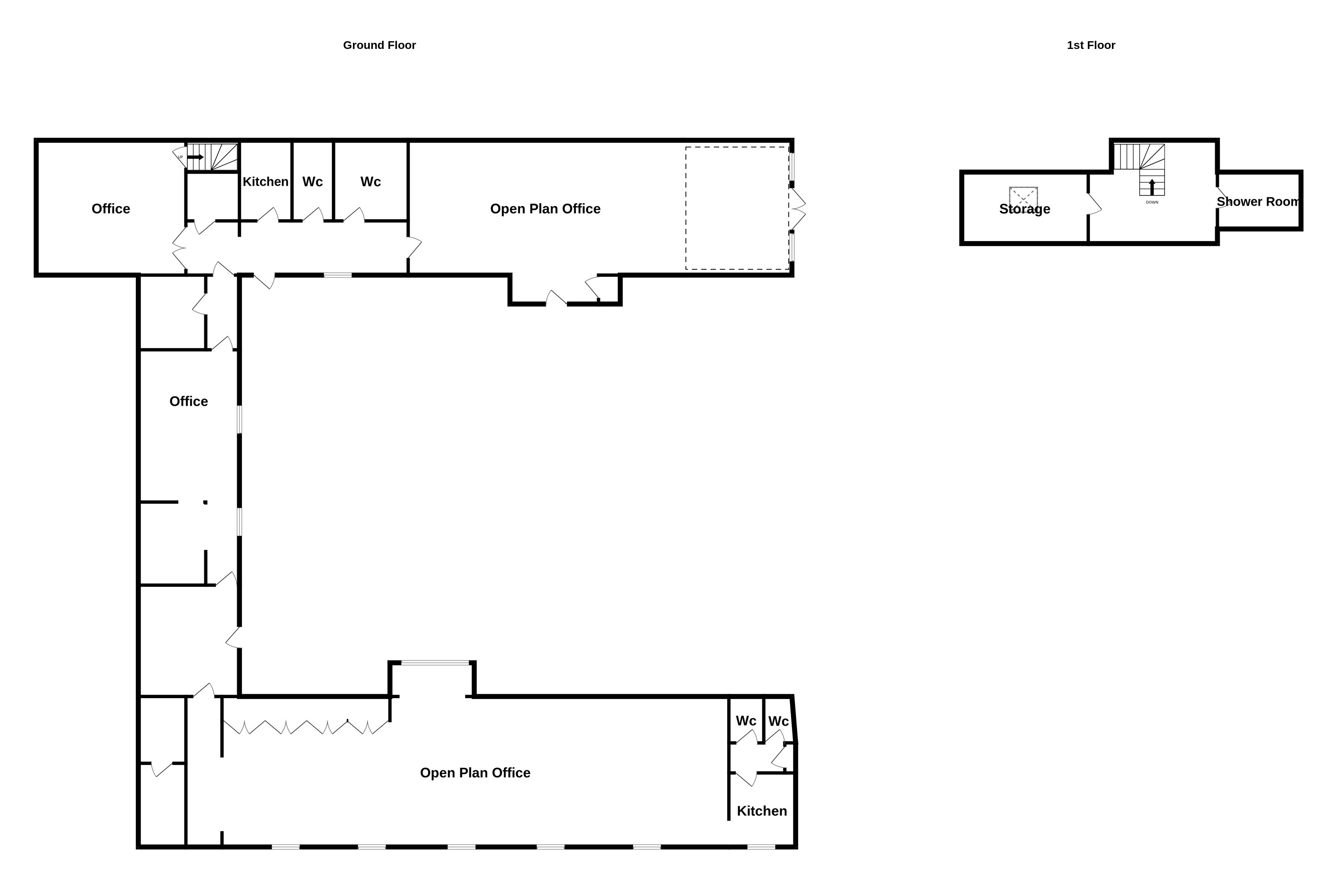
The property comprises a distinctive horseshoe-shaped converted barn, sympathetically adapted to create attractive office accommodation. Constructed of traditional masonry beneath a pitched tiled roof, the building retains its original character whilst offering modern functionality.

The accommodation is predominantly arranged at ground floor level and provides two largely open-plan office areas, together with a welcoming reception, kitchen, w.c. facilities and ancillary space. The first floor offers additional offices/storage together with the benefit of shower facilities.

The premises are currently being refurbished to include redecoration, newly painted woodwork, and replacement floor coverings, ensuring a high-quality finish and a flexible blank canvas for occupiers to tailor to their own requirements.

Externally, the property enjoys excellent parking provision, with spaces within the attractive central courtyard as well as a further substantial car park to the south of the site. The barn-style design and rural surroundings create an appealing working environment that combines character, practicality, and convenience.

Location

The property is located just off Coventry Road (B4098), approximately 2 miles south of Kingsbury village centre. The location provides excellent transport connectivity, with the nearby A4097 offering direct access to Junction 9 of the M42 motorway and the M6 Toll Road. These routes, in turn, link to the wider Midland motorway network, facilitating convenient travel across the region and beyond. Birmingham International Airport, Birmingham International Railway Station, and the National Exhibition Centre (NEC) are all within easy reach, providing strong regional, national, and international connections.

Birmingham city centre is located some 13 miles west, with a drive time of approximately 20 minutes.

The immediate surroundings comprise a mix of uses. To the north, the property adjoins commercial premises, while to the south and west there are residential dwellings. The wider locality is predominantly rural and agricultural in character, contributing to a pleasant setting whilst retaining proximity to key transport routes.

Get directions from Google Maps

The Courtyard, Bodymoor Green Farm - Photo 02122025 11 37 42.jpg

Further Information

  • What3words

    bolt.connects.wordplay

  • Services

    We understand that the building benefits from mains electricity and water.

    The property is served by an on-site Calor gas tank which provides the fuel supply for heating and hot water. The tank is located within the curtilage of the site and is subject to regular servicing and refilling by the supplier.

    The agent has not tested the suitability of the connections and therefore recommends that interested parties carry out their own investigations.