Fully fitted office suites in one of Glasgow’s most distinctive buildings

 

Summary

  • On-site building management & security
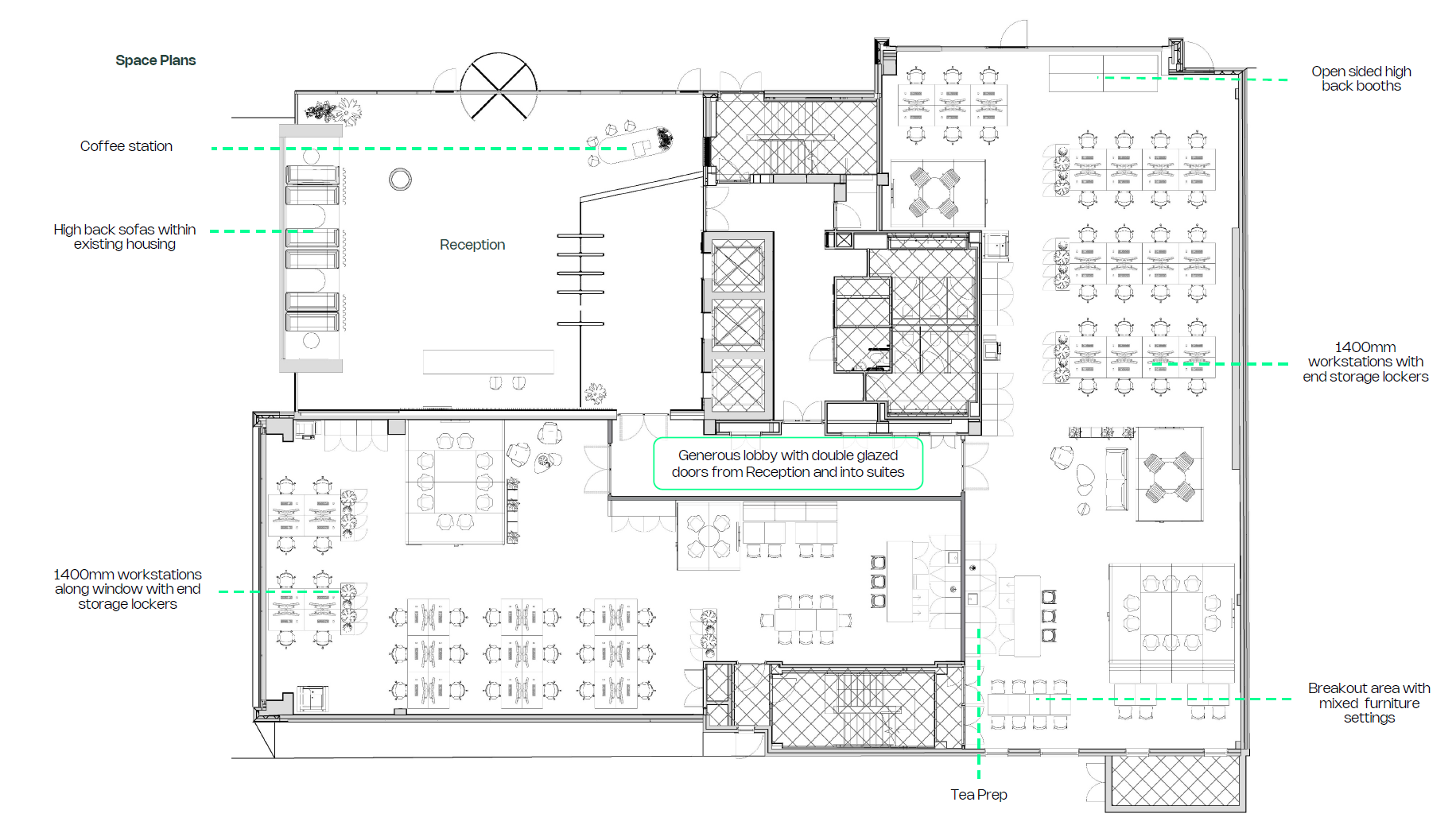
  • Move-in ready office suites featuring modern furniture, meeting rooms and tea prep areas
  • 3 x high speed passenger lifts
  • VRF air conditioning system
  • Exposed ceilings with LED pendant lighting
  • Metal raised access flooring
  • Male, female and accessible toilets on all floors
  • 100% electric - no fossil fuels
  • Secure basement car parking
  • New wellness facilities including, dedicated female & male showers, locker rooms and drying space
  • Speed gate turnstiles

Accommodation

The accommodation comprises the following areas:

Namesq ftsq mAvailability
9th 5,973 554.91 Let
8th 8,804 817.92 Let
7th 8,807 818.20 Let
6th 9,085 844.02 Let
5th 9,074 843 Let
4th 9,132 848.39 Under Offer
3rd 9,130 848.20 Under Offer
2nd 9,076 843.19 Let
1st 9,072 842.82 Let
Ground - Suite 2 3,143 291.99 Available
Ground - Suite 1 2,551 237 Available
Total83,8477,789.64
Sentinel Building - 6880055McAteer Large.jpg

Location

Sentinel is within walking distance of Glasgow Central and Queen Street stations, with all major public transport links nearby.

Located on Waterloo Street, the building offers direct access to the city’s main exit route, with Glasgow Airport just 10 minutes away. An express bus service to the airport picks up regularly from two nearby stops.

Get directions from Google Maps

Further Information

Rates Payable £11.86 per sq ft

EPC Rating This property has been graded as A


Description

Sentinel is a prime, landmark office building, comprising 84,095 sq ft of office accommodation across ground and nine upper floors.

The building is steel framed with glazed curtain walling on three elevations providing an abundance of natural light from the north, south and west.