Summary

Property Type Industrial
Tenure To Let
Size 1,780 to 16,565 sq ft
Rent £6 per sq ft
Rates Payable Upon Enquiry
  • Established business location
  • Communal yard area & circulation space
  • On site car parking
  • Flexible terms
  • Further sub-division possible

About

The subjects comprise a former factory premises which is to be extensively refurbished to provide easily adaptable and flexible accommodation to suit a variety of uses. The building will be sub-divided to provide a number of units which can be further split to meet individual occupier requirements.

There is a large surfaced yard extending to approximately 1.5 acres which provides communal yard areas, ample circulation space and car parking.

Location

Arbroath is attractively situated on the east coast of Scotland with good road communication routes via the A90 and A92 to Dundee and Aberdeen as well as the nearby towns of Forfar, Montrose, Brechin and Carnoustie.

The subjects are located on a prominent site within Elliot Industrial Estate on the west most edge of the town. Elliot Industrial Estate is one of the most popular and well established business locations in Arbroath with occupiers include Stagecoach, Halliburton, Bairds Malt, Buildbase and Travis Perkins. Arbroath town centre, including train and bus stations, is only 5 minutes drive away.

Get directions from Google Maps

Further Information

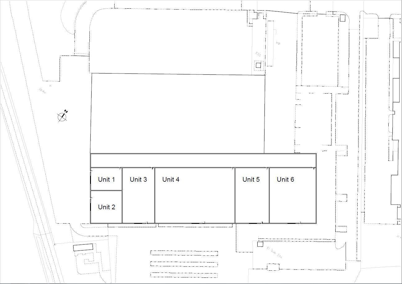
  • Accommodation

    The sub-divided accommodation will provide the following unit sizes:-

    Unit 1 - 216 sq m (2,325 sq ft)
    Unit 2 - 272 sq m (2,927 sq ft)
    Unit 3 - 495 sq m (5,328 sq ft) - LET
    Unit 4 - 1,169 sq m (12,581 sq ft) - LET
    Unit 5 - 495 sq m (5,328 sq ft)
    Unit 6 - 683 sq m (7,362 sq ft)

    Total - 3,330 sq m (35,851 sq ft)

  • Terms

    The premises are immediately available by way of a new full repairing and insuring lease at a rent to be negotiated.

  • Viewing

    Strictly by appointment by the sole agents, Westport Property.

  • Entry Timescale

    On completion of development works.

  • VAT

    All prices, premiums and rents are quoted exclusive of VAT which may be payable.