Summary

Property Type Development Potential / Residential Development
Tenure For Sale
Size 1.05 Acres
Price Offers in excess of £1,500,000
Rates Payable Upon Enquiry
Service Charge n/a
Estate Charge n/a
EPC Rating This property has been set as EPC exempt.
Reason: Due for demolition
  • 1.05 Acres
  • Approved detailed planning consent
  • Exclusive residential development
  • Approval for 5 dwellings & improved vehicular access

About

This is an attractive plot with planning permission approved for an exclusive residential development.

The site occupies approximately 1.05 acres just off the main A423 / Southam Road, and currently comprises a single storey building to the front of the site and a two storey former factory space centrally within the plot.

Location

Banbury is a thriving market town in Oxfordshire, conveniently located for access to the Midlands and the South.

The town lies at Junction 11 of the M40, which provides direct access to London and Birmingham, making it particularly appealing to a commercial occupier.

Banbury is approximately 80 miles northwest of London, 50 miles southeast of Birmingham and 22 miles north of Oxford.

Little Bourton village (approximately 2 minute walk away) is a serene historically routed village with scenic countryside charm and lovely views, perfect for those who appreciate rural calm with the practicality of a nearby town.

The site is situated on Southam Road to the north of the town, 2 miles from the motorway junction, and near to the Bellway Homes development.

Get directions from Google Maps

Further Information

  • Viewings

    Strictly by prior arrangement with the sole agents.

  • Terms

    This site is available to purchase at an asking price of offers in excess of £1,500,000 exclusive of VAT.

  • Planning

    The site has planning approval reference 24/00843/F for the erection of 4 dwellings including improved vehicular access and change of use of the existing Coach House to a further single dwelling.

  • Further Planning Opportunities

    Previous iterations of the scheme included elements of second floor accommodation. This prospect remains designed into the project and would add approximately 140sq m (1500 sq ft) gifa on a plot-by-plot basis:

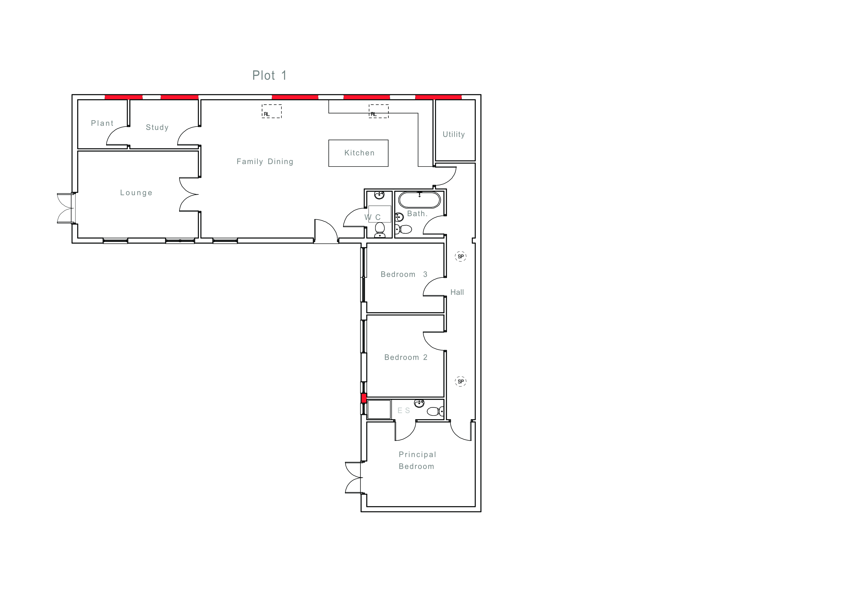
    Plot 1 – 43 sq m (460 sq ft) utilising existing volume [greater and perhaps up to 100 sq m (1,076 sq ft) if extended]
    Plot 2 – 31 sq m (333 sq ft)
    (Plot 3 – approved as 3-storey)
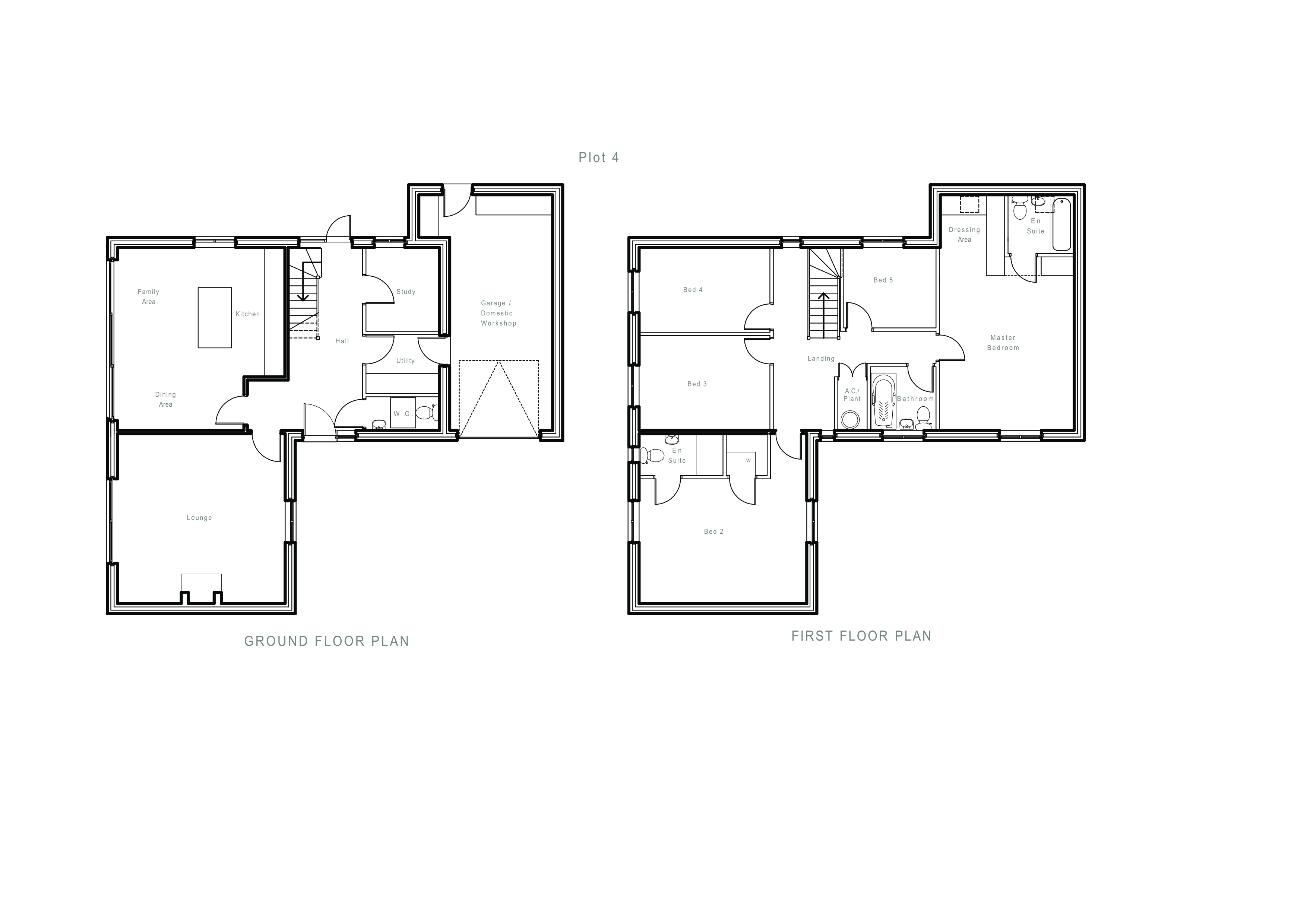
    Plot 4 – 35 sq m (377 sq ft)
    Plot 5 – 31 sq m (333 sq ft)

    A sixth plot was proposed between plot 5 and the boundary of Eden Hall to the south. However, due to objection and the need to obtain consent for the wider site, it was agreed that this would be omitted from the scheme to smooth the path for a five-dwelling consent development.

    There is no doubt that a sixth plot could be accommodated in this location, subject to a detailed assessment against the constraints imposed upon it by the presence of the neighbouring property. It is believed that there is nothing in the design of plot 5 that would impact this potential either.

    A previous scheme for plot 6 included a dwelling of 136 sq m gifa It is believed that a bungalow could be a simpler route to gain consent for and, no doubt, carry a premium due to scarcity.

  • Further Information

    Further information is available on request including planning documents, floor plans, surveys and title documents.