Corner Commercial Unit

Warehouse & Office Accommodation

 

Summary

  • Prominent Corner Business Unit incorporating c. 45% Warehouse
  • Currently Undergoing a Complete Refurbishment
  • Entire c. 532 sq. m. / 5,726 sq. ft.
  • 10 Car Parking Spaces
  • Located in a Managed Business Park

Accommodation

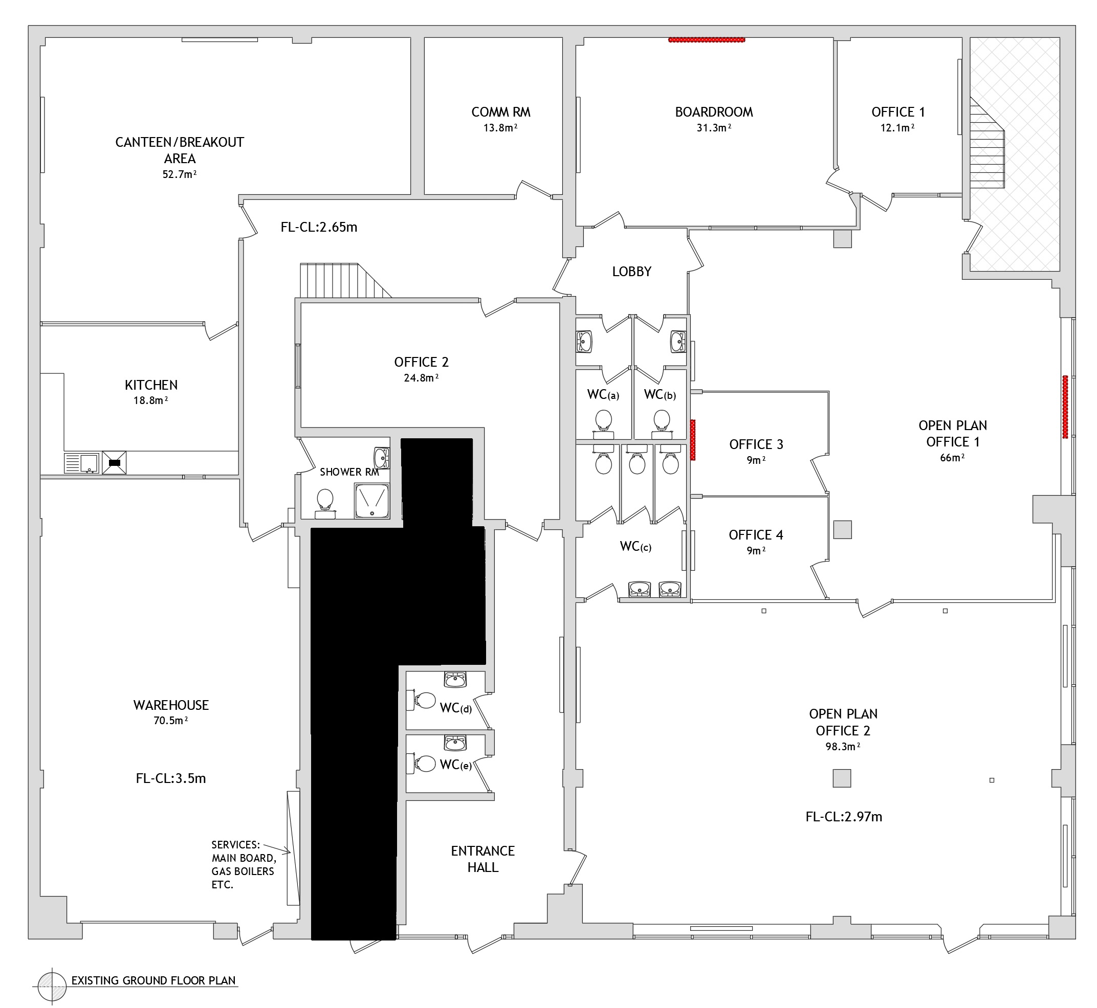
The accommodation comprises the following areas:

Floor/UnitDescriptionsq ftsq mAvailability
Ground Warehouse 2,443 226.96 Available
Ground Office / Ancillary 3,283 305 Available
Total5,726531.96
Ground Floor, Unit G9 Calmount Park - 2.jpg

Location

Calmount Business Park is a modern corporate development located in Ballymount, Dublin 12, c. 8 km southwest of Dublin City Centre.

The Business Park is strategically positioned at the junction of Calmount Road and Ballymount Avenue, c. 600 metres from Junction 10 of the M50, facilitating immediate access to the main arterial routes serving the country, Dublin Airport and Dublin Port.

It is widely recognized as one of Dublin's premier enterprise parks due to its high-specification units and excellent connectivity to major transport routes

The development comprises a mixture of business, warehouse and office accommodation over six blocks comprising approximately 80 units.

The subject property is situated within Block G, comprising 15 units.

Get directions from Google Maps

Further Information

Rent Rent on application

Rates Payable €11,256 per annum

Service Charge €5,644 per annum

BER Rating This property has been graded as D2


Description

The property comprises the ground floor of Unit G9 Calmount Park, a prominent corner unit with dual profile.

The building is of precast portal frame construction with concrete block infill walls, an external brick façade and a featured Aluspan Module, curtain wall glazing system.

The warehouse accommodation extends to c. 227 sq. m. / 2,443 sq. ft. & is accessed via a grade roller shutter door.

The offices and ancillary areas extend to c. 305 sq. m. / 3,283 sq. ft.

The property is currently undergoing a complete refurbishment and will be offered to perspective tenants in turn-key condition.

Following the completion of the refurbishment programme the new layout will provide open plan offices, 3 x cellular offices, kitchen incorporating a break-out area, 6 x WC's & 1 x shower room.

10 car parking spaces are designated to the property.

Viewings

Viewings by Appointment Only - Please contact Quinn Agnew

Terms

New Lease - Flexible Lease Terms Available

Occupational Costs

Commercial Rates
2026 - €11,095.20

Service Charge
2026 - €5,644 excl. VAT