A statement building of meticulously re-engineered workspace, where efficiency and design integrate.

 

Summary

  • 150mm raised floors
  • 2,700mm floor to ceiling height
  • Dual entrace with double height reception
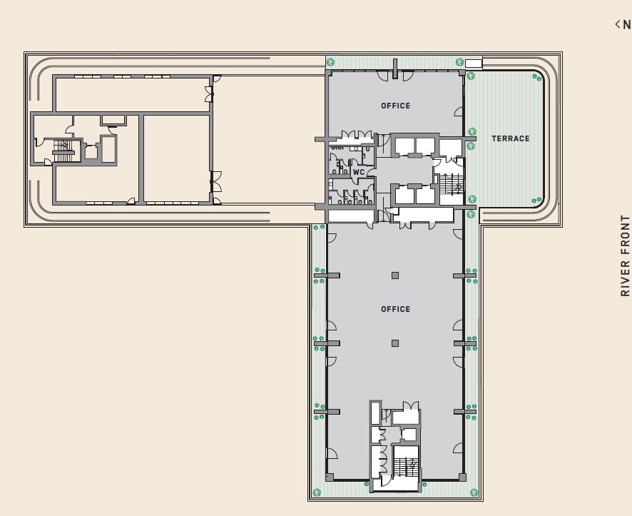
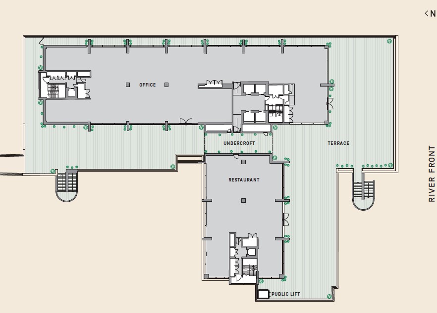
  • 25,160 sq ft of total terrace
  • WiredScore Silver
  • BREEAM Excellent
  • Feature cycle entrance
  • 23 showers & 228 Lockers
  • Gated loading bay
  • Full electric building with proposed with on site generation

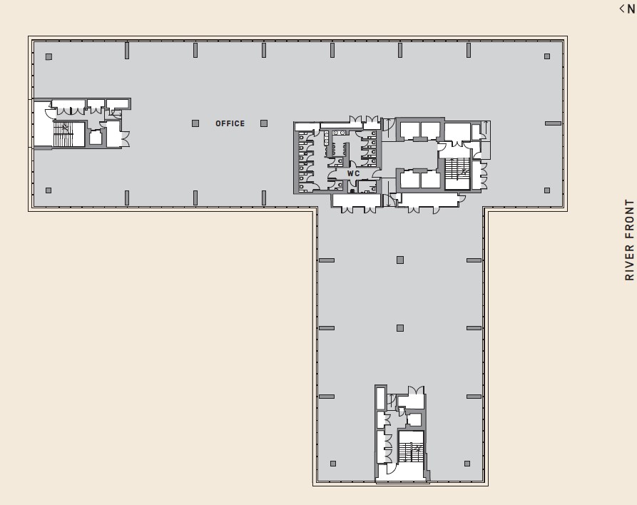
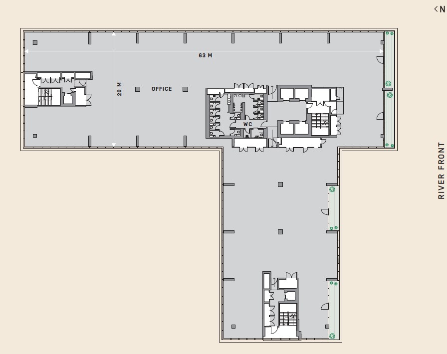
Accommodation

The accommodation comprises the following areas:

Namesq ftsq mAvailability
10th 1,937 179.95 Available
9th 6,598 612.97 Under Offer
8th 6,620 615.02 Under Offer
7th 17,234 1,601.09 Under Offer
6th 17,201 1,598.03 Under Offer
5th 17,266 1,604.06 Under Offer
4th 16,663 1,548.04 Under Offer
3rd 17,223 1,600.07 Under Offer
2nd 11,377 1,056.96 Available
1st 12,702 1,180.05 Available
Ground 6,684 620.96 Available
Ground - Reception 4,833 449 Available
Total136,33812,666.20
Fresh Wharf, 3 Lower Thames Street - Exterior3.jpg

Location

Bridging the City and the Southbank. On the riverside, with a vista of the Thames with London Bridge on the doorstep.

Bank, London Bridge, Cannon Street, Fenchurch Street and Tower Hill tube stations are all under a 10 minute walk from the building, with Liverpool Street, Waterloo, King's Cross St Pancras, Victoria and Paddington rail stations all less than a 25 minute tube journey away.

Get directions from Google Maps

Further Information

Rates Payable Upon Enquiry

Service Charge n/a


Description

Fresh Wharf has sweeping dual entrances into a reception finished in high quality materials that invites everyone through with a grand arrival. Activated with social spaces throughout that work from the moment you arrive. Picking up a coffee from the lobby cafe to enjoy in the landscaped courtyard or riverside garden, or on your way up to the business lounge.

The floors provide dedicated state-of-the-art office space. Look out 360° with unlimited natural light from all sides. A carefully maximised design with a Cat A fit-out with an enviable view.

From the terraces, take in London's iconic vista from the south facing aspect that gives the Thames below a golden glow.