TO LET - Modern Office / Trade Retail / Showroom Premises

 

Summary

  • Modern Versatile Space in Prominent Position
  • Extending to 6,400 sqft (5,000 sqft ground, 1,400 sqft first floor)
  • Hybrid Style Premises
  • Situated with Frontage to Northern Road
  • Prime Roadside Position with Ample Parking
  • 16 Parking Spaces in Total
  • Self-contained and Ready for Occupation

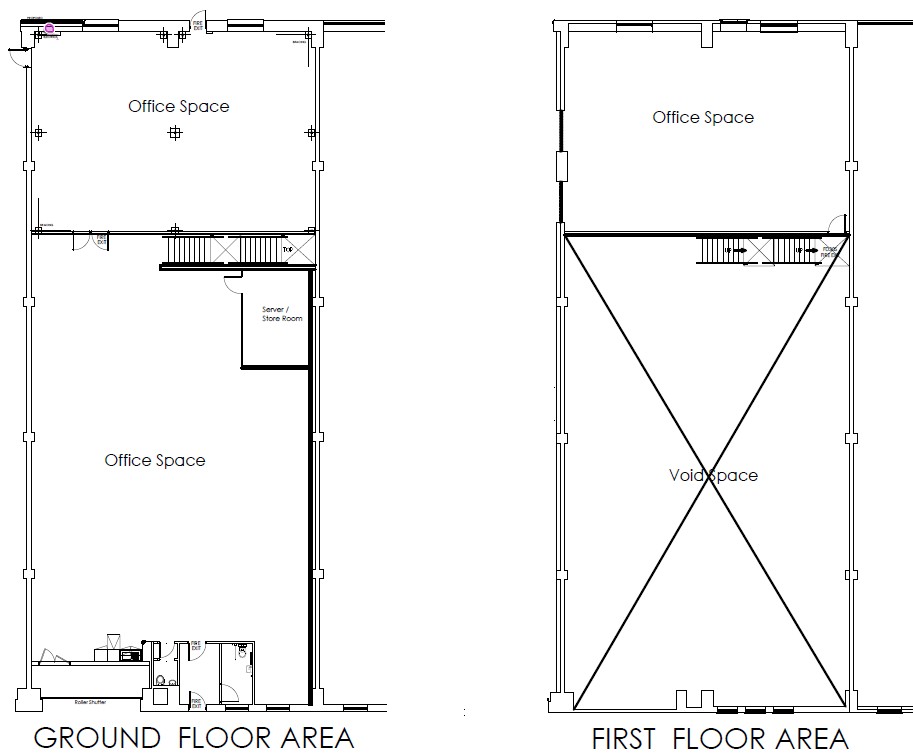
Accommodation

The accommodation comprises the following areas:

NameSizeTenureAvailability
Ground - Office/Trade-Counter 5,000 sq ft To Let Available
1st - Office 1,400 sq ft To Let Available
Unit 2 - Internal.jpg

Location

Superb front road visibility on Northern Road within close proximity to the A1, A46 and A17. Newark is 20 miles from both Nottingham and Lincoln by road and within 1 hour 20 minutes by rail to London Kings Cross Station.

Get directions from Google Maps

Further Information

Rent £12.50 per sq ft

Rates Payable To be confirmed.

Service Charge Full details on request.

Estate Charge n/a

EPC Rating This property has been graded as B (32)


Description

Covering 6,400sq ft (5,000sq ft ground, 1,400sq ft first floor) this 2 storey modern hybrid office is available to lease. Situated on Northern Road with a prime roadside location on Newark's main industrial estate this office comes with many benefits such as:

- Ample on-site parking with 16 spaces
- Self contained with private kitchens and toilet facilities (accessible)
- Air conditioning throughout
- Showroom/Office/Mixed use
- Opportunity to configure layout as required
- Vacant and ready for immediate occupation
- Easy access to Newark Northgate Train Station

Terms

TO LET on a new FRI lease with terms negotiable. We are quoting £12.5/sqft Per Annum.