Freehold Investment/Development Opportunity

Commercial Building

Freehold For Sale

 

Summary

  • Freehold office investment
  • Highly prominent office building
  • The area has been completely regenerated providing 308 newly built flats, restaurants, leisure and offices
  • 15,254 sqft
  • Total Income £278,111 pax
  • Opportunity to develop the building up to a height of 12 storeys
  • All leases are outside the security of the Landlord and Tenant Act 1954
  • Ideal for conversion, subject to planning

Location

The property is on the northeast side of Fonthill Road, near Wells Terrace and Seven Sisters Road. The area has seen major regeneration, including 308 new apartments and 120,000 sq ft of restaurants, leisure, and offices delivered by Telford Homes and The Business Design Centre, the largest £130m scheme in Islington. Finsbury Park Station (Victoria, Piccadilly, and National Rail) is just a few minutes’ walk away.

Get directions from Google Maps

Further Information

Rates Payable Upon Enquiry


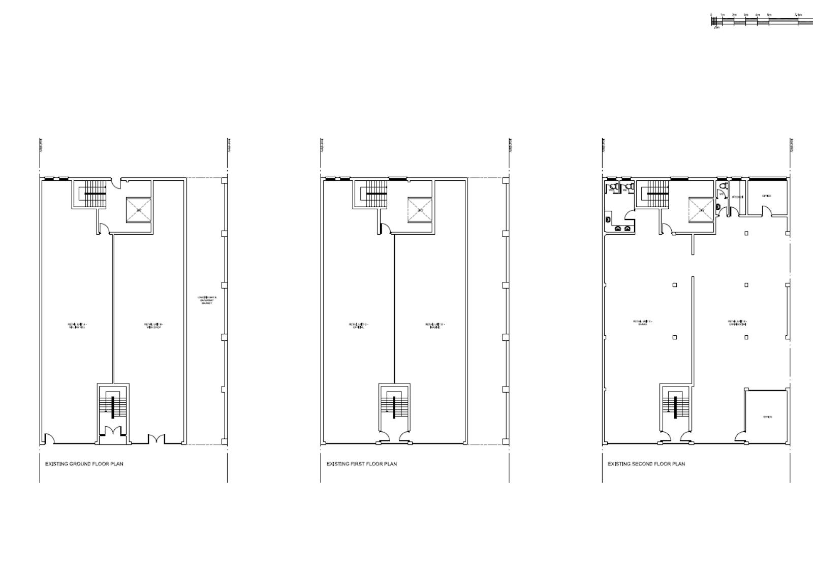
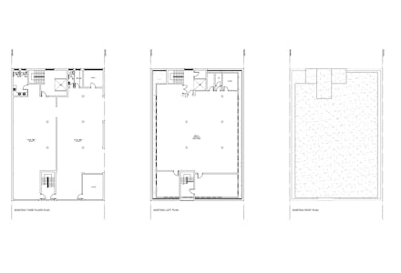
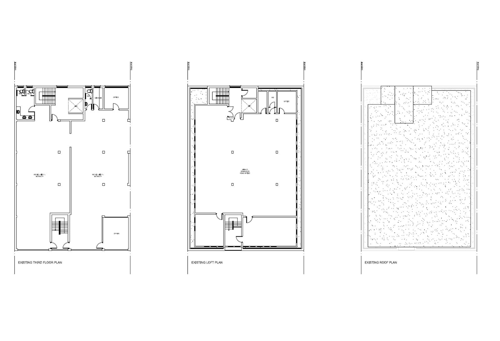
Description

A modern self-contained commercial building arranged on ground and three upper floors. The building is served by a new passenger lift and has parking for up to 3 cars. The property would ideally suit a development subject to the receipt of planning. The property is currently LET and producing as per the schedule below. The Local Authority has included this building within its Masterplan for major development.

Development Consideration

The tall building Study suggests this site offers an opportunity for the development of a local landmark building of up to a height of 12 storeys (37m), forming part of a Finsbury Park cluster. A Pre-app meeting took place with the adjoining owners and the local authority for the redevelopment of 113-125 Fonthill Road, to provide a mixed-use development consisting of 3 buildings with heights of 14 storeys, 10 storeys and 6/7 storeys to comprise retail, office and residential. REF: P2024/2537/MJR. Further details available upon request.

Identification

In accordance with Anti-Money Laundering Regulations, two forms of identification will be required from the successful tenant.

Viewings

Strictly by appointment through owner’s SOLE agents as above.

Tenancy Schedule

Unit Summary (All Proportional FR&I; Leases Outside the 1954 Act)
GF Unit 1 (1,274 sq ft): 10-year lease from 03/07/2019; tenant break 17/09/2026; £30,000 pax
GF Unit 2 (1,346 sq ft): 10-year lease from 24/06/2021; RR 24/06/2026; break 24/06/2027; £45,000 pax
1F Unit 3 (1,343 sq ft): 15-year lease from 16/05/2024; 5-yearly RRs; break 16/05/2029; £28,000 pax
1F Unit 4 (1,343 sq ft): Vacant
2F Unit 5 (3,711 sq ft): 10-year lease from 25/06/2019; break 17/09/2026; £60,000 pax
3F Unit 6 (3,711 sq ft): 10-year lease from 17/09/2020; break 03/03/2026; £65,111 pax
4F Unit 7 (2,527 sq ft): 10-year lease from 31/03/2021; tenant vacating 31/03/2026; £50,000 pax
Total Income: £278,111 pax

Planning

Planning permission was granted in June 2008 for an infill side extension at first floor level above existing ground floor walkway. Application Number PO80667

Freehold Price

The building is being sold Freehold under Title Number NGL430079 - Price Upon Application