Summary

Property Type Development / Industrial / Industrial/Logistics / Land
Tenure To Let / For Sale
Size 114,097 sq ft
Rates Payable Upon Enquiry
EPC Rating This property has been set as EPC exempt.
Reason: No building present
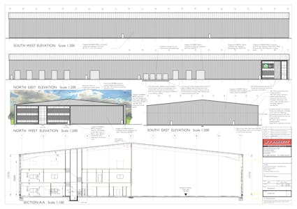
  • GIA 114,097 Sqft
  • Site area 6.8 acres
  • Planning ref SMD/2017/0722
  • 11.75m eaves
  • 64 parking spaces
  • Use Class B2 (General Industrial)

About

Detailed consent granted and activated for 10,600 Sqm of warehouse unit on 6.8 acres.
Planning ref SMD/2017/0722

Property highlights
- 4 dock levellers
- 2 roller shutters
- Eaves height 11.75m
- GIA 10,600 Sqm (114,097 Sqft)
- Offices of 878.86 Sqm (9,460 Sqft)
- 64 parking spaces
- Balancing pond
- Secure perimeter fencing
- Use class B2 (General Industrial)
- Planning activated

Location

Blythe Business Park is conveniently located near to Blythe Bridge with excellent road links to the major routes:
- A50, 2.1 miles
- A500, 8 miles
- M6 J15, 10 miles

Blythe Bridge train station is approximately 2.8 miles and is on the Crewe to Derby line stopping at Stoke-on-Trent.

Get directions from Google Maps

Commercial Development Land, Blythe Business Park - A082P10 Approved Internal Road Alignment.jpg