Summary

Property Type Office
Tenure To Let
Size 5,000 to 6,200 sq ft
Rent Rent on application
Rates Payable to be re assessed
Service Charge £5,000 per annum
Estate Charge n/a
EPC Rating This property has been set as EPC exempt.
Reason: Currently being constructed or undergoing major refurbishment
  • Floor to ceiling height 5m
  • CAT A office Space
  • LED Lighting
  • DDA Lift to first floor
  • Air Conditioning
  • Kitchen Breakout
  • Self-contained, Own Front door off Parade.

About

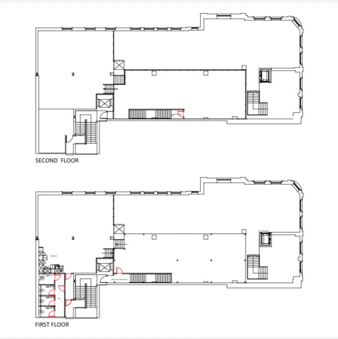
The property comprises first floor office accommodation which is accessed via its own designated shop frontage on the Parade.

The property is currently in a shell format but plans are in place to transform it into sought after loft-style office accommodation with the added benefit of an optional, additional 1,200 Sq Ft mezzanine deck.

Full spec of works available by request of the agents.

96 Parade, Leamington Spa, Office To Let - Internal 5.jpg

Accommodation

Namesq ftsq mAvailability
1st 5,000 464.52 Available
2nd - Mezzanine 1,200 111.48 Available
Total6,200576

Location

Located in the centre of the thriving Warwickshire town of Royal Leamington Spa

The property is situated on the Parade right in the heart of Leamington Spa Town Centre. The Parade is known to be the Town’s primary retailing pitch. The property is accessed directly off the parade and sits above both no.96 & 94 (Ground floor occupied by Salino lounge).

Royal Leamington Spa is an attractive and affluent Spa town located in the heart of Warwickshire. It is popular amongst gaming companies and other employers who can benefit from the town's links to Warwick University and their graduates .

The town is only 5 miles from Junction 13 & 14 of the M40 Motorway and is situated approximately 2 miles east of Warwick, 8 miles South of Coventry and 18 miles southeast of Birmingham.

Furthermore, the building is only a ten-minute walk from Leamington Spa Station, providing access to London Marylebone (1hr 15 mins), Birmingham

Get directions from Google Maps

96 Parade - Internal 6.jpg

Further Information

  • Viewings

    Strictly by prior arrangements with the sole letting agent:
    Wareing & Company
    Jon Blood
    01926 430700/07736809963
    jon@wareing.co

  • Terms

    The property is available on a new effective full repairing and insuring term to be negotiated

  • Rent

    Available Upon Request.