Two-Storey Commercial Building Inclusive of 6 Parking Spaces.

 

Summary

  • Former Medical Centre
  • Six on-site parking spaces
  • Class E Use - Suitable for a Variety of Uses
  • Prominent Location
  • External Garden
  • May consider a sale of virtual freehold (999 Years)

Location

The property is located on the northern side of Hanley Road, which connects directly with Hornsey Road and Crouch Hill / Stroud Green Road. Crouch Hill Station (London Overground) is within a short walk, providing convenient access across London.

The property is also within easy reach of Finsbury Park, Crouch End and Holloway Road / Archway, with Archway Underground Station close by. The area is a popular and well-established location, with a wide selection of cafés, bars and restaurants situated along Crouch Hill and Stroud Green Road, all within walking distance.

The property is further well positioned for Highgate and Islington, with good road access to the North Circular Road, the M1 via Brent Cross, and Central London.

Get directions from Google Maps

Further Information

Rent £140,000 per annum

Rates Payable £28,800 per annum This is an estimate provided from the VOA for April 2026 - April 2027.

Service Charge n/a

Estate Charge n/a

EPC Rating This property has been graded as C (57)


Description

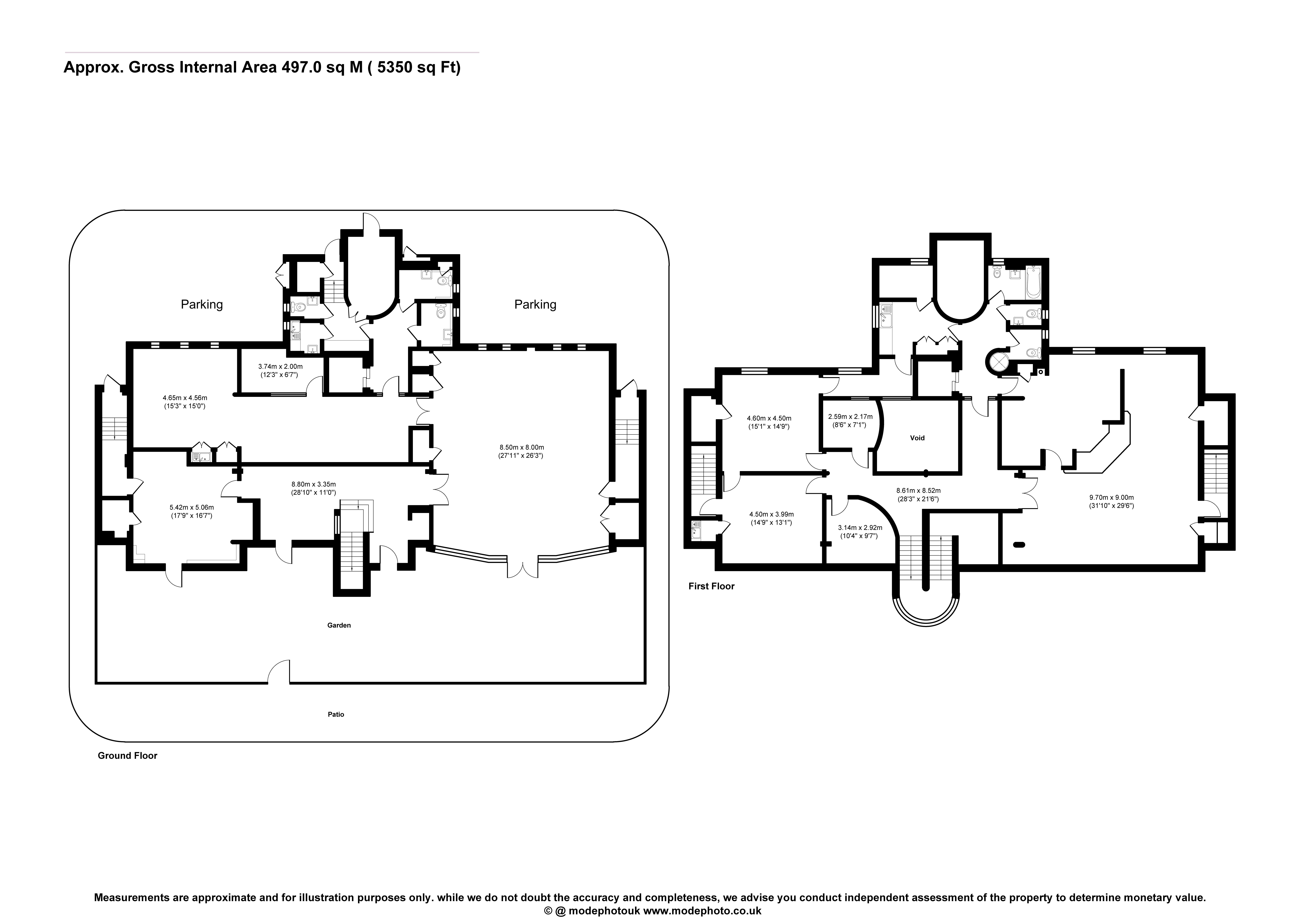
The property comprises a detached, modern building, understood to have been purpose-built as an NHS medical centre, arranged over ground and first floors.

The accommodation is well configured, offering adaptable space across both levels that could be split if required. The main entrance is from Hanley Road, providing a clear and prominent point of access. Externally, the property benefits from secure, gated outside space, with rear parking bays providing parking for up to six vehicles.

Internally, the ground floor features an impressive double-volume entrance hall, six classrooms / treatment rooms / offices, together with a kitchen, WCs and ancillary storage. The first floor provides four further classrooms / treatment rooms / offices, a large landing with a feature window, two WCs, a shower room and a kitchen.

The landlord may also consider a sale of the virtual freehold (999 years).