Ground floor shop with two bedroom self contained flat above and a rear yard.

 

Summary

  • Large ground floor retail unit
  • High pedestrian footfall
  • Freehold opportunity
  • Offers from £350,000

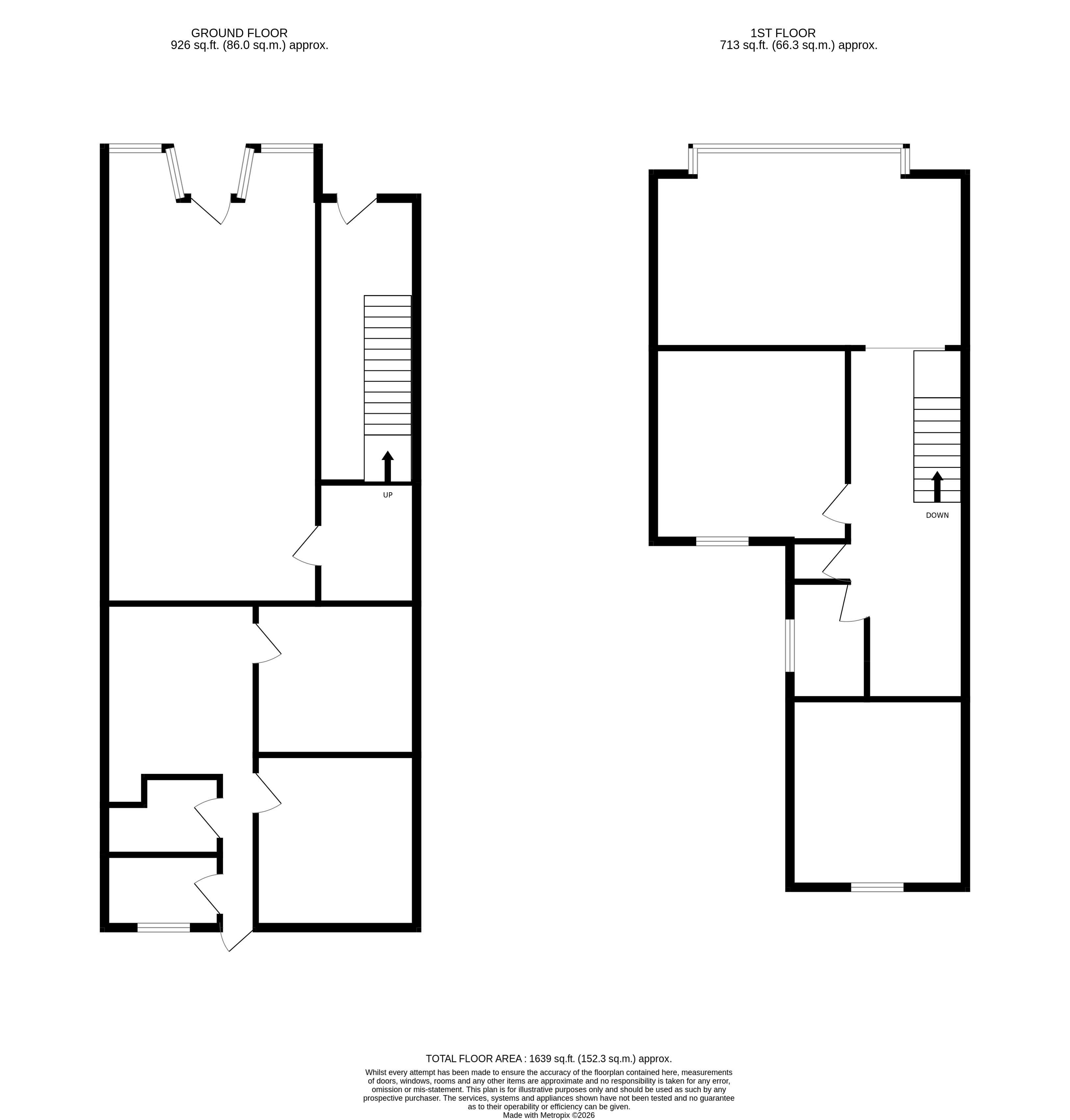
Accommodation

The accommodation comprises the following areas:

Floor/UnitBuilding Typesq ftsq m
Ground Retail 926 86.03
1st Residential Flat 713 66.24
Total1,639152.27
721 London Road - WhatsApp Image 2026-03-06 at 09.33.42.jpeg

Location

This property is located on a busy retail thoroughfare in Westcliff-On-Sea, benefiting from strong passing traffic and a mix of nearby local and national occupiers. Westcliff train station is within close proximity, providing direct services to London Fenchurch Street, while the A13 London Road offers convenient access to Southend-On-Sea and the wider Essex road network.

Get directions from Google Maps

Further Information

Price Offers from £350,000

Rates Payable £3,792.40 per annum - Interested parties are advised to confirm the rating liability with the relevant local authority


Description

A ground floor retail unit with a self contained two bedroom flat above and a rear yard. The retail unit benefits from a glass frontage, WC facilities and extra rooms suitable for storage.

Viewings

Strictly by prior appointment via the landlords appointed agents Ayers & Cruiks.

Price

Offers from £350,000