Summary

Property Type Office
Tenure To Let
Size 9,364 to 110,883 sq ft
Rent £32.50 - £47.50 per sq ft
Rates Payable From £10.50 - £21.50 per sq ft
Service Charge £10 per sq ft
EPC Rating This property has been graded as D
  • 4 Pipe Fan Coil Air Conditioning
  • Fully Accessible Recessed Floors
  • Suspended Ceiling with new LED Lighting
  • Double Height Reception
  • Cycle Storage & Shower Facilities
  • Opportunity for Self Contained Entrance Ground Floor Access
  • Managed Reception
  • New Tenant Lounge
  • 5 Car Parking Spaces

About

The property comprises a purpose built office building arranged over eight floors plus basement which provides office accommodation throughout. The property benefirs from a double height reception, new tenant break out space and private terraces on floors.

66 Prescot Street, London, Office To Let - 3 66 Prescot St open plan.jpg

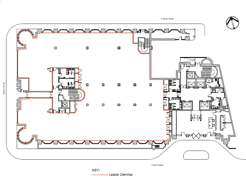
Accommodation

Namesq ftsq mAvailability
7th 9,364 869.94 Available
6th 11,851 1,100.99 Available
5th 13,745 1,276.95 Available
4th 12,788 1,188.04 Available
3rd 13,853 1,286.99 Available
2nd 13,088 1,215.91 Available
1st 12,486 1,159.99 Available
Ground 11,366 1,055.94 Available
Lower Ground 12,292 1,141.96 Available
Total110,83310,296.71

Location

The building is on the corner of Prescot Street and St Mark Street. The street has undergone a transformation in the last 5 years with a
range of new hotels, high class residential and office developments. The building benefits from good transport links with Aldgate and
Aldgate East Underground Stations circa 300m to the north and Tower Hill 300m to the south west.

Get directions from Google Maps