Freehold Industrial Unit on a Popular Estate for Sale with Vacant Possession

 

Summary

  • On Site Allocated Parking
  • Freehold
  • HVAC System
  • 3 Phase Supply
  • Walking Distance to Alperton Station (Piccadilly Line)
  • Vacant Possession
  • Located Close to The North Circular Road (A406)

Location

500 Sunleigh Road is well located within the Sunleigh Industrial Estate in Wembley/Alperton, offering excellent transport links to London and the wider area. Alperton Underground Station (Piccadilly Line) is just a short walk away, and Hanger Lane (Central Line) is also within easy reach. The area is well connected by local bus routes and provides quick access to the A406 North Circular, A40, and M1, making it a convenient location for businesses needing strong road and public transport connections.

Get directions from Google Maps

Further Information

Price Offers in the region of £1,950,000

Rates Payable Buyers to make their own enquiries with the London Borough of Brent

Service Charge n/a

Estate Charge n/a

EPC Rating This property has been set as EPC exempt.
Reason: EPC has been commissioned, will be available in less than 28 days


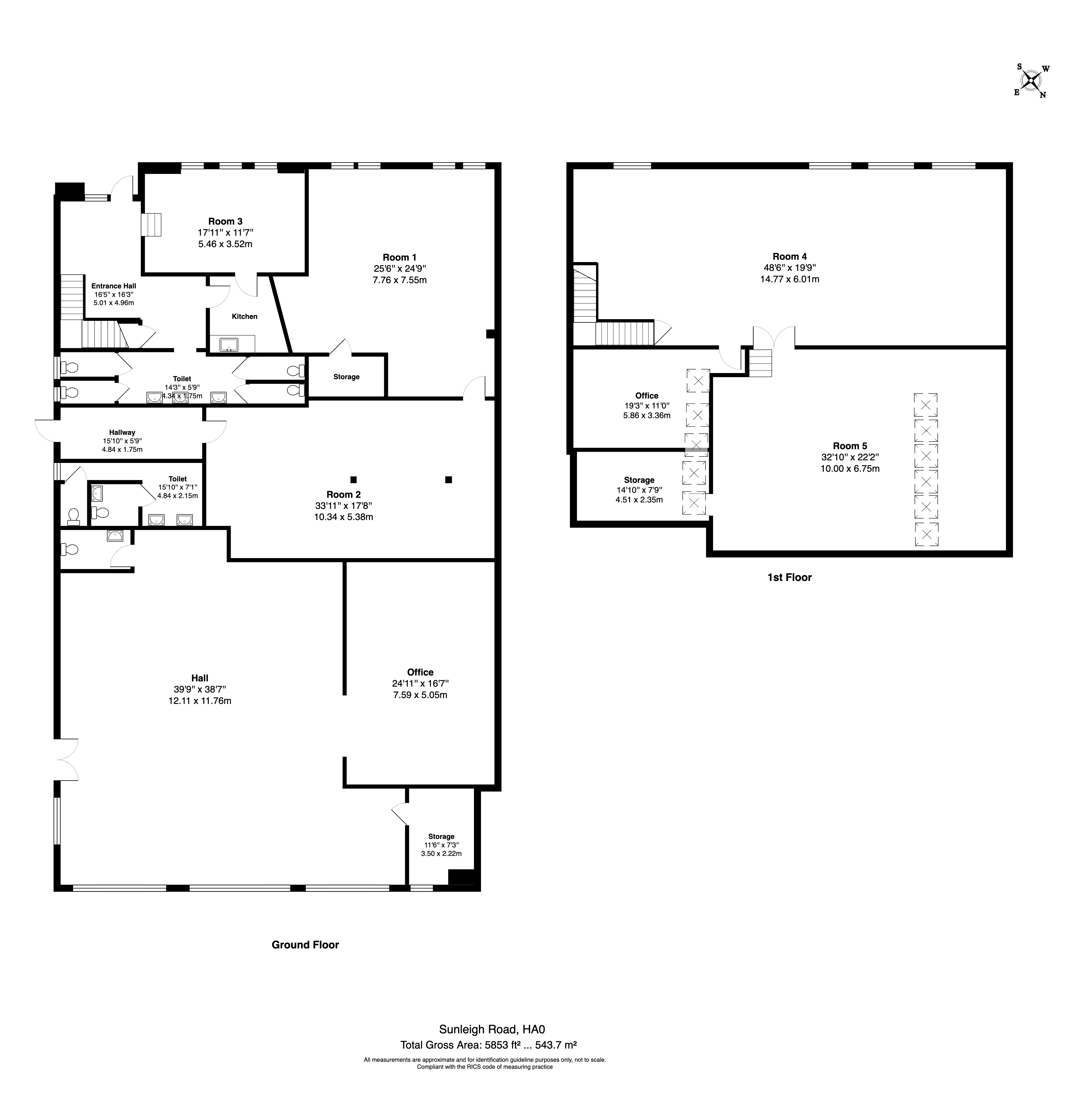
Description

A semi-detached warehouse/industrial building located on a popular estate and set directly next to The Grand Union Canal.

The property is currently arranged as two sections via lightweight partitioning, with the front area used for office/religious purposes and the rear retained as warehouse/industrial space. The partitions can be easily removed, allowing the property to be reinstated as a predominantly open warehouse/industrial unit.

Benefits include: concrete floor, HVAC system, 3 phase power, kitchen and WC's.

The first floor consists of mostly open space and two partitioned offices that benefit from air conditioning, double glazed windows and carpeted flooring.

The property is being sold freehold with vacant possession. Of interest to both investors and owner occupiers.