To Let - £55.00 psf
Office Headquarters in the Heart of Soho
Individual Floors Available

 

Summary

  • Self-contained headquarters
  • Set over 3 floors
  • Recently refurbished
  • Fitted meeting room
  • Double person phone booth
  • Comfort cooling system (not tested)
  • Exposed brickwork on each floor
  • High-quality kitchen/tea point on each floor
  • 2 WCs in total
  • Fibre line installed (contract transferable)

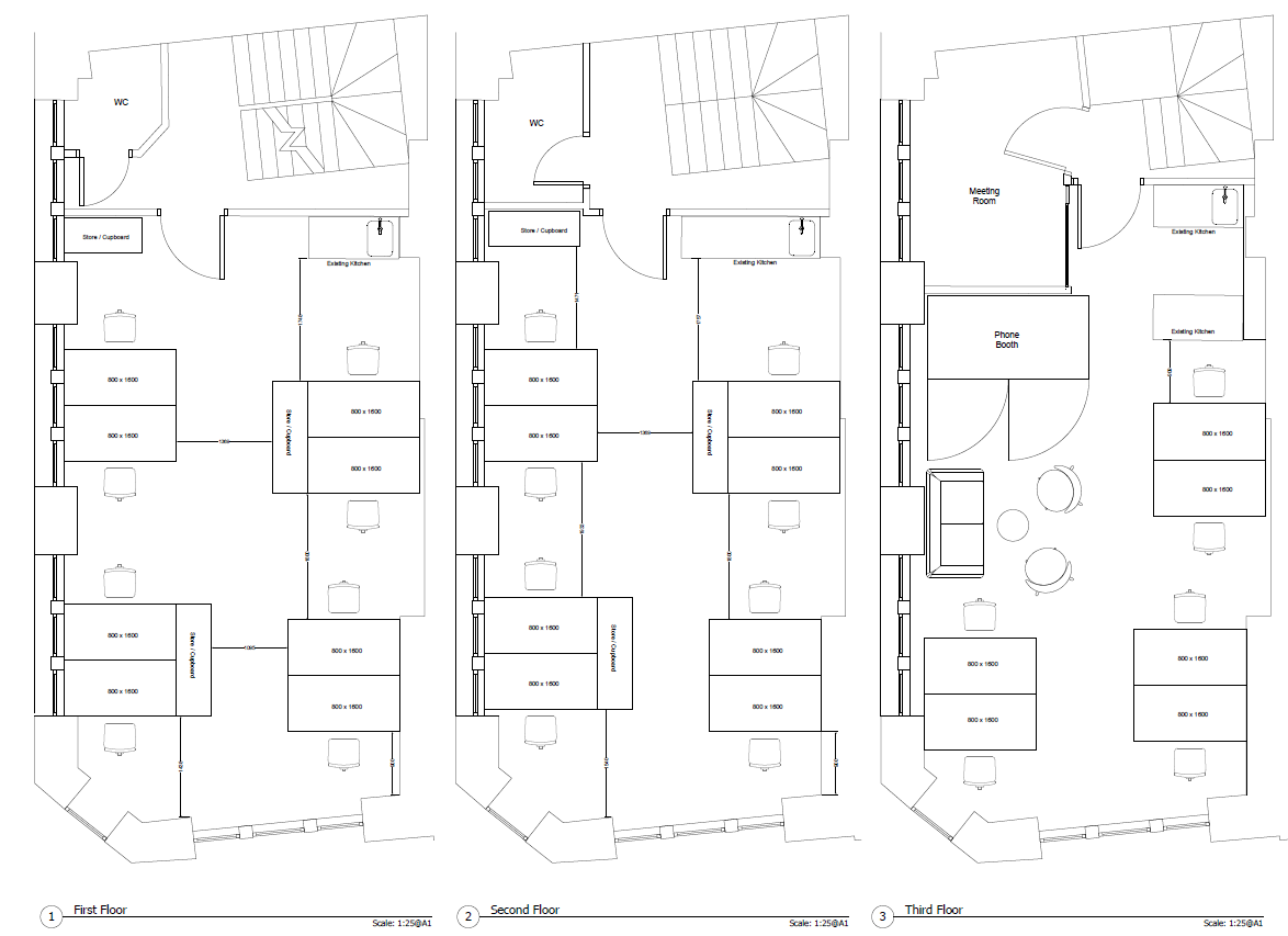
Accommodation

The accommodation comprises the following areas:

Namesq ftsq mAvailability
1st 456 42.36 Available
2nd 454 42.18 Available
3rd 458 42.55 Available
Total1,368127.09
46 Dean Street - Image (3).jpg

Further Information

Rent £75,240 per annum

Rates Payable £25,272 per annum Estimated figure for the whole building. All interested parties are advised to make their own enquiries.

Service Charge £14 per sq ft

EPC Rating This property has been graded as B (27)


Description

First Floor

The first floor is presented in good condition and is fitted with a kitchenette, timber laminate flooring, spot lighting, perimeter power and data points, and wall-mounted radiators.
A communal WC is located on the first-floor landing and is shared with the other office floors within the building.

Second Floor

The second floor is well configured and benefits from a contemporary fit-out including a Crittall-style meeting room, 10 electronic sit-stand desks, and a kitchenette with breakfast bar.
The space also provides spot lighting, perimeter power and data points. A communal WC is located on the second-floor landing and is shared with the other office floors within the building.

Third Floor

The third floor provides a characterful workspace featuring impressive pitched exposed timber beams and exposed brickwork throughout. The accommodation includes a separate meeting room, a four-person call booth, and 8 electronic sit-stand desks.
Additional features include a kitchenette with breakfast bar, spot lighting, soft mood lighting, perimeter power and data points, and air conditioning (not tested).

Connectivity

A fibre line is already installed within the building, and the existing contract can be assigned to an incoming occupier if required.