Ground Floor Retail/Leisure Space TO LET

 

Summary

  • Prime Leisure Location
  • Large Ground Floor Comprising Of Two Units
  • Benefits from A5 (Hot Food Takeaway) In Part
  • Train Station within a 2-minutes Walk
  • In The Heart Of The Town's Night Circuit
  • ///talent.views.likely

Accommodation

The accommodation comprises the following areas:

Namesq ftsq mAvailability
Ground - Ground Floor Retail/Leisure 6,500 603.87 Available
Ground - Retail Takeaway 750 69.68 Available
Total7,250673.55
45-49 Albert Road - IMG_5629.JPG

Location

45-49 Albert Road is located in the heart of Middlesbrough's Towns bustling business and Leisure district, just off the A66. it is surrounded by popular retailers and shopping hubs including the Cleveland Shopping Centre, Hillstreet Shopping Centre, and Captain Cook Square. The high footfall and proximity to the town hall, bus station, hotels, restaurants and takeaways make this an ideal location for business. The main train station is located within a 2-minute walk of the property.

The premises can be accessed from Albert Road, which in turn provides access to the A66 East and West. The A19 North/ South bound can be picked up from the A66 West offering wider linkages to Newcastle, York and Leeds and the A66 West across to Darlington as well as access to the A1(M).

Get directions from Google Maps

Further Information

Rent Rent on application

Rates Payable Upon Enquiry

Service Charge n/a

Estate Charge n/a

EPC Rating This property has been graded as C


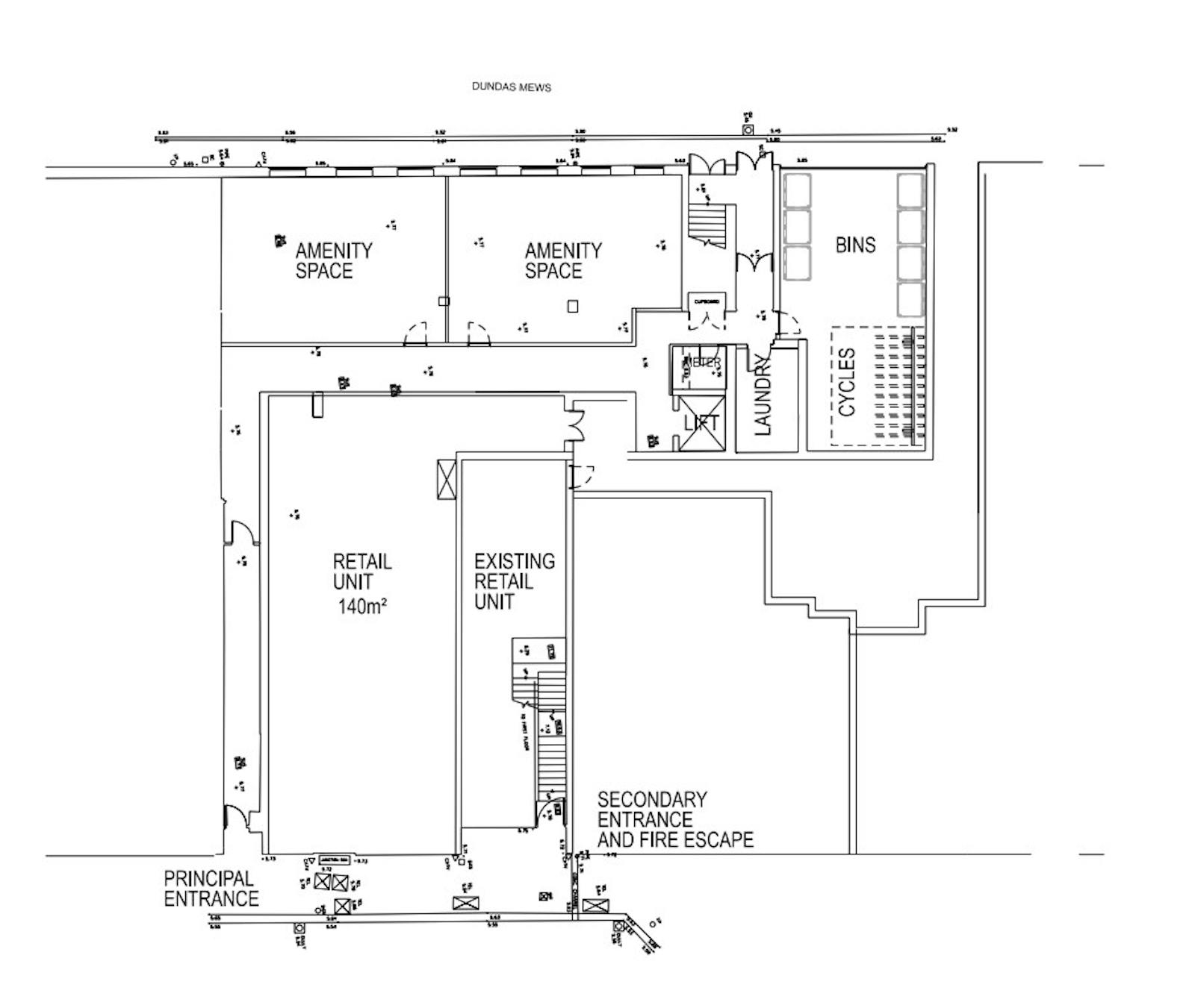
Description

Located on the busy Albert Road, this retail/Leisure unit offers a great opportunity for businesses in the heart of Middlesbrough within 100m pf the striking famous Middlesbrough Town Hall. The unit provides two large display windows to the front with plenty of passing foot traffic passing all day. Internally the unit can offer a combination of either large open plan floor space or spacious smaller rooms with ancillary and staff restrooms located to the rear of the building.

The smaller half of the unit (right front) was recently trading as a hot food takeaway premises (A5 Hot food takeaway consent) This additional space provides opportunities to keep sub division for a range of uses such as cafes, take aways and other retail businesses to grow within a prime location. The property is secured currently with electric roller shutter doors to the front and there is rear access for delivery and emergency exit on to Dundas Mews.

Viewings

All viewings via the agents listed

Terms

Full FRI lease will be offered

Legal Costs

Each Party to pay their own costs in any transaction

Three Word Location

///talent.views.likely