Town centre office space with potential for alternative commercial uses.

 

Summary

  • Prominent town centre building
  • Partitioned rooms but potential to create open plan space
  • Nearby car parks
  • Potential for variety of uses
  • Available on flexible terms
  • Rent by negotiation

Accommodation

The accommodation comprises the following areas:

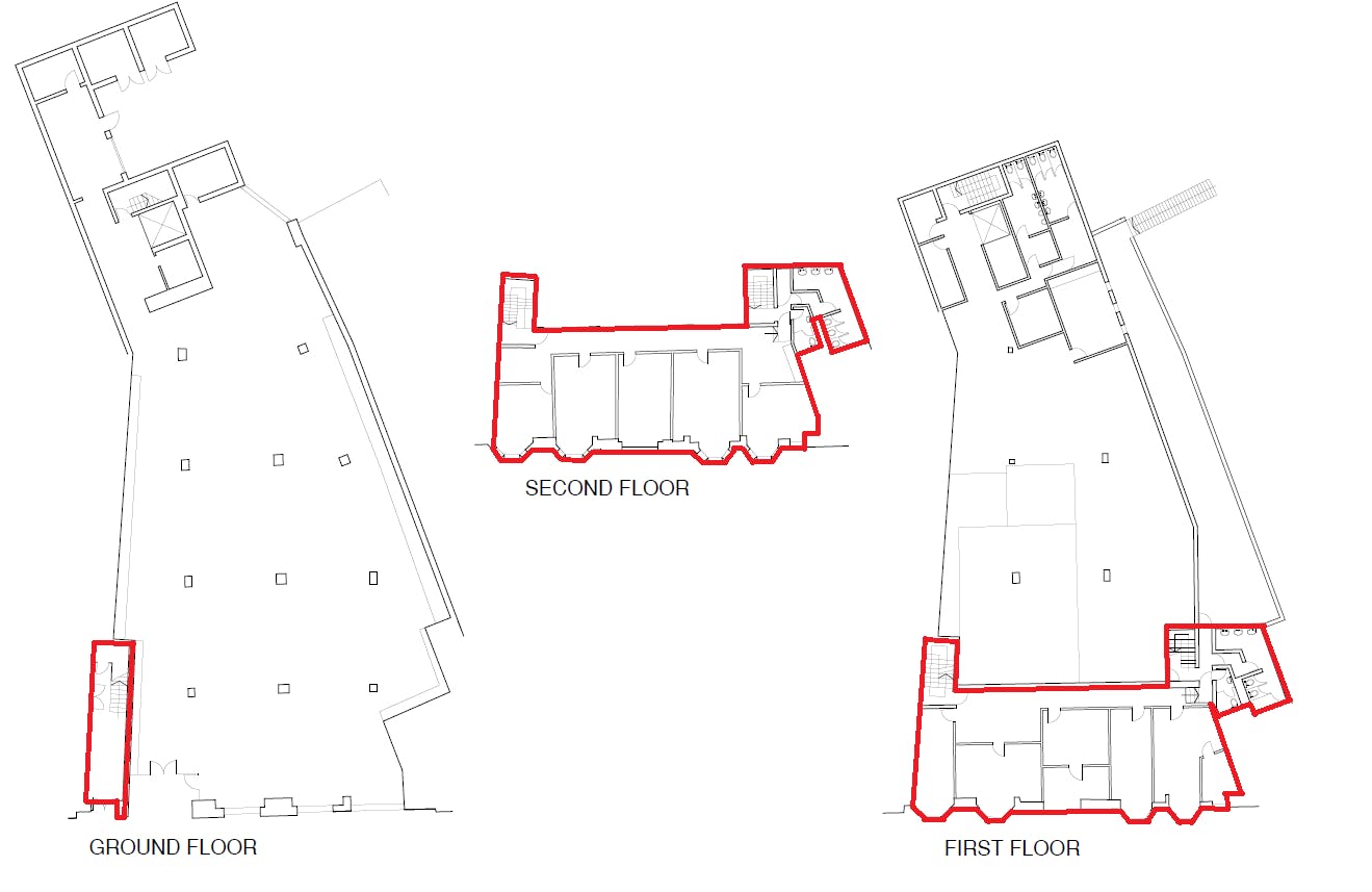
Namesq ftsq mAvailability
1st - Office 1,656 153.85 Available
2nd - Office 1,615 150.04 Available
Total3,271303.89
44 -45 Market Place - Floor Plan.png

Location

Chippenham is a busy and expanding town with a population of approximately 40,000 people. It is located approximately 4 miles south of Junction 17 of the M4 Motorway and benefits from a main line railway station with a regular direct service to London Paddington in just over 1 hour.

The property is located in the Market Place with the Iceland supermarket on the ground floor. Other nearby businesses include Nationwide; Cashbrokers, Coffee No.1 and a number professional businesses such as solicitors, accountants and estate agents located in the Market Place and St Mary Street.

There is short term free on street parking nearby in St Mary Street and in the Market Place, with longer term pay & display parking available a short distance away at the Emery Gate Shopping Centre

Get directions from Google Maps

Further Information


Description

The available property comprises the first and second floor of a significant Listed Building occupying a prominent position in Chippenham Market Place.

Iceland supermarket occupies the ground floor. A separate ground floor entrance lobby provides access to stairs to the upper parts.
Both the first and second floors provide extensive space. At present there are a number of good size partitioned rooms, but the partitioning could be removed to provide a large open plan area on each floor. Each floor has male and female toilet facilities with a large kitchen provided on the first floor.
The space has carpet floor covering, suspended ceiling with integral lighting, and electric heating.

Terms

The space is offered to let as a whole or as individual floors..

The tenant will be responsible for the internal repair and decoration of their demised area, together with a service charge contribution toward the repair and maintenance of internal common parts and the exterior of the building.

Rent

To be negotiated depending on the use, lease terms and the amount of space taken.

The rent is subject to VAT at the standard rate.

Uses

The floors were previously occupied as offices, but also have potential for other uses such as
• Educational space
• Studio use
• Community facility.

Utilities

The property has electric lighting and heating. There are male & female toilets on each floor.

No tests have been undertaken on the services, so prospective tenants should satisfy themselves that they meet their occupational requirements and comply with current regulations.

Business Rates

The Business Rates will be re-assessed once the extent of occupation and the nature of use are known.

Energy Performance Certificate

The property has been assessed for energy efficiency and has been given a rating of 111 within Band E.
A copy of the EPC and Recommendation Report is available from the agents on request.

Legal Costs

Each party will be responsible for their own legal costs incurred in any transaction.