Attractive three storey retail premises FOR SALE with vacant possession

 

Summary

  • Freehold for sale via Private Treaty with vacant possession
  • Attractive end of terrace three storey retail premises
  • Prominent High Street position within Lincoln city centre
  • Ground floor retail unit with return frontage
  • Upper floors providing ancillary retail accommodation
  • Suitable for owner occupiers, investors and developers
  • Potential for residential conversion of upper parts (STP)
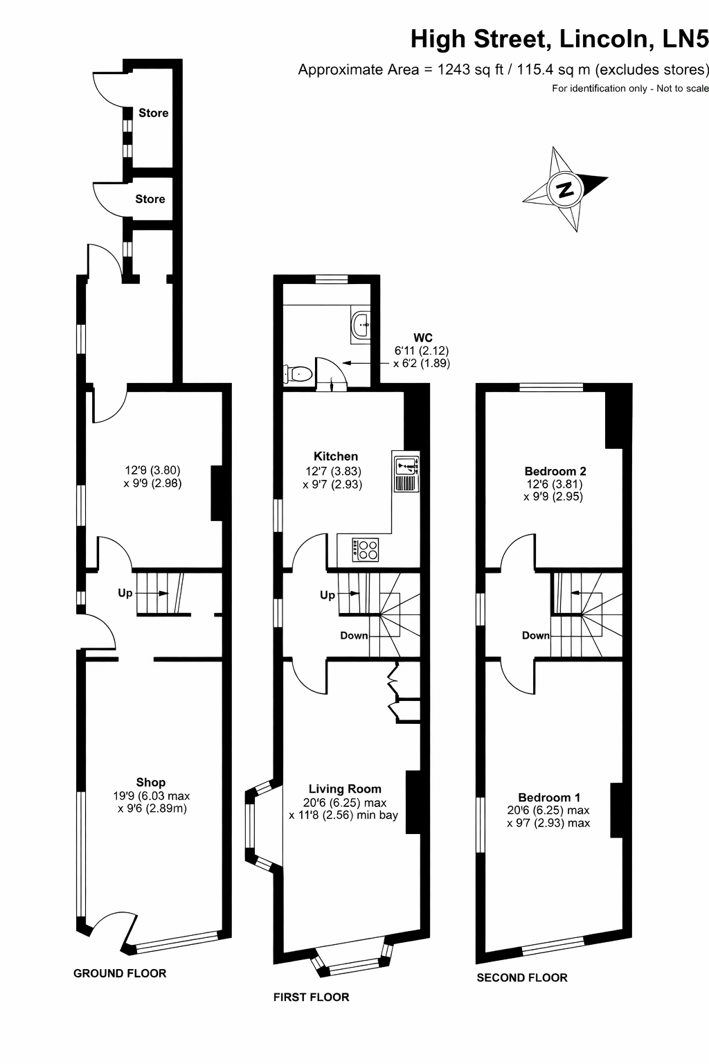
  • Total floor area of approx. 1,243 sq ft (115.4 sq m)

Accommodation

The accommodation comprises the following areas:

NameSize
Ground - Retail 406.63 sq ft
1st - Retail 356 sq ft
2nd - Retail 317 sq ft
405 High Street - IMG_8997.jpeg

Location

The property comprises an attractive end of terrace retail premises, most recently occupied as a beauty clinic, offering well-presented accommodation arranged over ground and upper floors. The ground floor provides a retail entrance with return frontage, while the upper parts comprise a range of ancillary rooms suitable for a variety of uses.

The building presents an excellent opportunity for owner occupiers seeking a prominent trading position, as well as investors and developers looking to add value. There is clear potential to reconfigure or convert the upper floors to residential accommodation, subject to the necessary planning consents, with the benefit of separate access.

Overall, the property is in good condition and includes a useful outbuilding currently utilised for storage, together with a small rear yard.

Get directions from Google Maps

Further Information

Price £175,000

Rates Payable £2.05 per sq ft // 100% small business rates applicable for qualifying occupiers.

Service Charge n/a

Estate Charge n/a

EPC Rating This property has been graded as D (86)


Description

The property occupies a prominent and highly visible position fronting the main High Street with a wide mix of national and independent occupiers nearby. Lincoln is a well-established cathedral city and administrative centre serving a substantial catchment population, attracting significant visitor numbers throughout the year.

Viewings

All viewings are via the sole agents WOOD MOORE & CO.

Terms

Freehold for sale via private treaty with vacant possession. The asking price is £175,000 (one hundred and seventy five thousand pounds).

Energy Performance Certificate

The property has an EPC rating of D (86).

Rateable Value

£5,100 under Local Authority Reference: 41724051; 100% small business rates relief is available for qualifying tenants.
The charging authority is Lincoln City.

VAT

We understand that the VAT will not be charged on the sale price.