| Property Type | Office | 
| Tenure | To Let | 
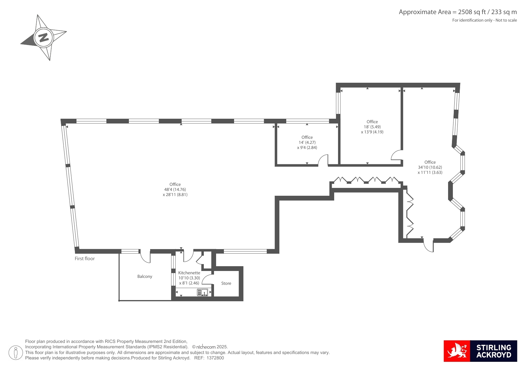
| Size | 2,508 sq ft | 
| Rent | £52.50 per sq ft | 
| Rates Payable | £22.67 per sq ft | 
| Service Charge | £6 per sq ft | 
| EPC Rating | This property has been graded as B (50) | 
First Floor Office located in the heart of Holborn.
Offering a fully fitted office benefiting from a private terrace on the floor, the space provides an impressive and functional working environment. The unit makes a dynamic workspace thanks to its two meeting rooms in situ, making it a great offering for a broad span of occupiers, from corporates to creatives. The open-plan layout allows for flexible desk arrangements and collaborative working, while large windows bring in excellent natural light throughout.
The office has recently been redecorated and fitted, ready for a new tenant to take a quick occupation. Other Offered benefits include comfort cooling throughout, LED lighting, DDA-compliant lift with step free office access, generous storage, and a dedicated kitchen within the demise. The building’s central position ensures easy access to nearby transport links, cafés, and restaurants, creating a convenient and attractive base for any business.
 
                                                            | Name | sq ft | sq m | Availability | 
| 1st | 2,508 | 233 | Available | 
| Total | 2,508 | 233 | 
30–31 High Holborn is located in the centre of Holborn, one of London’s most established and well-connected commercial districts. The property is a short walk from both Chancery Lane Underground Station (Central Line) and Holborn Station (Central and Piccadilly Lines), providing quick access to the West End, the City and wider London.
High Holborn forms part of a major east–west route connecting Covent Garden, Bloomsbury and the City of London. The area is home to a mix of legal, professional and creative occupiers, as well as a wide range of cafés, restaurants and amenities that support the local working population.
Nearby restaurants and cafés include Colonel Saab, Holborn Dining Room, Pizza Union, The Delaunay, Wasabi, Bunga Bunga, Black Sheep Coffee, Pret A Manger, Caffè Nero, and Starbucks.
