Office For Sale with Planning for Conversion to Residential

 

Summary

  • Class E office with Permitted Development Rights granted for Conversion to Residential
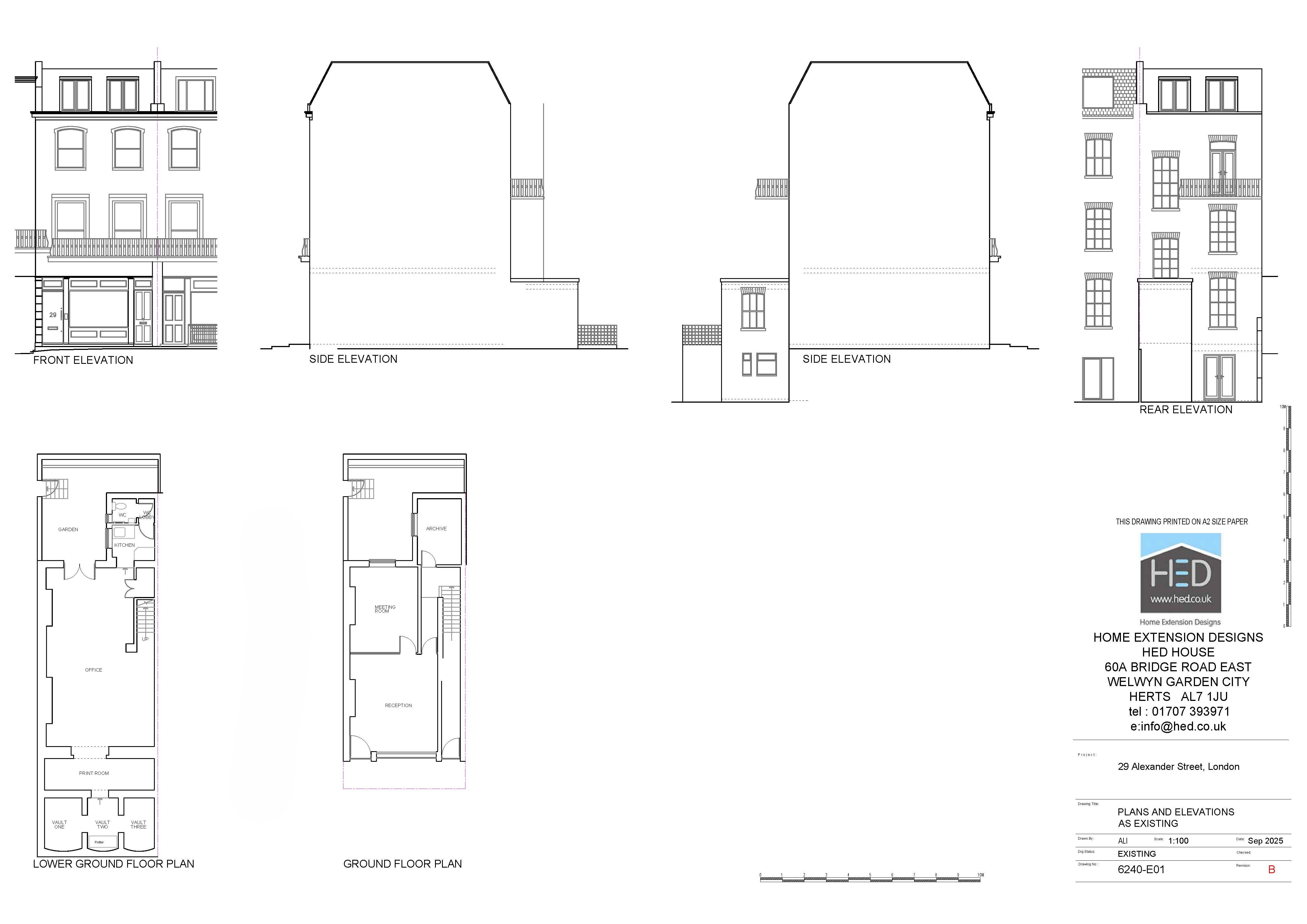
  • 1,115 sq ft over ground and lower ground floor
  • Rear courtyard
  • To be sold vacant or with short term income
  • New 999-year lease or Share of Freehold available by negotiation.
  • Not elected for VAT
  • Well suited to owner occupiers & developers

Location

29 Alexander Street is a prestigious mainly residential road located within the W2 postcode in Westbourne Park.

The street is characterised by attractive period terraces and converted townhouses.

The property benefits from proximity to the independent cafés, neighbourhood pubs and convenience retail of Westbourne Park and nearby Ledbury Road, together with the wider retail and leisure offering of Paddington, Bayswater and Queensway.

Transport connections are excellent. Westbourne Park Station is within easy walking distance, providing Circle and Hammersmith & City line services. Royal Oak Station is also nearby, while Paddington Station offers National Rail services, the Elizabeth Line, Heathrow Express and multiple Underground lines, giving rapid access to the West End, the City, Canary Wharf and Heathrow Airport. Road access to the A40 (Westway) provides convenient vehicular links to central London and the M40 corridor.

Hyde Park is situated to the south, offering extensive open space and recreational facilities.

Get directions from Google Maps

Further Information

Price Offers in the region of £1,100,000

Rates Payable £11,227.50 per annum

Service Charge n/a

Estate Charge n/a


Description

The property comprises a self-contained ground and lower ground floor office with windows to the front and rear and with direct access from Alexander Road. The property further benefits from a rear courtyard accessed from the lower ground floor, and with its own street access. There are under street vaults to the front of the property. The unit is approximately 1,115 sq. ft. (excluding Vaults 1,247 sq,ft. including the vaults).