To Let
Fully Fitted Restaurant Premises with Reco Extraction Installed

 

Summary

  • Restaurant Premises
  • Self-contained
  • Reco Cooking Extraction In Place
  • Lease granted inside landlord and tenant act
  • WCs
  • Staff Kitchen
  • 3 Vault Storage Areas

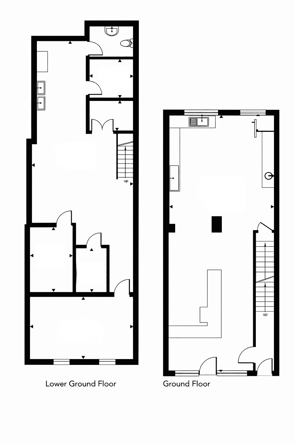
Accommodation

The accommodation comprises the following areas:

Namesq ftsq mAvailability
Lower Ground 661 61.41 Available
Ground 622 57.79 Available
Total1,283119.20
218 Portobello Road - Exterior.jpg

Location

Excellent location. Situated within on the world-famous Portobello Road, this property enjoys a prime position in the heart of Notting Hill, one of London’s most vibrant and iconic areas. The location is renowned for its bustling street market, boutique shops, cafés and restaurants, attracting both local residents and international visitors throughout the year.

The property benefits from excellent public transport links:

Ladbroke Grove Underground Station (Circle and Hammersmith & City lines) is only a short walk away.

Notting Hill Gate (Central, Circle and District lines) and Westbourne Park Station are also within easy reach, providing direct access across Central and West London.

Several bus routes serve the area, offering convenient connections to Kensington, Paddington, Shepherd’s Bush and beyond.

The property also provides easy access to the A40 (Westway), offering quick road links to Central London and the M40 corridor.

Get directions from Google Maps

Further Information

Rent £70,000 per annum

Rates Payable £19,211.50 per annum

Service Charge TBC


Description

This rare, beautifully presented and well-located Class E premises benefits from full commercial cooking extraction and occupies a prominent position along the famous Portobello Road in the heart of Notting Hill. The restaurant presents an excellent opportunity for an incoming occupier to acquire a fully operational hospitality premises in one of London’s most vibrant and sought-after neighbourhoods.

The accommodation extends to approximately 1,477 sq ft, arranged over ground floor (673 sq ft) and basement (804 sq ft) levels. The premises are currently trading as a burger and chicken takeaway, and are presented in excellent condition throughout, offering a largely turnkey opportunity for a new operator.

The property benefits from strong levels of passing footfall, driven by the area’s well-established mix of independent retailers, restaurants, cafés and market activity along Portobello Road.

Lease

New FRI lease, flexible terms.

Premium

£220,000 including fixtures and fittings. How is the premium calculated? The premium is based on the refurbishment costs carried out by the existing tenants, including a high-quality equipment & extractor system plus further potential the property and its location.

Rates

The rateable value = £38,500 BEFORE any discounts or reliefs. Interested parties must verify these figures with London Borough of Kensington & Chelsea.