Summary

Property Type Office / High Street Retail
Tenure For Sale
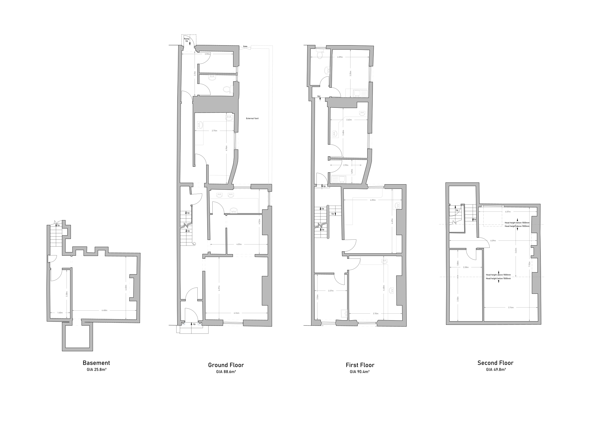
Size 2,700 sq ft
Price £350,000
Rates Payable £9,106.75 per annum
  • 2,700 Sq Ft
  • Town Centre Location
  • Flexible Layout
  • Parking to the Rear
  • Basement
  • Grade 2 Listed
  • Vacant Possesion

About

Nestled in the heart of Bury, St. Marys Place presents a unique opportunity for those seeking a commercial property in a prime town centre location. This former dental practice offers a versatile space that is suitable for a variety of uses (suitable to the necessary permissions), making it an ideal choice for entrepreneurs and businesses looking to establish themselves in a bustling area.

With its strategic position, the property benefits from high foot traffic and excellent visibility, ensuring that your business can thrive in this vibrant community. The surrounding amenities and services further enhance its appeal, providing convenience for both staff and customers alike.

Additionally, the property comes with parking facilities, a valuable asset in a town centre setting.

In summary, St. Marys Place is a promising opportunity for those looking to invest in a commercial space in Bury. With its prime location, adaptable layout, and parking availability, it is well-suited for a range of business possibilities. Do not miss the chance to explore what this property has to offer.

2 St. Marys Place - Treatment Room