Self-contained, 18 person office, with 2 meeting rooms, kitchen & lounge areas.

 

Summary

  • Self-contained 25 person office, with private meeting room, kitchen & lounge areas.
  • Self-contained 30 person office, with 2 meeting rooms, kitchen & lounge areas.

Accommodation

The accommodation comprises the following areas:

Namesq ftsq mAvailability
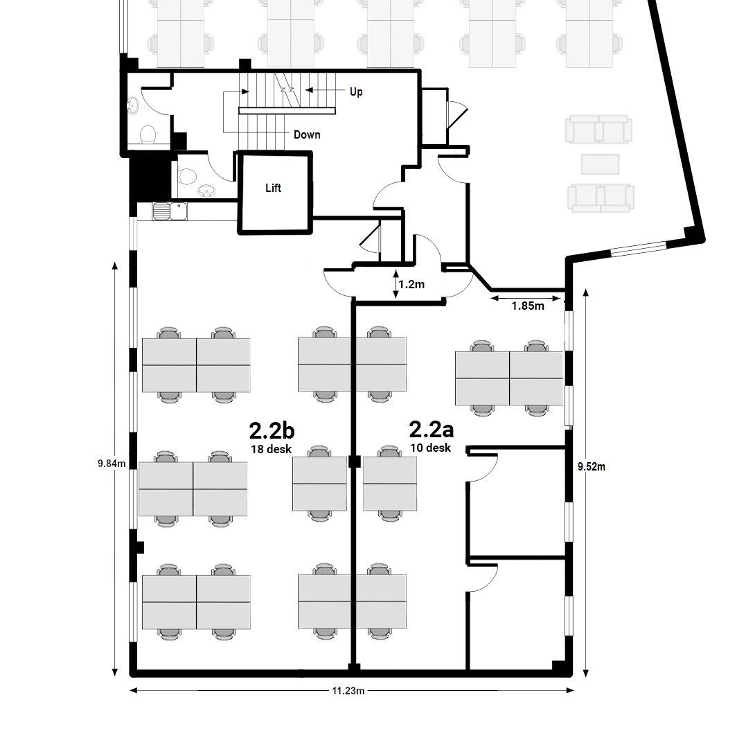
Unit - Office 2.2b 595 55.28 Available
Total59555.28
2 Bath Place - Office 2.2b - Image 25.jpg

Location

The Offices located in the heart of Shoreditch, a vibrant and bustling neighborhood with ample bars, restaurants and shops. Conveniently situated in central London, close to the Old Street Tube station as well as several bus routes. While there is a lot going on around, the office itself is a great place to sit back and relax, at lunch or after work, in one of our comfortable common areas or on our rooftop garden.

Get directions from Google Maps

Further Information

Rent £9,000 per month

Rates Payable Upon Enquiry

Service Charge n/a


Description

Offices are based in the heart of Shoreditch, near Old Street Tube, surrounded by vibrant bars, restaurants, and shops. Despite the lively area, the office provides a relaxed atmosphere with cosy common areas and a rooftop garden, perfect for breaks or unwinding after work.