Freehold restaurant and bar arranged over three floors plus basement located in Esher. Suitable for both owner occupiers and developers.

 

Summary

  • Freehold restaurant and bar arranged over three floors plus basement located in Esher on the London and Surrey border
  • Suitable for both owner occupiers and developers looking to add value by converting the existing space and possible extensions (STPP)
  • Indicative plans prepared to show a possible conversion of upper parts into 3 x apartments (STPP)
  • Approximate gross internal floor area of 4,010 sq ft (371.5 sq m)
  • Offers are invited in excess of £950,000 for the freehold interest to be sold with full vacant possession. A purchase at asking price reflects a very low capital value of approximately £237 per sq ft

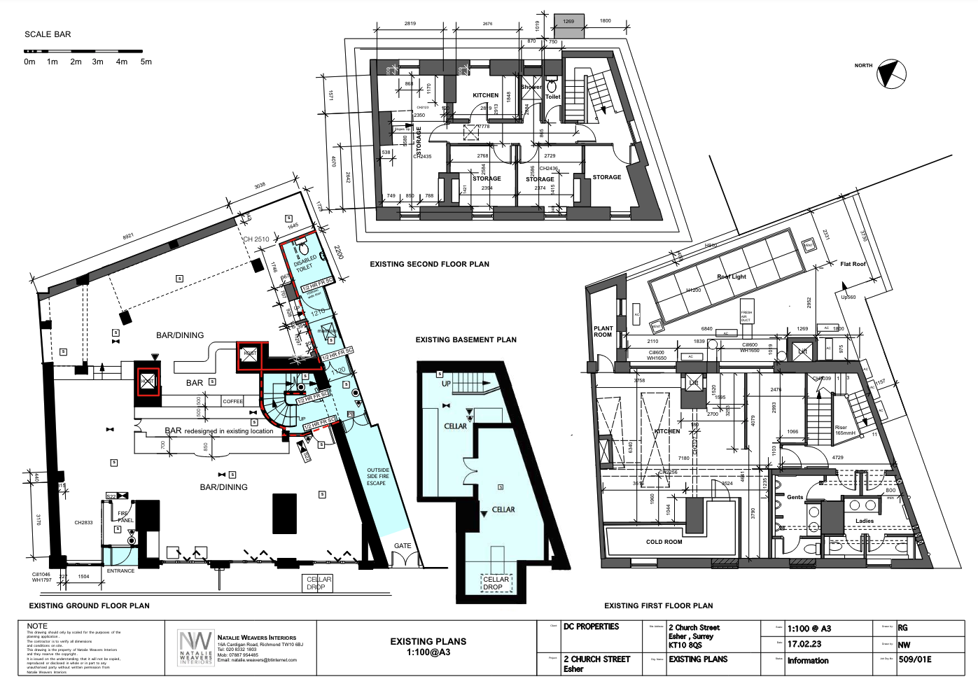
Accommodation

The accommodation comprises the following areas:

Descriptionsq ftsq m
Ground Floor 1,900 176.52
First Floor 1,110 103.12
Second Floor 600 55.74
Basement 400 37.16
Total4,010372.54
2 Church Street - ChurchStreet2EsherHC7scalede1690202025729.jpg

Location

The property is situated on Church Street, Esher in the heart of the town centre close to the junction with the High Street. Esher is an extremely charming and affluent suburb of London situated on the Surrey border. Esher train station is 1 mile away and is on the South West Main Line operated by South Western Railway. It provides a direct line into London Waterloo with journey times as quick as 30 minutes.

Esher town centre is occupied by a range of national and well-established independent businesses which provides a vibrant trading environment. Notable occupiers include Waitrose, Pizza Express, The Bear (Hotel), Cote, Giggling Squid – Esher, and Everyman Esher. Sandown Park Racecourse is 0.2 miles north-east of the property.

Please note all distances given are approximate only.

Get directions from Google Maps

Further Information

Price Offers in excess of £950,000

Rates Payable Upon Enquiry


Description

The property is arranged over three floors and basement. The ground floor was previously used as a restaurant and bar. The first floor was used as a commercial kitchen and storage. The second floor was used for storage, albeit we have been informed it was once used as staff accommodation. The basement has been used as a beer cellar, office and storage.

Development

The upper floors provide potential for conversion to residential use, subject to obtaining appropriate consents. Indicative plans have been prepared that show a potential scheme to provide 3 x flats (1 x 1 bed & 2 x 2 bed). Please see the plans within the brochure. It might be possible to extend the property further to provide more accommodation.

Please note these plans are for indicative purposes only and no application has been submitted.

Terms

Offers are invited in excess of £950,000 for the freehold interest to be sold with full vacant possession. A purchase at asking price reflects a very low capital value of approximately £237 per sq ft.

Tenure

The freehold interest is to be sold with full vacant possession.

VAT

The freehold interest is to be sold with full vacant possession.