First Floor Converted Period Warehouse Office For Sale Close To Aldgate

 

Summary

  • Air conditioning
  • Linear lighting
  • Perimeter trunking
  • Wood flooring
  • Passenger lift
  • Two meeting rooms
  • Excellent natural light
  • Iron columns & beams

Location

The property is located on East Tenter Street, which is between Prescott Street and Alie Street, close to Aldgate East Under ground station.

The locality is a blend of commercial and residential properties with local amenities including many restaurant and shopping facilities.

Aldgate (Circle & Metropolitan), Aldgate East (District, Hammersmith & City) and Tower Gateway (DLR) are all with easy walking distance.

Get directions from Google Maps

Further Information

Price £950,000

Rates Payable £17,000 per annum

Service Charge £12 per sq ft

EPC Rating This property has been graded as D


Description

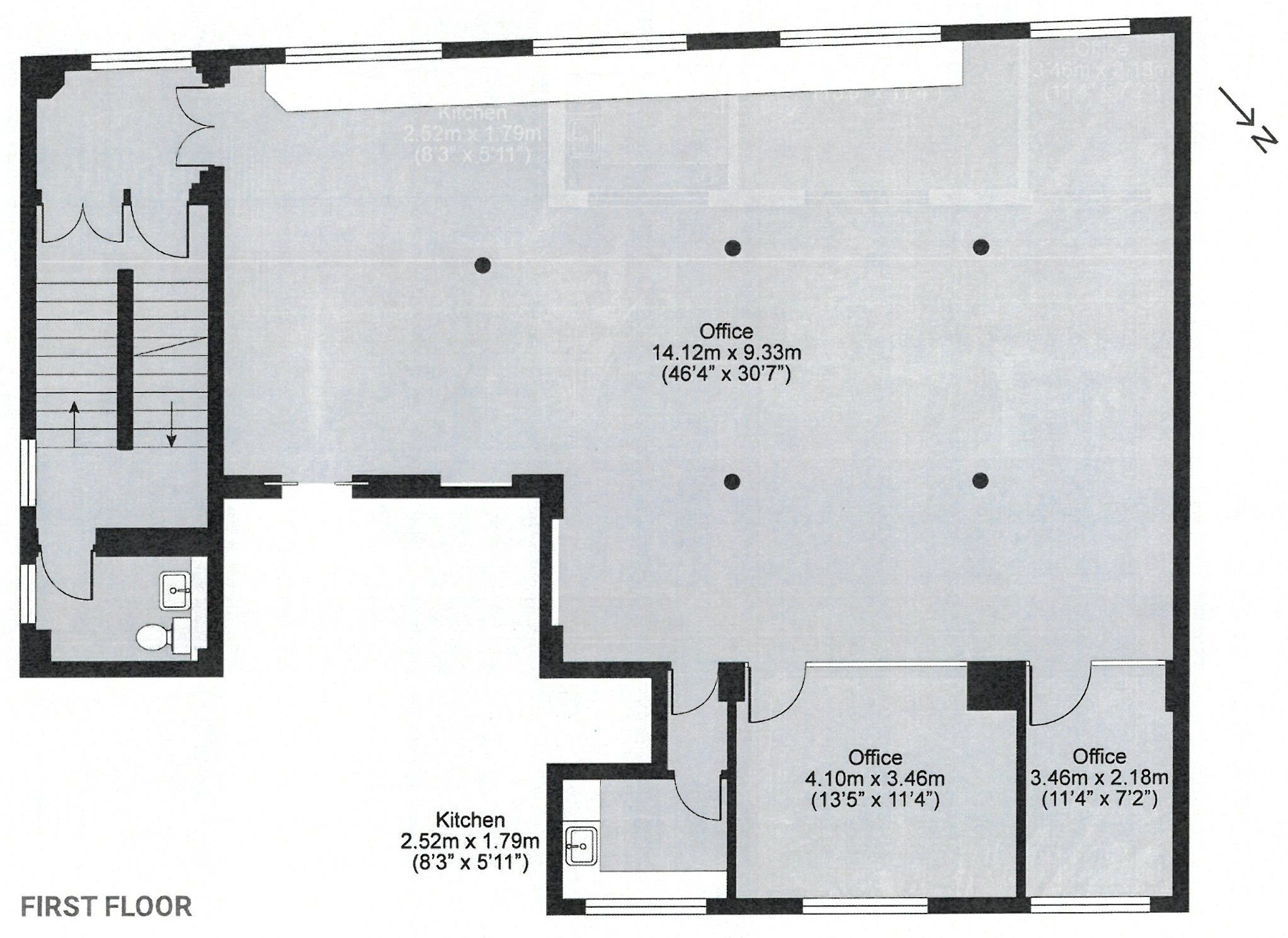
The office comprise the entire first floor of this attractive converted period warehouse building of approx. 1,568 sq ft, refurbished to an excellent standard. Arranged as a main open plan space plus two meeting rooms and kitchen point.

Excellent natural light with windows front and rear.

W.C.s are located within the common parts.

Accessed via the communal entrance with stairs and passenger lift to the upper floors.

Specifications

- Air conditioning
- Linear lighting
- Wood flooring
- Perimeter trunking
- Passenger lift
- Two meeting rooms
- Excellent natural light
- Retained period features