Summary

Property Type Retail
Tenure For Sale
Size 3,970 sq ft
Price £975,000 The premises are available freehold with vacant possession.
Rates Payable Ground Floor Retail and Basement RV: £27,750. First Floor Offices RV: £15,750. Flats Council Tax : Band B. Interested parties are advised to make further enquiries direct to the Local Rating Authority North Yorkshire Council on 01423 500600.
EPC Rating This property has been graded as C (54)
  • Prominent retail property with return frontage
  • Self-contained office / studio to first floor
  • Two separately accesed 1 bedroom flats (let on AST's) to second floor
  • For sale freehold with vacant possession throughout
  • Guide Price: £975,000

About

The subject property comprises a four storey end-terrace property under a pitched tiled roof. The property comprises ground floor retail accommodation with ancillary offices and staff facilities to the lower ground, a self contained office/studio on the first floor and two spacious one bedroom penthouse flats on the second floors.

17 Albert Street / 8 John Street, Harrogate, Retail For Sale - Dacres Harrogate Office-7.jpg

Accommodation

Namesq ftsq mAvailability
Ground - Floor Retail Sales/Office 1,198 111.30 Available
Lower Ground - Offices/Staff Facilities 396 36.79 Available
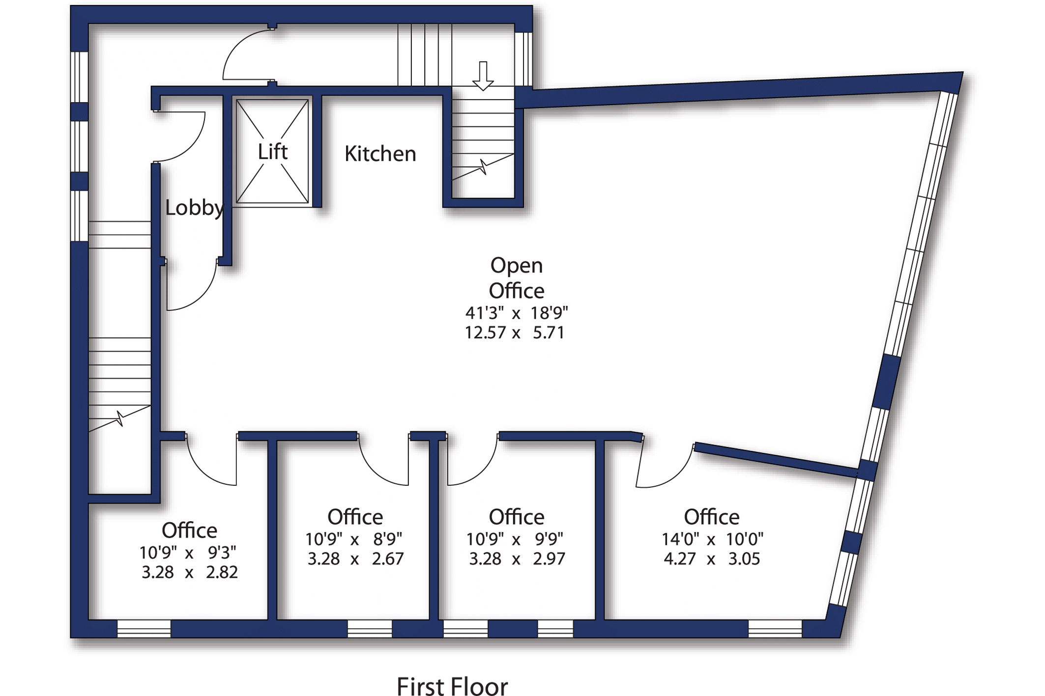
1st - Floor Office Suite 1,161 107.86 Available
2nd - Floor 1 Bed Flat A 595 55.28 Available
2nd - Floor 1 Bed Flat B 620 57.60 Available
Total3,970368.83

Location

The property is situated on the corner of Albert Street and John Street which forms a well-established secondary trading location running parallel and close to the town’s prime retailing area of James Street.

Harrogate is located approximately 17 miles north of Leeds, 21 miles west of York, 11 miles west of the A1(M) and 9 miles from Leeds/Bradford airport.

Harrogate is one of the largest commercial centres in North Yorkshire and is one of the leading conference and exhibition centres in the North of England.

Get directions from Google Maps

17 Albert Street / 8 John Street - Dacres Harrogate Office-6.jpg

Further Information

  • Terms

    The premises will be sold with full vacant possession throughout.

  • Energy Performance Certificates

    The EPC’s can be viewed online at www.ndepcregister.com. Alternatively copies are available from the agents:

    Ground Floor Retail: Band C (54). First Floor Offices: Band B (35) Flat A: Band E (48) EPC Flat B : Band C (77)