Rare opportunity to acquire a self-contained office headquarters extending to 2,561 sq ft, arranged over ground and lower ground floors.

 

Summary

  • Long leasehold for sale
  • Excellent natural light
  • Secure cycle storage
  • Self-contained office headquarter opportunity
  • Shower facilities
  • Air conditioning installed throughout
  • High ceiling heights (minimum approx. 2.75m)
  • Four-minute walk to King’s Cross Station

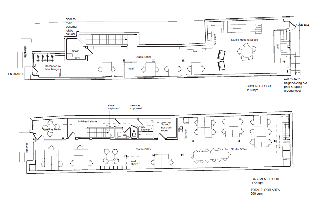
Accommodation

The accommodation comprises the following areas:

Namesq ftsq mAvailability
Ground 947 87.98 Available
Lower Ground 1,614 149.95 Available
Total2,561237.93
16 Northdown Street, 16A Northdown Street - desk area ground floor pic 2.jpeg

Location

The property is located on Northdown Street in the King’s Cross area, one of London’s most established and rapidly evolving commercial districts.

King’s Cross Station and St Pancras International are both within a short walk, providing exceptional connectivity across London via the Underground network as well as national rail services and international connections via Eurostar.

The surrounding area offers an extensive range of amenities, including restaurants, cafés, bars and retail operators. Nearby destinations such as Coal Drops Yard, Granary Square and the wider King’s Cross estate provide a vibrant mix of food, leisure and cultural offerings, making the location highly attractive for businesses seeking a well-connected central London headquarters.

Get directions from Google Maps

Further Information

Price Price on application

Rent £137,520 per annum

Rates Payable £17.02 per sq ft Tenants are encouraged to make their own enquiries with the VOA

Service Charge n/a

Estate Charge n/a


Description

16A Northdown Street provides a fully self-contained office headquarters arranged over ground and lower ground floors, extending to approximately 2,561 sq ft NIA. Accessed via a private street-level entrance, the property offers a highly efficient layout currently configured with a mix of open-plan workspace, meeting rooms and breakout areas, including a large meeting room that can function as a boardroom or collaboration space, alongside a smaller meeting room.

The lower ground floor benefits from excellent natural light via front, rear and central lightwells, creating a bright and attractive working environment. The building also benefits from strong ceiling heights (minimum approx. 2.75m), air conditioning installed throughout, secure cycle storage and shower facilities, together with kitchenettes on both floors. The space currently has a creative character but could easily be adapted to suit a more corporate or minimalist office fit-out.

Viewings

All viewings are strictly by appointment and should be arranged via the sole selling agents, Newmark.