Self-Contained Office Premises with On-Site Parking

 

Summary

  • Prominent roadside position within Hamilton
  • Contained over ground, first and attic.
  • Private car parking facilities
  • Flexible lease terms available.
  • 100 % Rates Relief available, subject to occupiers status
  • Offers Over £17,000 pa

Accommodation

The accommodation comprises the following areas:

Floor/UnitBuilding Typesq ftsq m
Ground Office 502 46.64
1st Office 499 46.36
2nd Office 189 17.56
Total1,190110.56
16 Muir Street - 20260323_122033225_iOS.jpg

Location

Muir Street is one of the principal arterial routes surrounding Hamilton town centre and benefits from excellent accessibility. The property is easily reached from the B7071 Bothwell Road to the north and Junction 6 of the M74 motorway to the south.

Hamilton is the administrative centre of South Lanarkshire, with a population in excess of 55,000, and is situated approximately 12 miles south-east of Glasgow and 5 miles east of East Kilbride.

Get directions from Google Maps

Further Information

Rent £17,000 per annum

Rates Payable Upon Enquiry


Description

16 Muir Street comprises a three-storey, end-terraced, self-contained office property of traditional stone construction.

The premises have most recently been utilised for office purposes; however, they would be suitable for a variety of alternative uses, subject to the necessary consents.

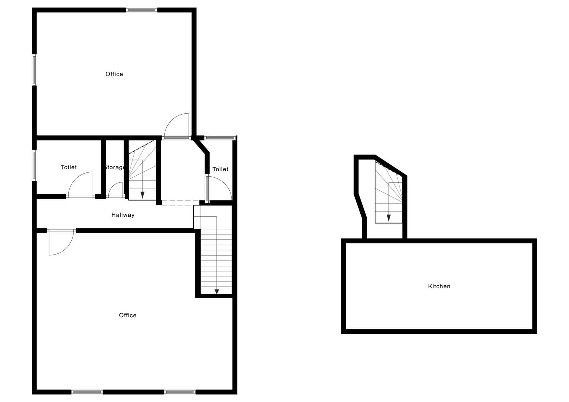
Indicative floor plans outlining the layout of the accommodation are attached. The accommodation can be summarised as follows:

Ground Floor
Reception area, three generous private offices, ancillary storage, and WC facilities.

First Floor
Two large private offices, ancillary storage, and two WC facilities.

Attic Level
Open-plan staff/kitchen area.

Viewings

Strictly by contacting the sole selling/letting agents:-

Jacqueline Towie
01698 284 939
jacqueline.towie@dmhall.co.uk

Terms

The property is available is to lease on a full repairing and insuring terms for a period to be agreed.

Rental offers in excess of £17,00 per annum are invited.

EPC

A copy of the Energy Performance Certificate (EPC) for the subjects is available upon request.

Non-Domestic Rates

According to the Scottish Assessors’ Association website, the subjects are noted to have a Rateable Value of £11,900 per annum.

It should be noted under the terms of the Small Business Bonus Scheme, the property maybe eligible for 100% rates relief.