Income Producing Investment ***WITH PLANNING*** for new development of 12 Resi Units & 2 Retail Units

 

Summary

  • Two Storey Retail Unit
  • Self Contained Income Producing
  • Producing £21,750 p.a
  • Planning for 12 flats & 2 Retail Units
  • Planning Ref: 11548/21
  • 3 Parking Spaces
  • Prominently Located
  • Within 1.2 Miles of M61

Accommodation

The accommodation comprises the following areas:

Namesq ftsq mAvailability
Ground 2,165 201.14 Available
1st 886 82.31 Available
Total3,051283.45
151-155 Market Street - PLANNING_STATEMENT_JUNE_202198369490000.jpg

Location

Investment/development prominently located with direct frontage onto Market Street. The immediate area provides a mix of retail/trade and leisure occupiers

Bolton- 2.8 miles
Manchester- 9.4 miles
Junction 21 M61- 1.2 miles

Adjacent occupiers include Home Bargains, Al Murad Tiles,Golita & Sons

Get directions from Google Maps

Further Information

Price £350,000

Rates Payable £4.25 per sq ft


Description

A 3051 sq.ft. self contained two storey retail Investment. The property which can be summarised as follows:

• Of traditional construction with full height brick elevations with a pitched slate roof
• Providing a mix of retail, office and back office space
• Let to Lloyds Bank Plc for a term of 3 years from March 2023 at a rent of £21,750 per annum
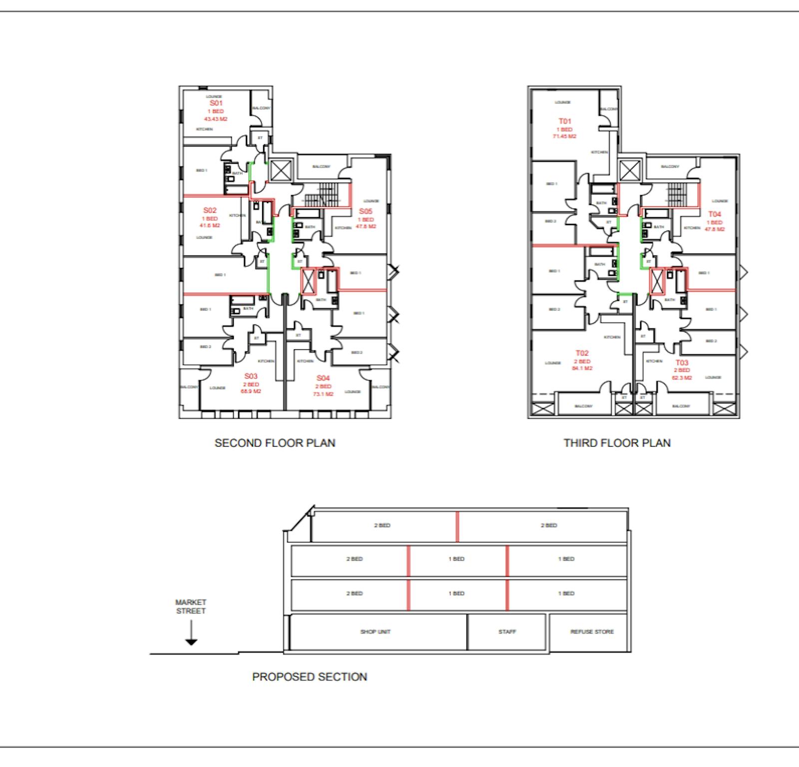
• Planning permission granted for demolition and erection of new three storey self contained mixed use building
• Planning Reference 11548/21 - 2 x ground floor units and 12 new apartments (8x1 beds & 6 x 2 beds)
• Planning Portal https://paplanning.bolton.gov.uk/onlineapplications/simpleSearchResults.do?action=fi rstPage
• Opportunity to enhance existing income through re-development or asset management of existing tenancy
• Parking for 3 cars