Workshop with Offices above - Suitable for a Wide Range of Uses

 

Summary

  • Suitable for a Variety of Uses
  • Self-Contained
  • Prominent Location
  • On-Site Parking 4-5 Vehicles
  • Brand New Windows, Lighting and Electrics
  • Roller Shutter Access
  • Three-Phase Electricity Supply
  • New Insulated Roof

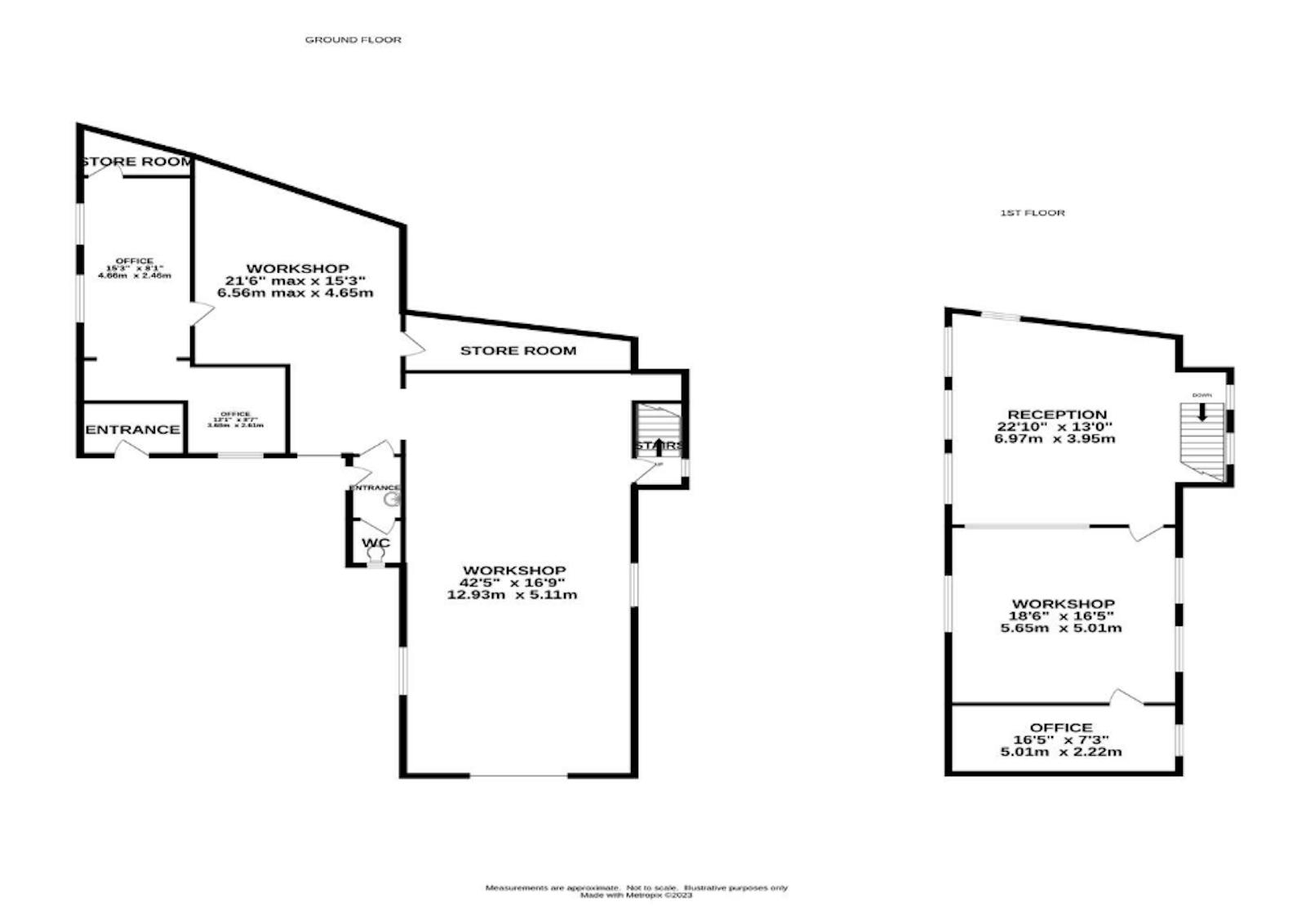
Accommodation

The accommodation comprises the following areas:

Namesq ftsq mAvailability
Ground 1,447 134.43 Available
1st 807 74.97 Available
Total2,254209.40
15 Manchester Road - IMG_9227.jpg

Location

The property occupies a prominent roadside position on Manchester Road, one of the main routes through Chapel-en-le-Frith. This well-connected High Peak town provides a good range of local amenities and services, with convenient access to Buxton, Stockport, and Manchester via the nearby A6. Chapel-en-le-Frith railway station is also within walking distance, offering direct connections to regional destinations.

Get directions from Google Maps

Further Information

Rent £1,500 per month

Rates Payable £1.53 per sq ft Occupier likely eligible for 100% small business rates relief.


Description

15 Manchester Road is a prominent detached commercial unit providing a highly adaptable mix of workshop, storage, and office accommodation. Extending to approximately 2,254 sq ft over two floors, the building would suit a wide range of occupiers such as light industrial, trade counter, or service-based businesses, subject to any necessary consents.

The property has been significantly improved in recent years, including a new insulated roof, upgraded 3-phase electrics, new double-glazed windows, and full external re-rendering. The ground floor is accessible via a roller shutter door and includes a range of workshop and ancillary areas, while the first floor offers useful office or additional storage space. Multiple access points provide practical layout options, and parking is available on-site for 4–5 vehicles.

Viewings

Viewings strictly by appointment only with agents Hallam's Property Consultants.

Terms

The premises are available by way of a new lease for a term of years to be negotiated.