Freehold Detached Office Building with Previous Residential Development Consent

 

Summary

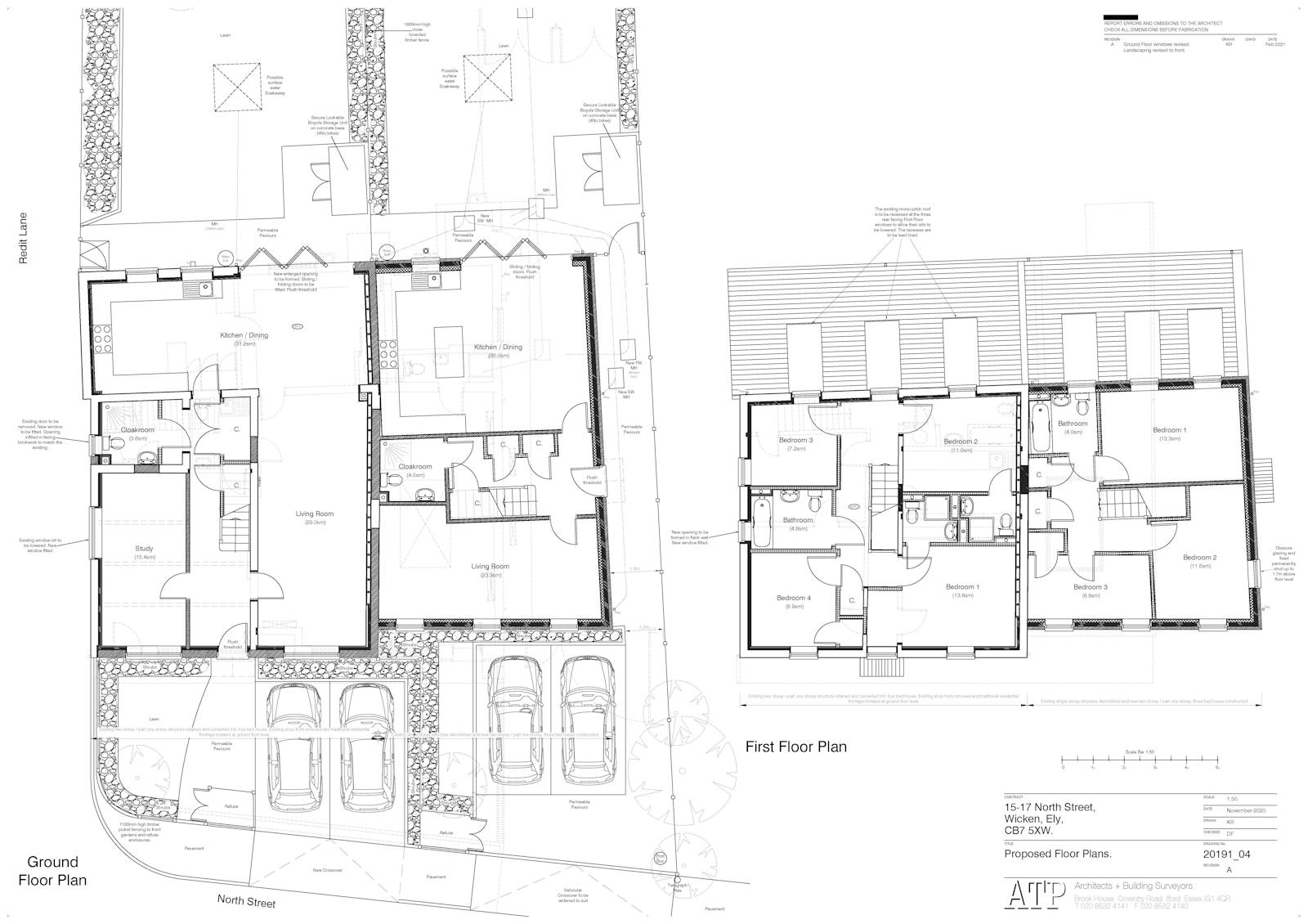
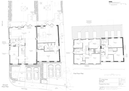
  • Previous consent for Part Conversion and Part Development of Two Houses
  • Previous consent provided 1 x 4 Bed & 1 x New Build 3 Bed
  • GIA of exisiting offices approx 2,465 sq ft
  • Ely Rail Station 7 miles to the south
  • Wicken Fen Nature Reserve close by

Accommodation

The existing accommodation comprises the following areas:

Namesq ftsq mAvailability
Ground - Ground 1,250 116.13 Available
1st - Office 1,215 112.88 Available
Total2,465229.01
15-17 North Street - DJI_0673.JPG

Location

Wicken is a village on the edge of The Fens in Cambridgeshire close to Soham, 10 miles from Cambridge with Ely 5 miles distant.

The property is situated on the south side of North Steet at the junction with Reddit Lane.

The A142 is easily accessible and provides access to Newmarket to the south east. Both the A10 and A14 are also nearby providing access to Cambridge.

Get directions from Google Maps

Further Information

Price Price on application


Description

The property comprises a two storey office building with brick elevations under a slate roof. There is a large forecourt together with driveway through to a garden area and garage to the rear. The property has previously been used as a Post office and General Stores and flat above before being converted to offices.

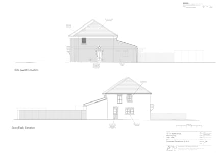
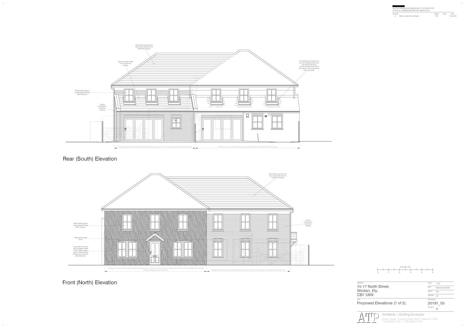
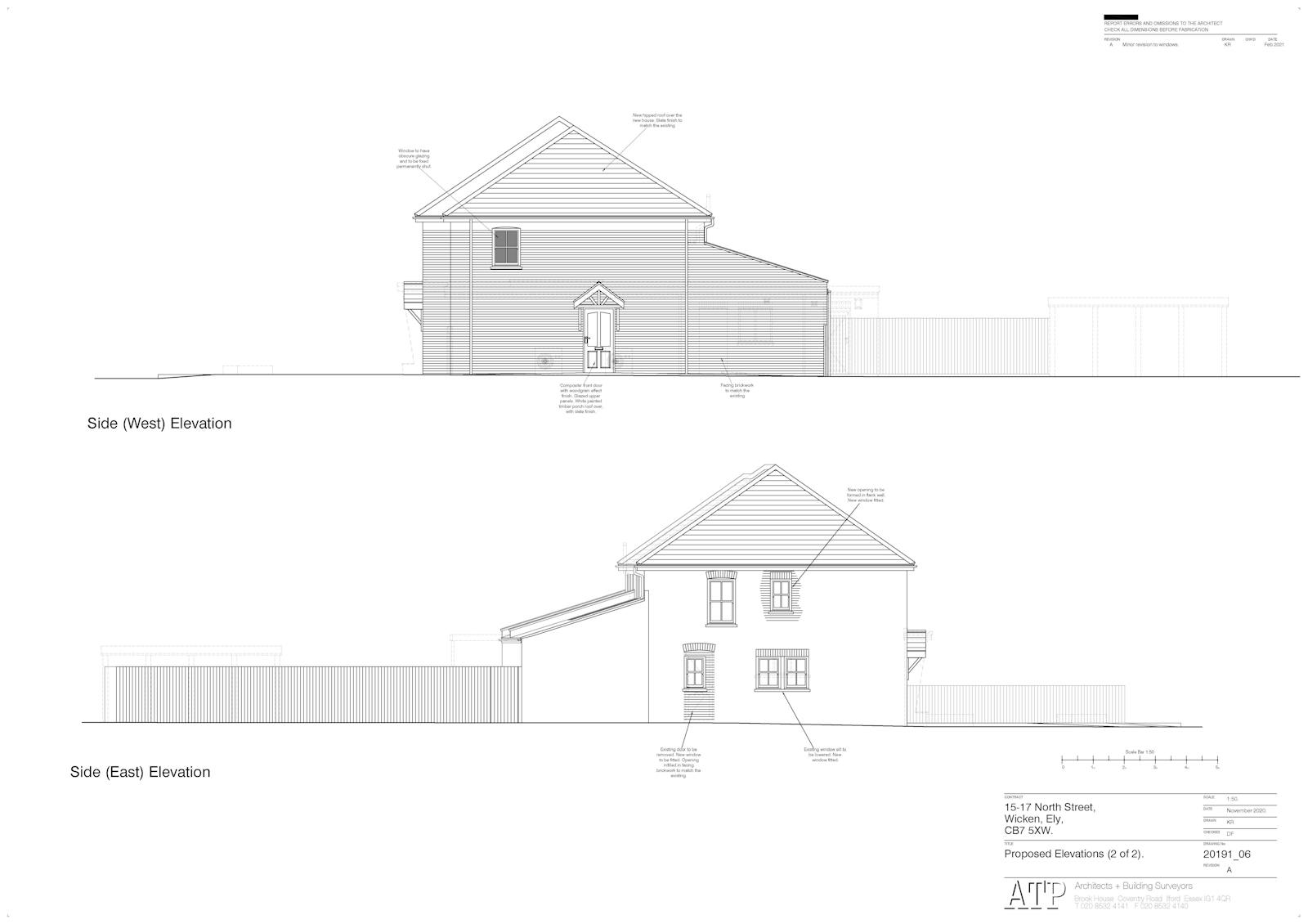
Planning consent was achieved in 2021 for conversion of the left hand office to a 4 bed house with part demolition to allow for a new 3 bed house both with gardens and parking. See East Cambs DC planning reference 21/00345/FUL - GRANTED.

Viewings

Please contact James McFeely to arrange a site inspection ON 020 3900 1168 OR 07825 113276

Terms

The property is available for sale freehold. Price on application.