Summary

Property Type Investment
Tenure For Sale
Size 4,555 sq ft
Price £1,850,000 Offers sought in excess of £1.85m
Rates Payable Upon Enquiry
EPC Rating This property has been graded as D
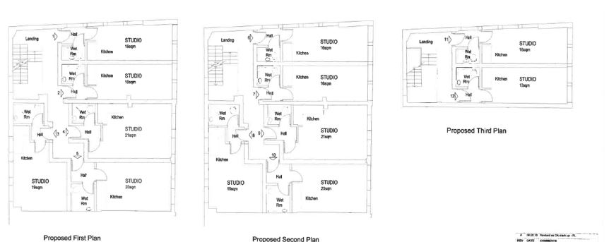
  • Upper Floors Converted to 10 HMO studio rooms plus 1 studio Flat. Income producing.
  • Opportunity to extend
  • Rent revised on ground floor retail via a Lease variation to £50,000 PA.
  • Low running costs with opportunity to reduce further with solar panel installation
  • Hale Leys Shopping Centre, adjacent to the property has a footfall of over 3m per year

About

HMO and Retail Investment opportunity. For Sale. The property comprises a 4 storey (+ basement) freehold building, of approx. 4,555 sq ft (NIA). Basement, GF, 1st, 2nd & 3rd floor. The upper floors have now been converted into 10 HMO studio rooms on 1st and 2nd floor and one studio flat on the 3rd floor. The residential part is producing a gross income of £104,598.96 pa.
Subject to part of the basement/ground floor Tenancy to Done Brothers (Cash Betting) (t/as BetFred) on a new 10 year full repairing and insuring lease from April 2018 with a tenant only break at April 2023, by giving 6 months notice. (not implemented). The new revised rent is upward of £50,000 pa with the opportunity to increase by negotiation. Lease within Security Provisions of Landlord & Tenant Act 1954 Part II. Total gross income £154,598.96 pa. Net income £145,058.96 pa.

Location

The property is prominently located on Market Square within Aylesbury, the county town of Bucks. The immediate area comprises mainly commercial uses with the property adjoining the Hale Leys shopping centre which has a footfall of over 3million per year. The entrance to the Friars Square shopping centre is opposite. Aylesbury train station is located within a few minutes walk from the property, providing frequent links to London Marylebone, Oxford & Birmingham via High Wycombe. Market Square has been earmarked for a £4.5m regeneration by Aylesbury Council to include more seating, planting and to form a central town recreational and retail destination.

Get directions from Google Maps

14-18 Market Square - Aylesbury England in the 1980s 78.jpg

Further Information

  • Business Rates

    TBC

  • EPC

    D87 - Retail
    C72 - Flat 1
    C77 - Flat 2
    C72 - Flat 3