Summary

Property Type Mixed Use
Tenure For Sale
Size 3,359 sq ft
Rates Payable Upon Enquiry
  • Freehold Mixed-Use Asset
  • Established High Street in Zone 1.
  • Significant Residential Reversionary Potential
  • Total Passing Rent of £135,200 (per annum).
  • Area Attracting Over 15 Million People Per Year

About

An exceptional opportunity to acquire a prime freehold mixed-use investment located on the highly sought-after Bermondsey Street, in the heart of London SE1. This well-established high street location is renowned for its vibrant mix of independent retailers, restaurants, cafés, and leisure operators, benefiting from strong footfall from both local residents and visitors.

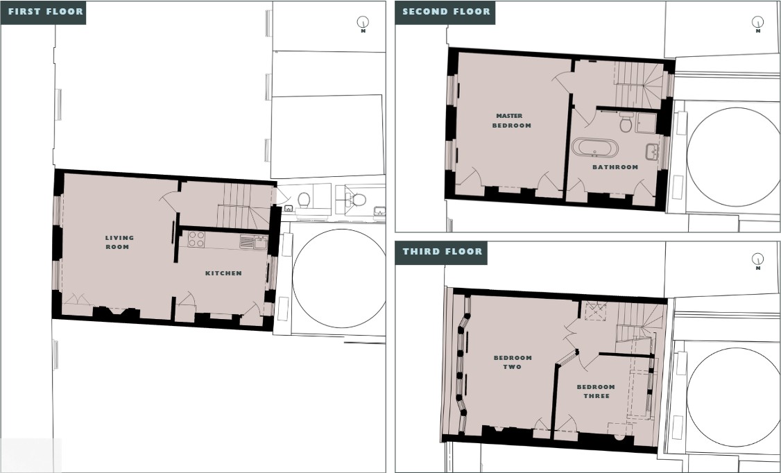
The property comprises an attractive mixed-use building arranged over lower ground to second floors, extending to approximately 3,359 sq ft. The ground and lower ground floors are let to Franco Manca 2 (UK) Ltd, trading as Franco Manca, on a 20-year full repairing and insuring lease expiring December 2033, producing a current rent of £105,000 per annum.

The upper floors provide a well-configured three-bedroom residential apartment, generating an additional £30,000 per annum, with flexibility via a landlord’s rolling break option subject to 12 months’ notice.

The property currently produces a total passing rent of £135,200 per annum, offering a secure and diversified income stream from both commercial and residential elements.

Ideally positioned just a short walk from London Bridge and Borough Underground stations, the property benefits from excellent connectivity via the Jubilee and Northern lines, as well as National Rail services. The surrounding area has undergone significant regeneration, establishing Bermondsey as one of Central London’s most desirable locations to live, work, and visit.

Location

The property is located in Bermondsey, SE1 within the London Borough of Southwark which is approximately 4 km (2.5 miles) from Central London. Southwark is an area that has seen extensive regeneration in recent years, with Bermondsey Street specifically becoming a footfall-driving retail and leisure destination in its own right.

There has been investment in improving the residential and commercial provision of SE1. Bermondsey Village is a London Square, residential-led, development comprising 29 boutique apartments and 10,000 sq ft of commercial space. This development is a short walk from the property. Newham’s Yard was also a very successful development located just off Bermondsey Street, selling out all 90 flats which indicates how attractive Bermondsey has become as a destination to live, work and visit. The world famous Borough and Maltby Street markets, attracting over 15 million people per year, are located nearby. Southwark has a young and upward-mobile demographic, with 55% of inhabitants being between the ages of 20 and 44.

Get directions from Google Maps

124 Bermondsey Street - Bermondsey-moodboard-2.jpg