Office / Business Suites Available to Let in Inverness City Centre

 

Summary

  • Business suites to let
  • Eligible for up to 100% rates relief (subject to eligbility)
  • Suitable for a range of occupiers
  • Flexible terms
  • Available from £291.67 pcm
  • Central location with convenient public transport links

Accommodation

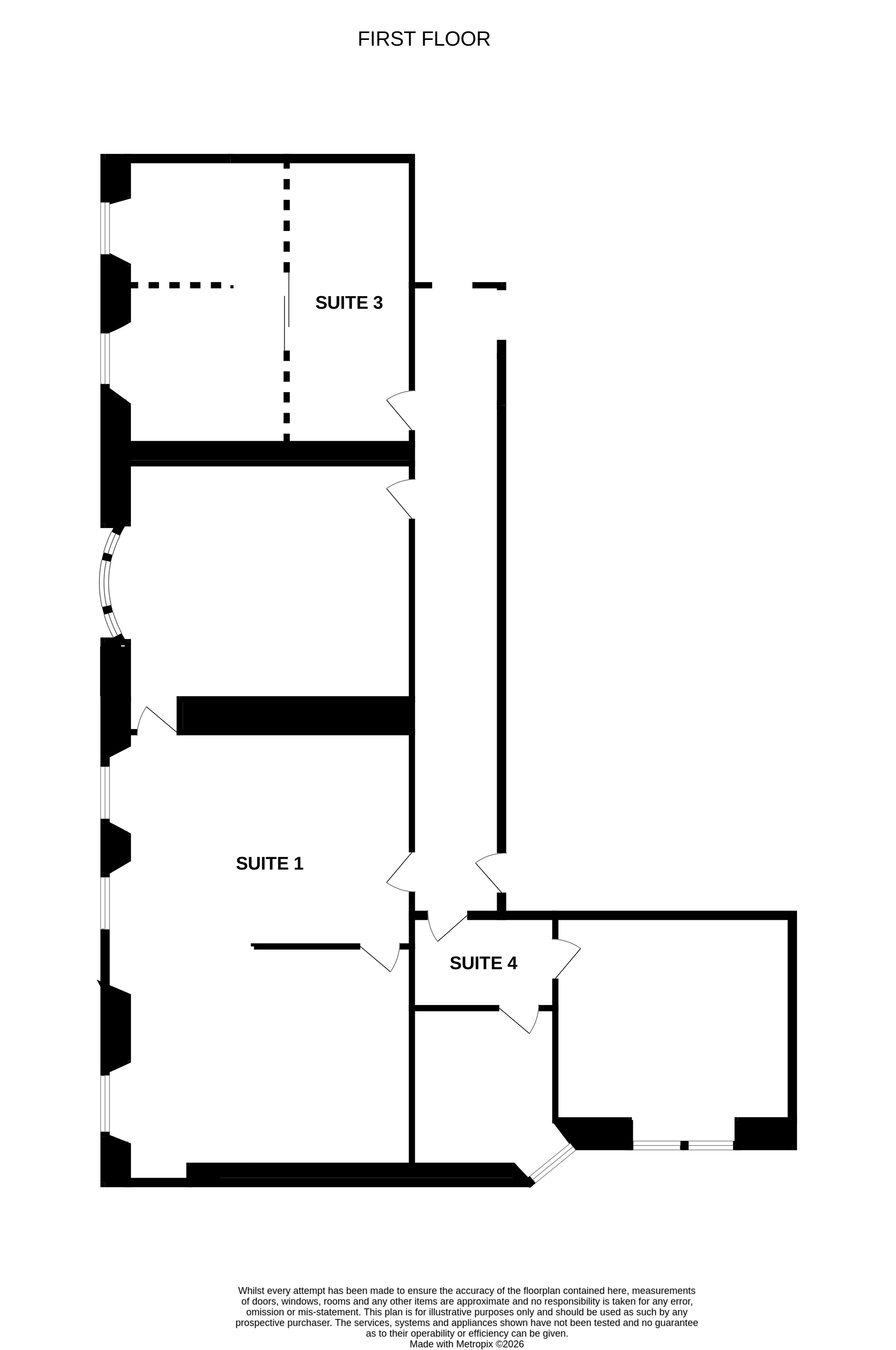
The subjects have been measured on a net internal basis in accordance with the current edition of the RICS Code of Measuring Practice and provide the following units:

Floor/UnitDescriptionsq ftsq mTenureRent
1st Suite 3 339.06 31.50 To Let £3,750 /annum
1st Suite 4 311.08 28.90 To Let £3,400 /annum
Total650.1460.40
11 Queensgate - IMG_5432.JPG

Location

The subjects are located on Queensgate within the city of Inverness. Inverness is the commercial and administrative capital of the Highlands. The city benefits from transport links to the rest of Scotland via the main A9 & A96 trunk roads and railway, with an airport located on the outskirts of the city.

Get directions from Google Maps

Further Information

Rent £3,400 - £7,150 per annum


Description

The subjects comprise self-contained first floor offices/business suites contained within an intermediate 3 storey and attic terraced building. Internally the property is laid out in a mix of open plan or cellular offices, suitable for a range of occupiers and uses.

Rental

The subjects are available to let on flexible terms from £3,400 per annum.

Rateable Value

According to the Scottish Assessor’s website (www.saa.gov.uk) the subjects have a Rateable Value of £4,050 and £3,850 for units 3 and 4 respectively effective 1st April 2026.

Utilities

The property has connections of mains water, electricity and drainage. Heating is provided by a series of electric heaters throughout the offices.

EPC

The Energy Performance Certificate rating is TBC.

Legal Costs

Each party will be responsible for their own legal costs incurred in the preparation, negotiation and settlement of the documentation pertaining to the lease or sale including LBTT or VAT applicable.

Entry

On completion of legal formalities.

AML Requirements

To satisfy our money laundering requirements, once an offer has been accepted, the prospective purchaser(s)/occupier(s) will need to provide, as a minimum, proof of identity and residence before the transaction can proceed.