MIXED USE FREEHOLD FOR SALE SUITABLE FOR INVESTORS/ OWNER OCCUPIERS.

 

Summary

  • Prominent freehold mixed-use property is located on Hampstead Road, at the junction with Drummond Street, within one of Central London’s highly connected districts.
  • The building comprises a self-contained ground and lower ground floor commercial unit, together with two residential flats arranged over the upper floors.
  • The commercial accommodation is currently under offer for a 10 year lease with a passing rent of £42,000 per annum, extending to 1,259 sq ft.
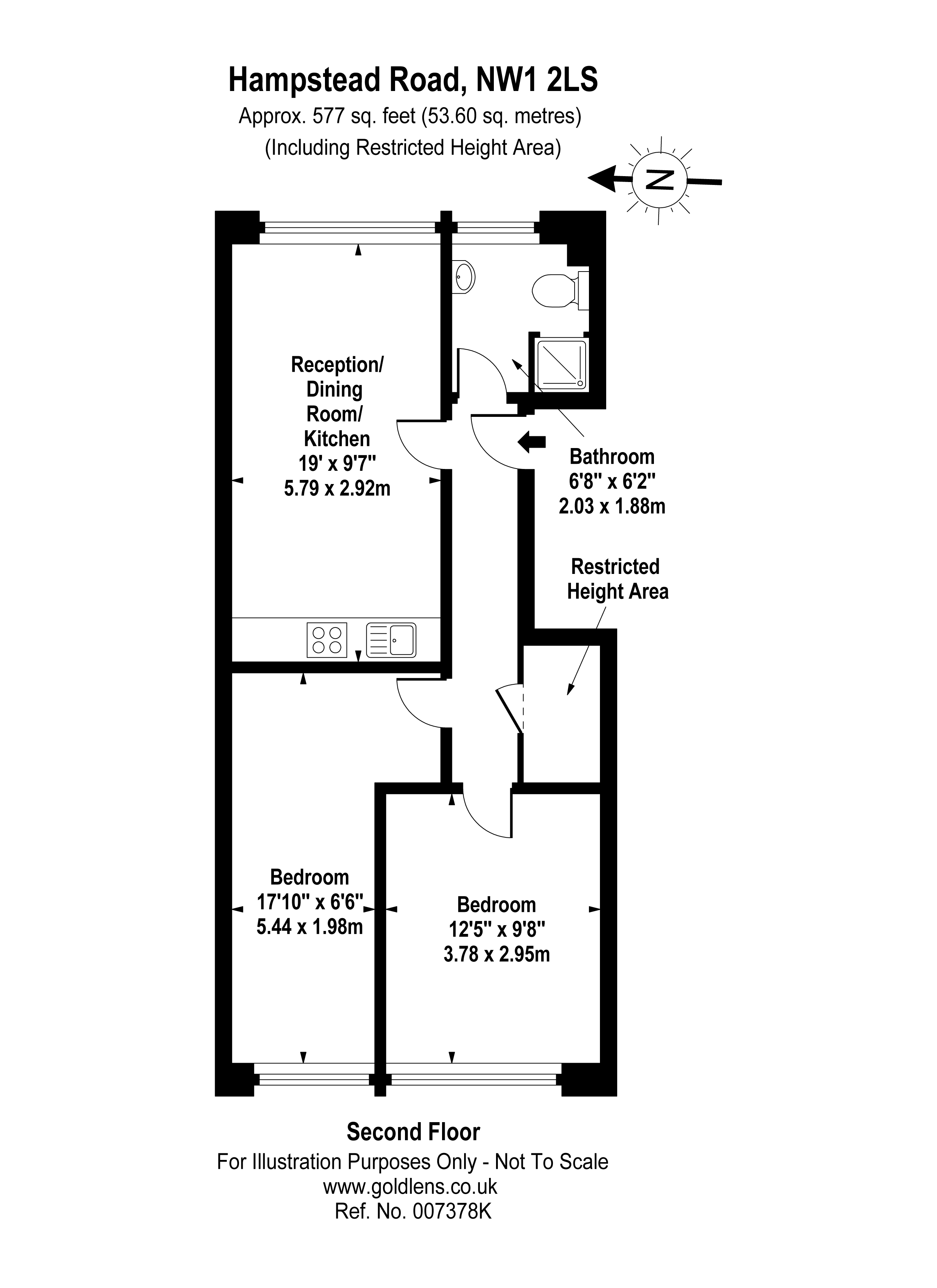
  • The NSA of the residential accommodation is 1,195 sq ft.
  • The upper floors comprise two self-contained residential flats, offered with vacant possession.
  • Guiding £2,000,000 (Two Million Pounds), for the freehold interest, subject to contract.

Accommodation

The accommodation comprises the following areas:

Namesq ftsq mRates Payable (sq ft)Service Charge (sq ft)Total /sq ftTotal monthTotal year
Ground - & Lower Ground 1,259 116.96 On Application On Application £42,000 £4,406,500 £52,878,000
1st 592 55 On Application On Application - - -
2nd 603 56.02 On Application On Application - - -
Total2,454227.9842,000£4,406,500£52,878,000
106 Hampstead Road - 525977919.jpg

Location

The property enjoys a prominent position within one of Central London’s highly connected districts. Situated moments from Hampstead Road and Drummond Street, it offers immediate access to key transport links, including Euston, Euston Square, Warren Street, and King’s Cross St Pancras stations.

Located within the city’s renowned Knowledge Quarter, the area is a dynamic hub for innovation, academia and enterprise, home to world-leading institutions such as University College London, the Francis Crick Institute, and the British Library.

Get directions from Google Maps

Further Information

Price £2,000,000

Rates Payable Upon Enquiry

Service Charge n/a

Estate Charge n/a


Description

106 Hampstead Road comprises a freehold mixed-use building providing commercial accommodation at ground and lower ground floor level, with residential accommodation above.

The commercial element extends 1,259 sq ft (NIA) of self-contained ground & lower ground accommodation.

The unit offers a generous amount of natural light from the large frontage, as well as a modernised kitchenette, male & female WC’s with a neat internal feature staircase.

The property comprises two self-contained residential flats arranged over the first and second floors. The residential element will be offered with full Vacant Possession.

The ground and lower ground floor commercial unit is currently under offer. The lease terms outlined are indicative only and remain subject to contract. Final lease terms may vary and have not yet been formally agreed or completed.