Available Now - Trade / Warehouse Unit To Let with offices & external parking

 

Summary

  • Established distribution and trade location with excellent road links
  • Modern light industrial /trade /warehouse unit within a fenced and gated estate
  • Unit benefits from new roller shutter door
  • LED lighting
  • Single storey office accommodation with W.C's
  • Generous external circulation and communal parking areas
  • Recently redecorated

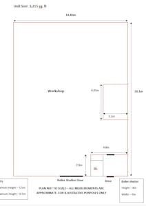
Accommodation

Namesq ftsq mAvailability
Unit - C9 3,210 298.22 Available
Total3,210298.22
Unit C9, East Point Industrial Estate - IMG_1846.jpg

Location

East Point Industrial Estate is located in the established industrial area of Wentloog, approximately 3 miles to the east of Cardiff City Centre, a 5 minute drive to the A48(M) which in turn links with the M4 Motorway at Junction 30 (heading west) and Junction 29 (heading east). The estate is accessed from Mardy Road via Lamby Way. Occupiers include Royal Mail, Afonwen Laundry and Tenovus.

Get directions from Google Maps

Further Information

Rent £26,524 per annum payable quarterly in advance

Rates Payable £11,644 per annum Based on 2026 Valuation

Service Charge £1,420 per annum Budget Year End June 2026

Estate Charge £916.70 per annum Insurance premium for year ending June 2026

EPC Rating This property has been graded as C (57)


Description

Unit C9 is prominently positioned opposite the Estate entrance. A unit of steel portal frame construction with profile metal cladding with a pitched roof. The unit benefits from a full height roller shutter door and provides a clear warehouse area.

The unit has recently been redecorated,

Externally there is loading / circulation areas and parking available.

Specifications

• Single storey internal office block with w.c facilities
•Minimum eaves height 5.5 m
•Maximum eaves height 6.5 metres
•Roller shutter door Width 3.0 metres, Height 4.0 metres
•LED Lighting
•New EPC instructed

Viewings

Please contact Jenkins Best or our joint agents Knight Frank

Terms

Unit C9 is available by way of a New Full Repairing and Insuring Lease for a Term of years to be agreed.